Добавить в корзинуПозвонить
Найти в Дзене

Что предлагают дизайнеры для однушек от «МСК»

Однокомнатная квартира, проектом которой занималось дизайн-бюро MANHATTAN, расположена в одном из масштабных жилых проектов Московской Строительной Компании – в уже сданном жилом комплексе комфорт-класса «Сердце Ростова». Этот крупный ЖК, состоящий из пяти высотных домов, расположен в Ворошиловском районе Ростова-на-Дону, был спроектирован как практичное решение проблемы доступного жилья. Типовые планировки квартир тут удобные, позволяющие создавать новое пространство. Это – важный фактор, когда дизайнеры предлагают интерьерные решения, понимая, что могут сделать работу, не нарушая ключевые характеристики недвижимости, то есть сделать ее без перепланировки. В дизайн-бюро «Манхеттен» предложили несколько идей одной квартиры, в том числе и универсальную, представив ее жильцами молодую семью, молодую пару, а также тех, кто любит большую часть времени проводить вне дома, не забывая при этом, что квартира, прежде всего, – это частная история про комфорт и удобство, а дом, как место, в котор

Однокомнатная квартира, проектом которой занималось дизайн-бюро MANHATTAN, расположена в одном из масштабных жилых проектов Московской Строительной Компании – в уже сданном жилом комплексе комфорт-класса «Сердце Ростова». Этот крупный ЖК, состоящий из пяти высотных домов, расположен в Ворошиловском районе Ростова-на-Дону, был спроектирован как практичное решение проблемы доступного жилья. Типовые планировки квартир тут удобные, позволяющие создавать новое пространство. Это – важный фактор, когда дизайнеры предлагают интерьерные решения, понимая, что могут сделать работу, не нарушая ключевые характеристики недвижимости, то есть сделать ее без перепланировки.

В дизайн-бюро «Манхеттен» предложили несколько идей одной квартиры, в том числе и универсальную, представив ее жильцами молодую семью, молодую пару, а также тех, кто любит большую часть времени проводить вне дома, не забывая при этом, что квартира, прежде всего, – это частная история про комфорт и удобство, а дом, как место, в которое хочется возвращаться, – это история про умение человека организовать свою жизнь.

Однокомнатная квартира в ЖК «Сердце Ростова».
Однокомнатная квартира в ЖК «Сердце Ростова».

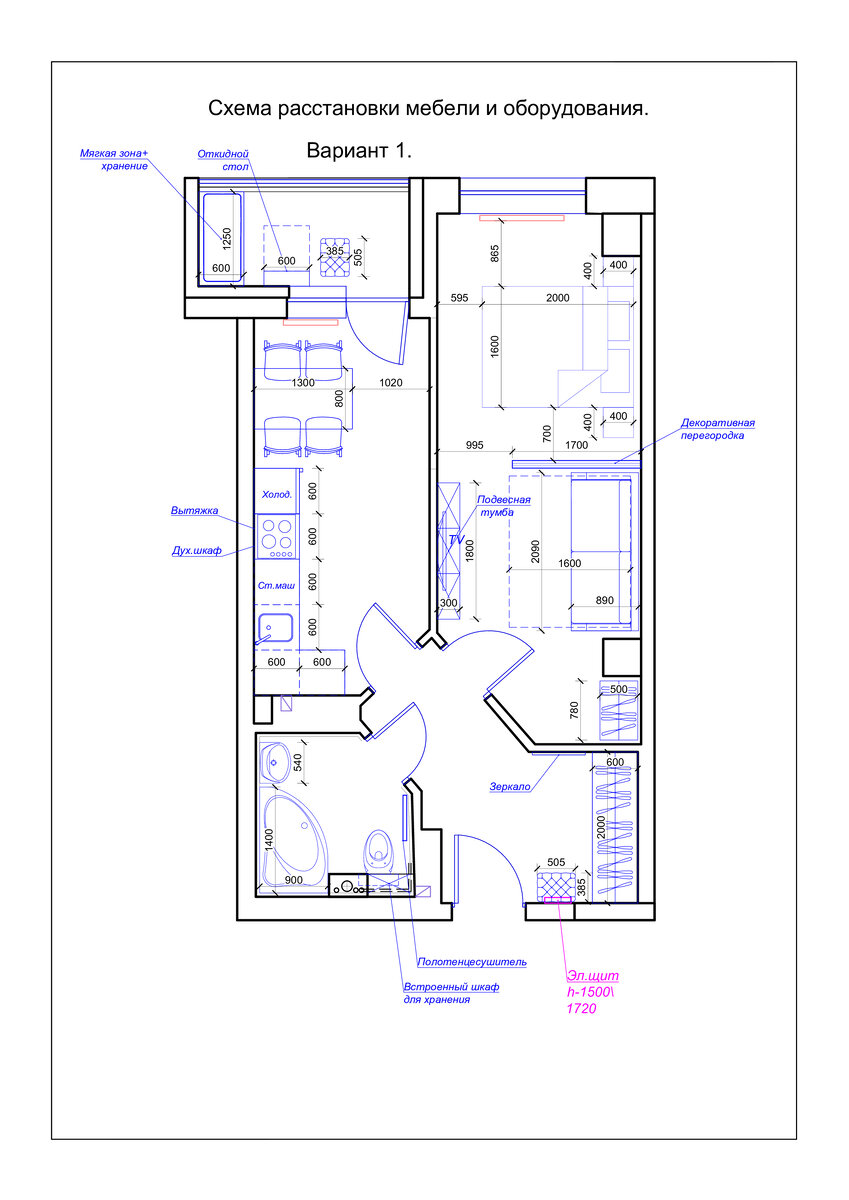
ВАРИАНТ 1. ПЛАНИРОВОЧНОЕ РЕШЕНИЕ ОДНУШКИ ДЛЯ МОЛОДОЙ СЕМЬИ

Данное планировочное решение, разработанное на основе планировок ЖК «Сердце Ростова», идеально подходит для молодой семьи. Вход в квартиру начинается с просторной прихожей. Там есть вместительный встроенный шкаф и банкетка. Из прихожей можно попасть в просторное помещение совмещенного с/у с большой угловой ванной.

Дизайнер «Манхеттен» предлагает разделить планировку квартиры на три основные зоны:

1. Гостиную зону с удобным раздвижным диваном и ТВ для отдыха домочадцев и гостей.

2. Спальную зону с полноценной двухспальной кроватью и двумя прикроватными тумбами.

3. Рабочую зону кухни с обеденной группой на четыре посадочных места.

В этом решении застекленную лоджию мы решили использовать как лаундж-зону. Имеется откидной стол с банкеткой, а также небольшой диван со встроенной системой хранения.

Застройщик применяет и в других проектах планировки наиболее успешные. Данная планировка представлена в ЖК «Город у реки», «Сердце Ростова 2». Вы можете смело брать готовое планировочное решение и реализовать его!

-2

ВАРИАНТ 2. ПЛАНИРОВОЧНОЕ РЕШЕНИЕ ДЛЯ МОЛОДОЙ ПАРЫ

Функциональное зонирование данной квартиры подойдет для молодой пары. Вход в квартиру начинается с просторной прихожей с вместительным встроенным шкафом и банкеткой. Из прихожей можно попасть в ванную комнату с вместительной душевой кабиной. Планировку квартиры можно разделить на три основные зоны:

1. Гостиную зону с удобным раздвижным диваном и ТВ для отдыха домочадцев и гостей.

2. Спальную зону с полноценной двухспальной кроватью и двумя прикроватными тумбами.

3. Кухня помимо обеденной группы на три посадочных места, включает в себя диванную зону с ТВ.

Лоджию используем как помещение для хранения, имеется вместительный шкаф.

В данном планировочном решении застекленный балкон мы решили использовать как лаундж-зону. Имеется откидной стол с банкеткой, а также небольшой диван со встроенной системой хранения.

-3

ВАРИАНТ 3. УНИВЕРСАЛЬНОЕ ПЛАНИРОВОЧНОЕ РЕШЕНИЕ

Вход в квартиру начинается с просторной прихожей, в которой имеется консоль, обувница и вместительный шкаф. В ванной комнате можно поместить как прямоугольную ванну, так и угловую. Планировочное решение №3 отличается своей вместительностью и представляет собой просторную планировку с перетекающим пространством из кухонной зоны в зону отдыха и релакса. Спальная зона от гостиной отделена открытыми стеллажами для хранения. На кухне имеется круглый стол на четыре посадочных места, а также дополнительная рабочая поверхность, которую можно реализовать в виде острова или барной стойки. Лоджия может быть использована как зона для отдыха, так и зона для хранения.

-4

ВАРИАНТ 4. ПЛАНИРОВОЧНОЕ РЕШЕНИЕ ДЛЯ ТЕХ, КТО МНОГО ВРЕМЕНИ ПРОВОДИТ ВНЕ ДОМА

Входная группа квартиры плавно переходит в гостиную, которая в свою очередь включает в себя: вместительный диван и кофейный столик, стеллаж, шкаф, ТВ с тумбой. В кухне помимо рабочей мебели имеется обеденная группа на четыре посадочные места, также навесные полки для хранения посуды и кухонных принадлежностей. В ванной угловая раковина с удлиненной столешницей дает возможность эргономично использовать данное пространство.

Такое планировочное решение подходит тем, кто выбирает свободную планировку и минимализм, предпочитая массивной мебели стеллажи или навесные полки: легче перемещать и проще функционально зонировать комнату.

-5

Типовые планировки «МСК» спроектированы, учитывая социальный запрос граждан и их возможности. Если сравнить стандарты жилья, заложенные в домах советской серии, то в современных реалиях они не всегда работают. Это - во-первых. А во-вторых, их весьма трудно приспособить к актуальным запросам потенциального покупателя: текущие представления о доступном жилье изменились.

Квартира с тесной кухней, маленьким с/у и ванной комнатой, в доме без паркинга – малопривлекательный лот для тех, кто рассматривает покупку жилья как грамотную инвестицию в своё будущие или будущие своих детей, имея при этом финансовые возможности жить не только в новом доме, но и жить в современной квартире.

Реалии жизни однозначно диктуют подтекст: люди заинтересованы в доступном и качественном жилье, тем более что граница между жилыми комплексами «комфорт-класса» и «бизнес-класса» бывает условной, а определяющей шкалой может служить локация жилого комплекса или наличие паркинга. Кстати, во всех ЖК Московской Строительной Компании, есть паркинг и прекрасно оформленные входные группы, не считая благоустроенных придомовых территорий, зонированных на прогулочные зоны, спортивные и детские площадки.

PS. «Московская Строительная Компания» – лидер-застройщик №1 в Ростове-на-Дону по объёмам строительства. Все жилые комплексы расположены в наиболее удобных центральных локация города. Звоните – расскажем все детали 😊).

А еще читайте новости компании и смотрите наши дома на официальном аккаунте «МСК» в Instagramcom.msk_rostov, Facebook.mskrostovdon ,следите за новыми проектами.

Читайте по теме:

Двухкомнатная квартира: как обустроить пространство

Однушки до 3 млн: почему выгодно купить сейчас

Роскошный дом с видом на Дон

White-box: оптимальное решение для вашей квартиры

Удобное решение. Показываем, что можно сделать с двушкой в Сердце Ростова2