Добавить в корзинуПозвонить
Найти в Дзене
UrbanVL

Маленькое убежище одной больницы

Всем снова здраcьте) Сегодня речь пойдет про одно довольно мелкое убежище одной больницы. Схема Как всегда, в убежище два входа, один наклонный, другой просто прямой Заходим через наклонник (фотки наклонника увы нету, потому что я забыл его сфотать) Спуск упирается в тамбур шлюз и бла-бла-бла, ничего особенного Заходим в помещение для укрываемых. Кстати само убежище предназначено человек на 100-150. В убежище располагались санузлы. Мужской и Женский Также в данном убежище была ФВУ Ну и второй выход Ну и на этом все, всем спасибо за прочтение данной статьи!)

Всем снова здраcьте) Сегодня речь пойдет про одно довольно мелкое убежище одной больницы.

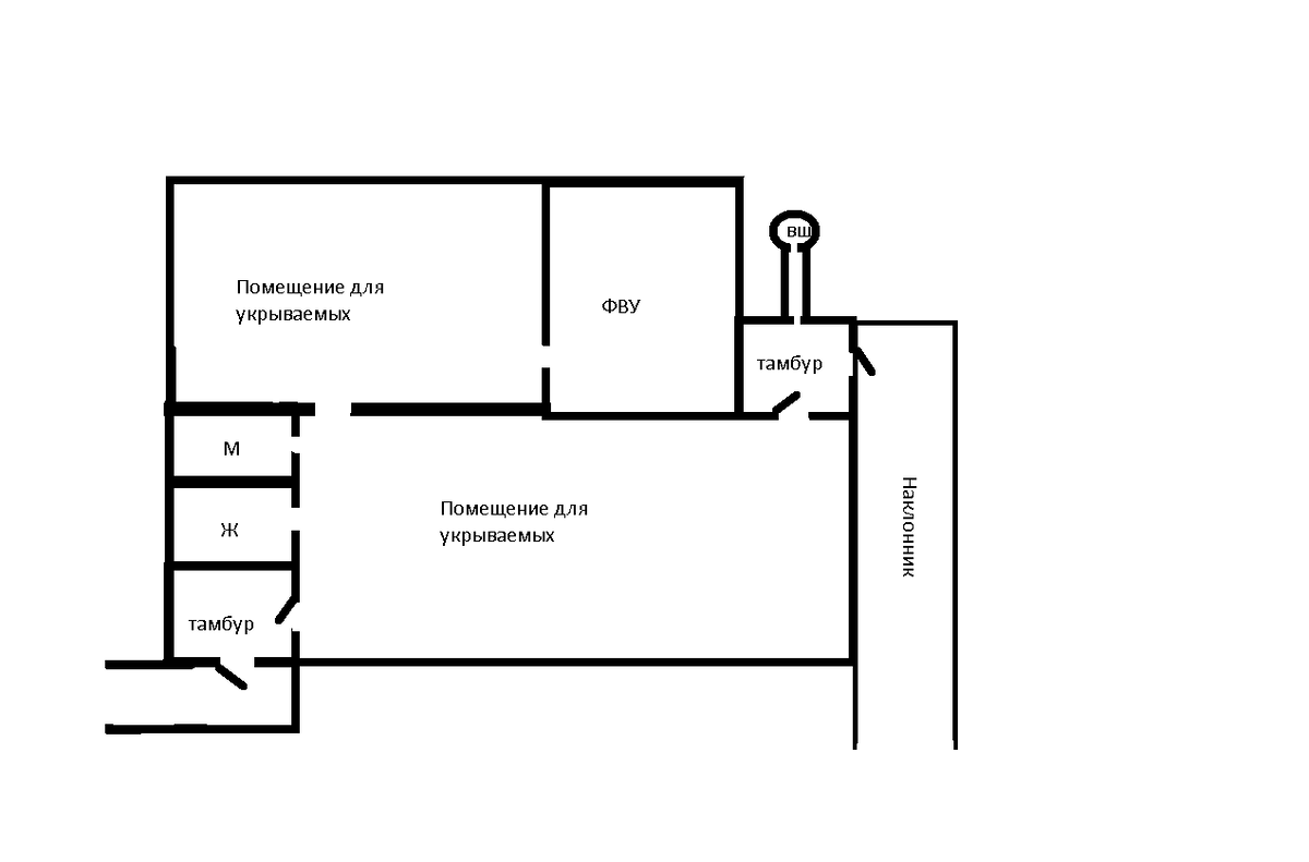
Схема

Как всегда, в убежище два входа, один наклонный, другой просто прямой

Заходим через наклонник (фотки наклонника увы нету, потому что я забыл его сфотать)

Спуск упирается в тамбур шлюз и бла-бла-бла, ничего особенного

Заходим в помещение для укрываемых. Кстати само убежище предназначено человек на 100-150.

В убежище располагались санузлы. Мужской и Женский

-4

Также в данном убежище была ФВУ

Ну и второй выход

Фотка была сделана другим человеком
Фотка была сделана другим человеком

Ну и на этом все, всем спасибо за прочтение данной статьи!)