Найти в Дзене
Филдс

Как дизайнер оформила нежнейшую однушку 42 м² для молодой девушки: планировка до и после

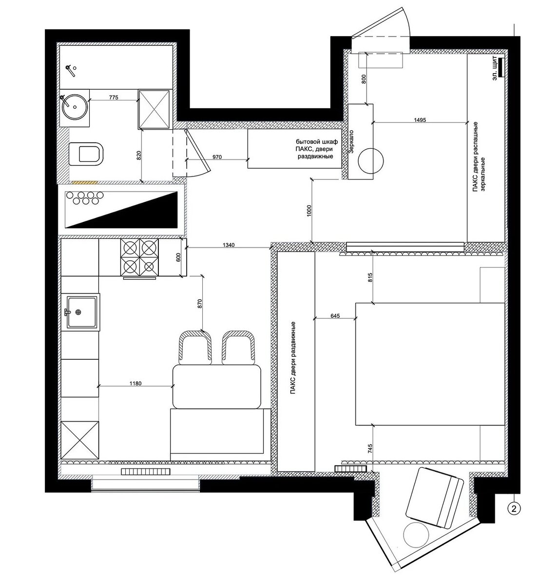
Дизайнер Виктория Вишневская оформила однокомнатную квартиру 42 м² для молодой девушки. Заказчица просила создать спокойный интерьер с бордовыми акцентами. В будущем планируется сдавать жильё в аренду. Планировка до и после Кухня На пол в кухне положили паркетную доску, стены оклеили обоями под покраску. Некоторые участки окрасили в бежевый, такой же оттенок выбрали для верхней половины штор на окнах. Спальня Вход в спальню закрыли стеклянными раздвижными дверьми. Для отделки использовали те же материалы, что и в кухне. Ярких красок добавляет текстиль и картина над изголовьем. Шторы на окнах дублируют те, которыми оснастили стеклянную перегородку. Прихожая Входную зону в прихожей выделили плиткой и обоями с гранатовым принтом. С ними коррелирует дверь глубокого бордового цвета. Вдоль одной из стен расположили вешалки для верхней одежды и консоль с пуфом, вдоль другой выстроили систему хранения. Далее по коридору находится ещё один вместительный шкаф для хозяйственных принадлежнос
Оглавление

Дизайнер Виктория Вишневская оформила однокомнатную квартиру 42 м² для молодой девушки. Заказчица просила создать спокойный интерьер с бордовыми акцентами. В будущем планируется сдавать жильё в аренду.

  • Общая площадь: 42 м²
  • Место: Москва
  • Тип дома: ЖК «Лосиный остров»
  • Количество комнат: 1
  • Высота потолка: 2,8 м
  • Бюджет: 3 млн рублей
  • Кто здесь живет: молодая девушка

Планировка до и после

Кухня

На пол в кухне положили паркетную доску, стены оклеили обоями под покраску. Некоторые участки окрасили в бежевый, такой же оттенок выбрали для верхней половины штор на окнах.

Спальня

Вход в спальню закрыли стеклянными раздвижными дверьми. Для отделки использовали те же материалы, что и в кухне. Ярких красок добавляет текстиль и картина над изголовьем. Шторы на окнах дублируют те, которыми оснастили стеклянную перегородку.

Прихожая

Входную зону в прихожей выделили плиткой и обоями с гранатовым принтом. С ними коррелирует дверь глубокого бордового цвета. Вдоль одной из стен расположили вешалки для верхней одежды и консоль с пуфом, вдоль другой выстроили систему хранения. Далее по коридору находится ещё один вместительный шкаф для хозяйственных принадлежностей.

Санузел

Для отделки стен в санузле использовали два вида вертикальной плитки, на пол положили керамогранит. Яркий контраст создаёт черная сантехника на красном фоне. Постер над инсталляцией оживил помещение и сделал его менее похожим на хозяйственное.

Подпишись на канал Филдс, чтобы первым видеть новые публикации. Интересные мнения в комментариях приветствуются. Если материал понравился — ставь лайк!

Facebook, Instagram, Вконтакте