Найти в Дзене
Кухонных дел Мастер

Коридор. Функциональньное хранение.

Коридор – это место повышенного внимания. Визитная карточка всего дома. Как театр начинается с вешалки, так дом начинается с коридора. Именно по этому, он должен быть максимально уютным, функциональным и красивым. В него хочется возвращаться вновь и вновь. Именно с этой мыслью проектировался данный проект. Нежные голубые оттенки стен с золотым тиснением. Древесные текстуры мебельных полотен. Благородные оттенки фурнитуры, перекликающиеся с люстрой и дополняющие акцент в общий вид. Все это дополняет общий образ уютного коридора. Функциональность тоже имеет не малую роль в данном проекте. У входа расположилась простая, лаконичная и в то же время функциональная конструкция с консолью для головных уборов и открытых полок для повседневной обуви. Еще на ней размещены гостевые крючки для верхней одежды. Вместительный и максимально удобный шкаф тоже нашел свое место. В нем есть все, что необходимо. Плательное отделение довольно просторное. В нем хорошо поместится вся верхняя одежда хозяев. Вы
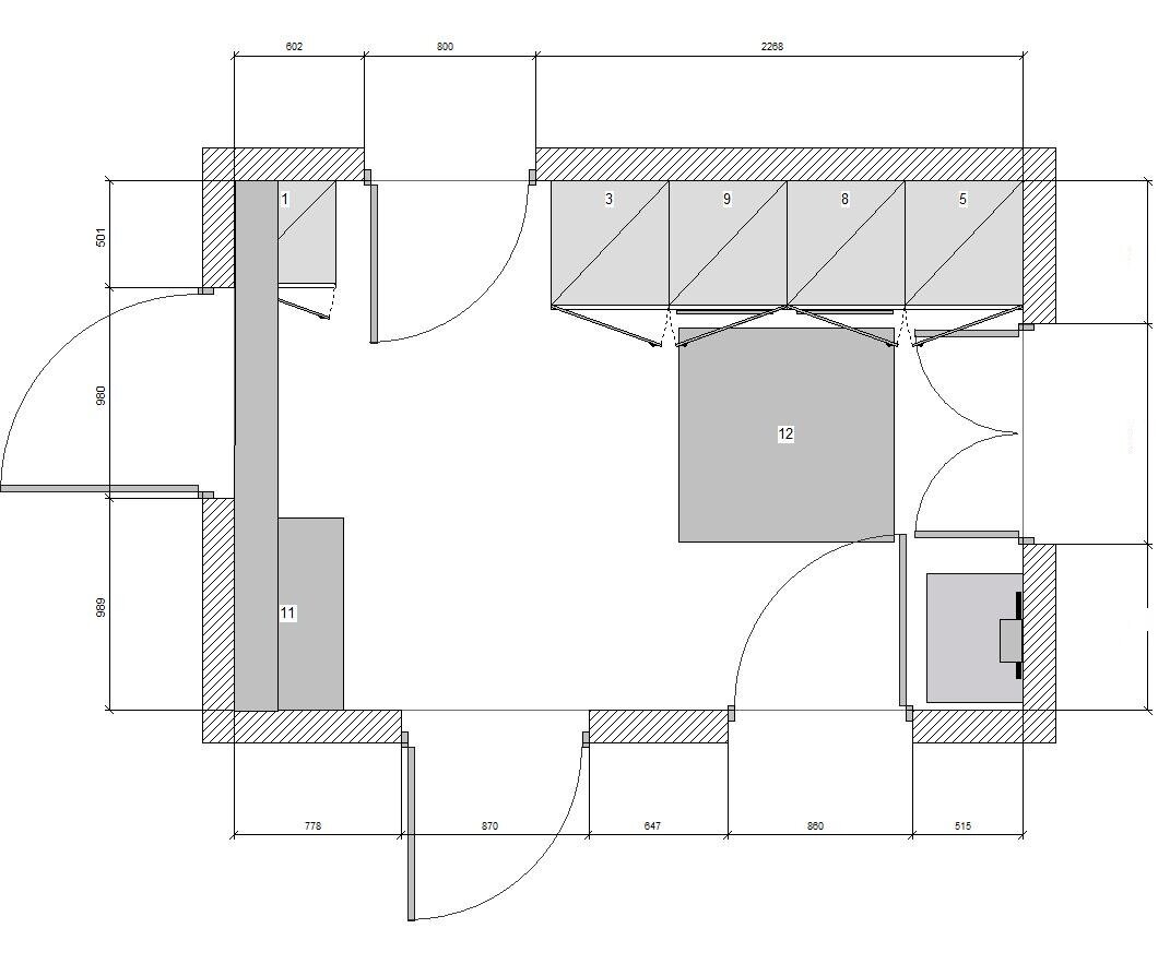
Вид планируемого проекта сверху
Вид планируемого проекта сверху

Коридор – это место повышенного внимания. Визитная карточка всего дома. Как театр начинается с вешалки, так дом начинается с коридора. Именно по этому, он должен быть максимально уютным, функциональным и красивым. В него хочется возвращаться вновь и вновь.

Именно с этой мыслью проектировался данный проект. Нежные голубые оттенки стен с золотым тиснением. Древесные текстуры мебельных полотен. Благородные оттенки фурнитуры, перекликающиеся с люстрой и дополняющие акцент в общий вид. Все это дополняет общий образ уютного коридора.

Функциональность тоже имеет не малую роль в данном проекте.

У входа расположилась простая, лаконичная и в то же время функциональная конструкция с консолью для головных уборов и открытых полок для повседневной обуви. Еще на ней размещены гостевые крючки для верхней одежды.

Вместительный и максимально удобный шкаф тоже нашел свое место. В нем есть все, что необходимо.

Плательное отделение
Плательное отделение

Плательное отделение довольно просторное. В нем хорошо поместится вся верхняя одежда хозяев. Высокие просторные полки дополнены модулем с выдвижными ящиками, которые так необходимы для мелкой одежды (шапок, шарфов, варежек и носков). Еще мы предусмотрели дополнительное отделение для незаменимых помощников в доме. Это пылесоса, гладильной доски и утюга. Это трио вечных скитальцев в доме, которым сложно найти подходящее место в доме. И они как следствие кочуют вечно без определенного месса обитания по всему дому.

Одним из особенностей шкафа являются и его высота под потолок. Антресоли отлично дополняют общую картину и максимально функционируют шкаф. В них можно разместить сезонные вещи, короба с системами хранения, обувь, крупногабаритные вещи.

Фасадная часть
Фасадная часть

Фасадная часть шкафа дополнена двумя большими зеркалами. Они очень удобные и объемные, а так же не заменимы в коридоре.

Готовый проект
Готовый проект

Весь корпус мебели выполнен из ЛДСП 16 мм. Основа фасадов из МДФ облицованных пленкой ПВХ высокой степени износостойкости.

Этот проект коридора простой, разработан для повседневной жизни. В нём есть всё, что нам нужно для комфортного житья и функционального хранения.

Так что если вам понравился этот проект, воплощенный в жизнь, ставьте палец верх и подписывайтесь на эту страничку.