Найти в Дзене

Проект дома с правильной планировкой - аналог Дубльдома 65м2

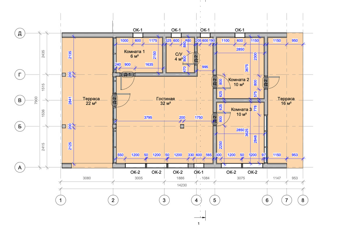
На самом деле таких домов много, но могу выделить этот из остальных, почему? Проект аналога ДубльДома 65м2 1. Три спальни – а это три личных пространства для семьи из 4-х человек (мама, папа, двое детей – среднестатистический состав семьи на 2021г): · Комната родителей - 10м2 · Комната одного ребенка – 10м2 · Комната второго ребенка – 6м2 Как вариант, если ребенок один, то из комнаты в 6м2 можно сделать кабинет, кладовую, техпомещение или гардеробную – решать вам. 2. Две террасы – есть место, где можно комфортно провести время вне дома – попить чай, почитать книгу, а если правильно расположить дом, то и полюбоваться красивым закатом: · Закрытая терраса - 22м2 (через нее расположен вход в дом – очень удобно, что она закрытая, если будет идти дождь или снег, будет дуть сильный ветер – это уже не будет проблемой) · Открытая терраса – 16м2 3. Просторная кухня- гостиная – 32м2, что даст возможность интересно, а главное функционально распределить мебель в пространстве. На кухне можно постави

На самом деле таких домов много, но могу выделить этот из остальных, почему?

Проект аналога ДубльДома 65м2

проект аналог ДубльДом 65м2
проект аналог ДубльДом 65м2

1. Три спальни – а это три личных пространства для семьи из 4-х человек (мама, папа, двое детей – среднестатистический состав семьи на 2021г):

· Комната родителей - 10м2

-2

· Комната одного ребенка – 10м2

-3

· Комната второго ребенка – 6м2

-4

Как вариант, если ребенок один, то из комнаты в 6м2 можно сделать кабинет, кладовую, техпомещение или гардеробную – решать вам.

2. Две террасы – есть место, где можно комфортно провести время вне дома – попить чай, почитать книгу, а если правильно расположить дом, то и полюбоваться красивым закатом:

-5
-6

· Закрытая терраса - 22м2 (через нее расположен вход в дом – очень удобно, что она закрытая, если будет идти дождь или снег, будет дуть сильный ветер – это уже не будет проблемой)

· Открытая терраса – 16м2

3. Просторная кухня- гостиная – 32м2, что даст возможность интересно, а главное функционально распределить мебель в пространстве.

На кухне можно поставить остров- как рабочую поверхность (думаю, что многие девушки были бы рады видеть его на своей кухне), продумать место в гостиной, где будет собираться вся семья, чтобы провести вместе свободное время и обеденный стол

-7
-8

4. Санузел – 4м2 – это наверно самый распространенный размер для данного помещения, можно разместить как ванну, так и душевую кабину, плюс раковину и унитаз и небольшой шкафчик для хранения полотенец или различной химии для уборки дома

-9
-10

И важно разместить дом правильно относительно сторон света, т.к. в планировке есть сторона с большими окнами – ее лучше всего расположить на юг, и противоположная, на которой расположены 4-е небольших окошка – расположить на север. Тогда наши террасы будут смотреть – открытая на восток и будет видно восход солнца и закрытая на запад и будет видно закат – можно посидеть и полюбоваться красивейшими видами.

Так же у проекта есть вторая планировка, которую мы делали недавно под другого заказчика. Мы не меняли внешних размеров, изменили внутреннее пространство- изменив расположение внутренних перегородок. Так же мы убрали опорный столб в гостиной за счет того, что распределили по-другому нагрузку (увеличили сечение доски ригеля).

-11

1. Здесь так же три спальни – данный плюс присутствует и в этой планировке – немного изменились площади спален:

· Комната родителей - 10м2

-12

· Комната одного ребенка – 6м2

-13

· Комната второго ребенка – 6м2

-14

Как вариант, если ребенок один, то из одной из комнат в 6м2 можно сделать кабинет, кладовую, техпомещение или гардеробную – решать вам.

2. Две террасы – это тоже не поменялось, но здесь вход с открытой террасы, так же

остались места, где можно комфортно провести время вне дома – попить чай, почитать книгу, а если правильно расположить дом, то и полюбоваться красивым закатом:

· Закрытая терраса - 22м2

-15
-16

· Открытая терраса – 16м2

-17
-18

3. Плюсом у нас появился коридор- прихожая – 4м2 – есть место где можно оставить верхнюю одежду и обувь, не входя сразу в гостиную-кухню, как в предыдущей версии

-19

4. Неизменно просторной остается кухня- гостиная – 30м2

-20
-21

5. Санузел в этой планировке увеличен до 6м2 –что еще просторнее и даст возможность разместить например гладильную доску и сушилку для белья

-22
-23

Теперь давайте рассмотрим техническую часть дома:

1. В обоих планировках утепление:

· Пол 200мм

· Наружные стены 150мм+50мм (перехлестное утепление)=200мм, внутренние перегородки 150мм

· Кровля 200мм

2. Фундамент:

· Оригинальная планировка – винтовые сваи

· Измененная планировка – два варианта – УШП и винтовые сваи

3. Пироги конструктивов – последовательность слоев в конструкциях

-24

Состав проектов:

1. Оригинальная версия:

· 3д модель SketchUp

· Конструктивный раздел (рабочие чертежи)

· Файлы по распиловке по пиломатериалам

· Подробная смета на строительные материалы (без учета сантехники и электрики)

2. Измененная планировка:

· 3д модель SketchUp

· Конструктивный раздел (рабочие чертежи)

· Файлы по распиловке по пиломатериалам

Итак, подведем итог – данный проект может закрыть потребности большей части людей, тк содержит в своем составе все необходимое для строительства даже непрофессиональными руками (все наши проекты содержат подробную информацию по узлам соединения и запилы, рабочие чертежи максимально удобны в своем оформлении и просты для понимания информации), плюсом удобная и функциональная планировка понравиться, я думаю, каждому третьему, кто познакомиться с данным проектом.

Пример разработки 3д планировки дома
Пример разработки 3д планировки дома

И даже, если вам не подойдет ни одна из представленных планировок, мы можем скорректировать ее специально под вас, потому что мы понимаем важность удобства размещения помещений и готовы удовлетворить все ваши запросы, учитывая при этом конструктивные изменения, которые нужно внести в рабочие чертежи.

Ждем вас на нашем сайте Domokea.ru