Добавить в корзинуПозвонить
Найти в Дзене
Проектная мастерская №16

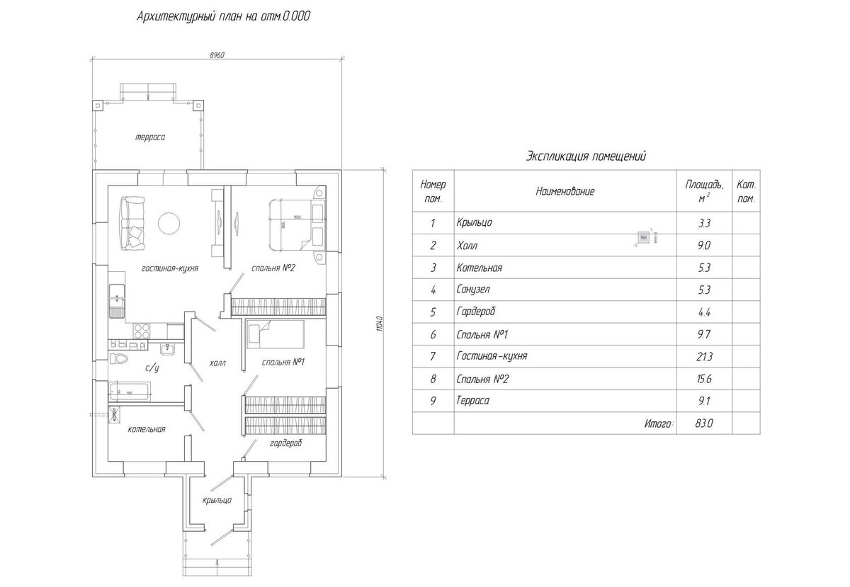
План и фото одноэтажного дома на 80кв.м. для пожилой пары - когда живете вдвоем.

Вашему вниманию планировка дома для проживания семейной пары (двух человек) - одна спальная комната + небольшая гостевая спальня. Стены - облицока + крупноформатный керамический камень шириной 440мм + фото внутри дома Хотите посмотреть другие планировки? Тогда добро пожаловать на НАШ КАНАЛ!

Вашему вниманию планировка дома для проживания семейной пары (двух человек) - одна спальная комната + небольшая гостевая спальня.

-2

Стены - облицока + крупноформатный керамический камень шириной 440мм

+ фото внутри дома

Хотите посмотреть другие планировки?

Тогда добро пожаловать на НАШ КАНАЛ!