Найти в Дзене
Проектная мастерская №16

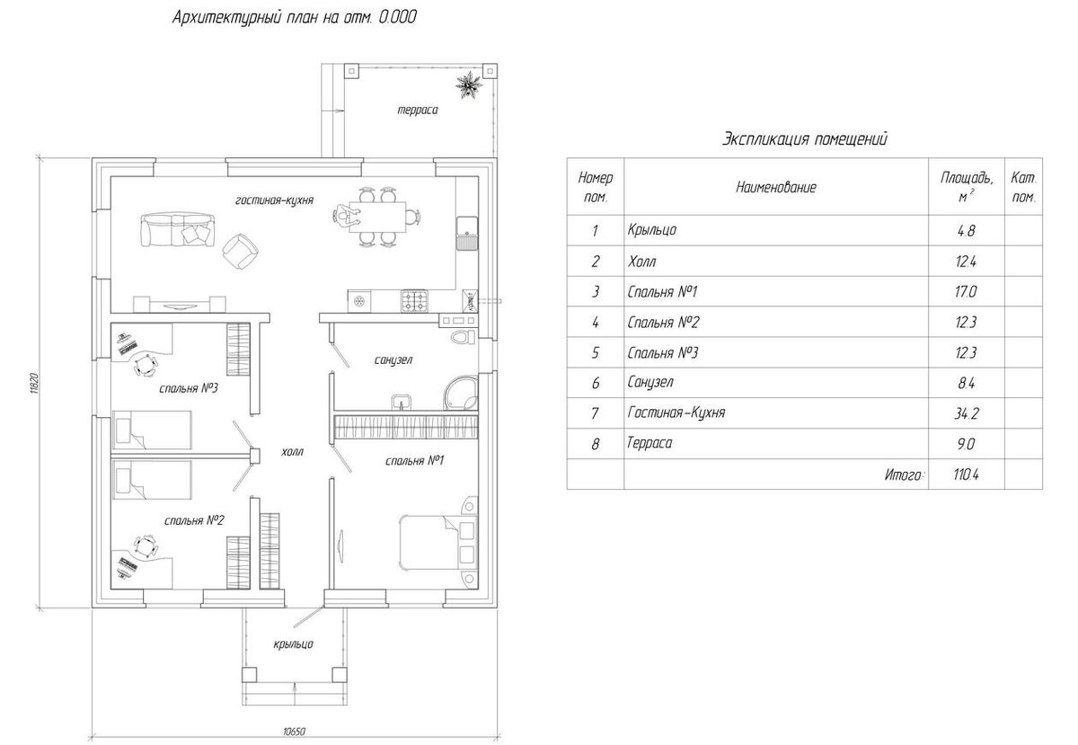
Проект одноэтажного кирпичного дома площадью 110кв.м. - с просторной террасой. Фото построенного дома снаружи и внутри + план

Стоимость проекта - 16500т.р.
Стоимость строительства в черновом варианте - 2.75млн.р.
Стоимость строительства в предчистовом варианте - 3.30млн.р.

-2

Архитектурное решение
Фасад дома выполнен керамическим лицевым кирпичом 1.4НФ, солома-шоколад. Входная группа дома встречает крыльцом под навесом на двух кирпичных столбах, через которое проходим в холл. Из холла мы можем попасть во все помещения дома. Здесь расположились хозяйская спальная комната и две детские, санузел (ванная комната), гостиная и кухня совмещенные. Из гостиной имеется выход на террасу.

Конструктивное решение
Фундамент дома - железобетонный монолитный ленточный на коротких сваях. Стены дома выполнены по трехслойной системе с наружным слоем из керамического лицевого кирпича 1.4НФ, слоем изоляции толщиной 100мм из минваты или пенополистирола, внутренним слоем из керамического пустотелого кирпича 2.1НФ толщиной 250мм. Общая толщина наружной стены - 490мм. Полы выполнены по железобетонной монолитной плите. Чердачное перекрытие - по деревянным балкам. Крыша - металлочерепица по деревянной стропильной системе.

Возможны другие варианты конструктивных решений по согласованию с заказчиком.

Понравилась планировка - добавь в избранное. Хочешь заказать проект? Пиши на ватсап +79047122103

Каталог проектов смотрите здесь <<- там больше наших проектов

или смотрите на Дзене на нашем канале.