Найти в Дзене

Квартира на Площади Победы- планировка решает все.

Квартира на Площади Победы в кирпичном доме 60- х годов. Это была эпоха борьбы с архитектурными "излишествами" фасадов сталинской архитектуры , но в этом типе домов наличествовали достаточно высокие потолки и толстые стены и главное - качественное строительство по СНИПам. Какие минусы у квартир в таких домах: 1. УЖАСНЫЕ ТЕМНЫЕ КОРИДОРЫ. 2. БЕТОННЫЕ РИГЕЛЯ ПОД ПОТОЛКОМ 3. КОШМАРНО ТЕСНЫЕ ВАННЫЕ КОМНАТЫ. Все эти минусы могут быть устранены при помощи разумной и продуманной планировки , хорошей организации пространства. Нужно отметить , что хозяин квартиры - молодой человек.   Коридорная система - это полный ад и железобетонные ригеля, после демонтажа смотрятся очень депрессивно. Мы сделали облицовку деревом потолочных балок и получили систему панелей с полками , системой хранения и стеклянными панелями за телевизором. Главное - пространство , это гостиная , увеличенная за счет проходного коридора и соединена с кухней через проем со столешницей за изголовьем дивана. Таким образом мы

Квартира на Площади Победы в кирпичном доме 60- х годов. Это была эпоха борьбы с архитектурными "излишествами" фасадов сталинской архитектуры , но в этом типе домов наличествовали достаточно высокие потолки и толстые стены и главное - качественное строительство по СНИПам.

Какие минусы у квартир в таких домах:

1. УЖАСНЫЕ ТЕМНЫЕ КОРИДОРЫ.

2. БЕТОННЫЕ РИГЕЛЯ ПОД ПОТОЛКОМ

3. КОШМАРНО ТЕСНЫЕ ВАННЫЕ КОМНАТЫ.

Все эти минусы могут быть устранены при помощи разумной и продуманной планировки , хорошей организации пространства. Нужно отметить , что хозяин квартиры - молодой человек. 

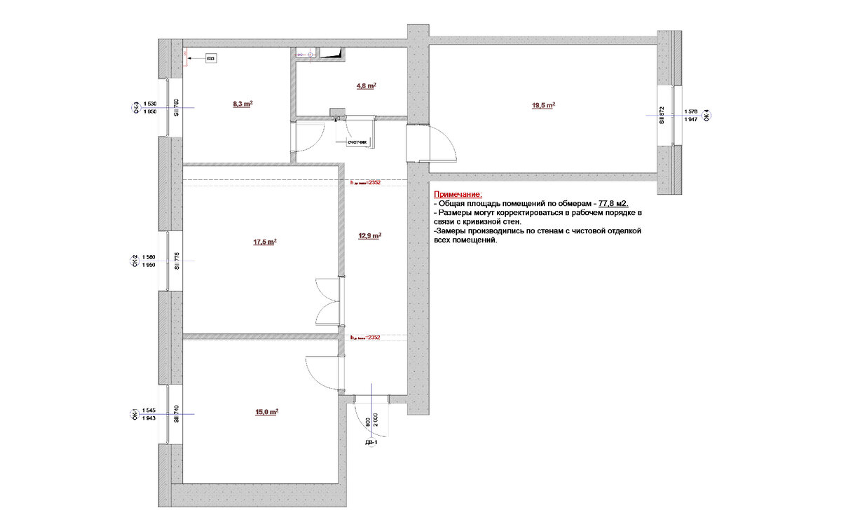
План до реконструкции
План до реконструкции
План после реконструкции
План после реконструкции

 Коридорная система - это полный ад и железобетонные ригеля, после демонтажа смотрятся очень депрессивно. Мы сделали облицовку деревом потолочных балок и получили систему панелей с полками , системой хранения и стеклянными панелями за телевизором.

Гостиная с проемом в сторону кухни
Гостиная с проемом в сторону кухни

Главное - пространство , это гостиная , увеличенная за счет проходного коридора и соединена с кухней через проем со столешницей за изголовьем дивана. Таким образом мы убрали длинный коридор и создали студийное большое пространство в центре квартиры. Единый потолок с подсветкой периметра и встроенными деревянными линейными панелями выглядит строго и конструктивно.

-4

Ванная увеличена за счет коридора ( вполне согласуемо) и на этом месте создали объем для душевой. Есть и ванная. В квартире две спальне - основная , примыкает к ванной и гостевая , которую можно переделать в детскую. Эти два помещения разнесены в разные зоны . При входе - встроенный шкаф. 

Подбор материалов и мебели весьма неплох, на полах массивная доска - тик. Настенные панели - шпон ореха. Кухня Scavolini , диван Minotti. Плитка Versace.

Вид в  сторону кухни - прекрасная была фабрика Scavolini.
Вид в сторону кухни - прекрасная была фабрика Scavolini.

Стена в коридоре декорирована керамогранитом , воспроизводящим фактуру кирпича. На полу коридора керамогранит SanAgistino со вставками из мраморной мозаики Trend.

Вид в гостиной - в сторону проходной зоны ,к спальне и ванной комнате.
Вид в гостиной - в сторону проходной зоны ,к спальне и ванной комнате.
Панно в гостевой спальне
Панно в гостевой спальне
Ванная комната - плитка Versace
Ванная комната - плитка Versace
Спальня.
Спальня.

Ая а