Найти в Дзене
MoreRemonta

Как мы самостоятельно согласовали перепланировку в Москве. Нам отказали только 1 раз!

Наш опыт подтверждает, что согласование перепланировки - это не так страшно, как кажется! Читайте в статье: от подачи документов до получения разрешения на выполнение работ. С фото документов. Пакет документов Мы с мужем купили квартиру 68 кв.м. в Сталинке 1957 года постройки. Решение о перепланировке приняли сразу и были готовы к тому, что процесс будет сложным (почти невозможным). Так как у нас газовое оборудование находится на кухне и в ванне, дом старый, да и истории перепланировок от знакомых не вдохновляли на быстрое согласование документов. Но попробовать стоило! 1. Мы самостоятельно продумали будущую планировку нашей квартиры (это значительно экономит деньги и время): начертили план квартиры и проконсультировались, что наши хотелки можно реализовать законно. Вот что получилось: План квартиры ДО: План квартиры ПОСЛЕ: 2. С готовым дизайн-проектом собственного исполнения мы обратились в проектную организацию с СРО (Это важно!!!). Не смотря на то, что инженеры из этой организации в
Оглавление

Наш опыт подтверждает, что согласование перепланировки - это не так страшно, как кажется! Читайте в статье: от подачи документов до получения разрешения на выполнение работ. С фото документов.

Перепланировка в нашей сталинке идет полным ходом. Фото автора
Перепланировка в нашей сталинке идет полным ходом. Фото автора

Пакет документов

Мы с мужем купили квартиру 68 кв.м. в Сталинке 1957 года постройки. Решение о перепланировке приняли сразу и были готовы к тому, что процесс будет сложным (почти невозможным). Так как у нас газовое оборудование находится на кухне и в ванне, дом старый, да и истории перепланировок от знакомых не вдохновляли на быстрое согласование документов. Но попробовать стоило!

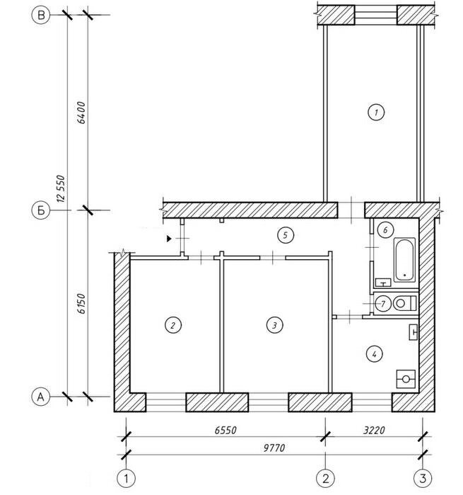
1. Мы самостоятельно продумали будущую планировку нашей квартиры (это значительно экономит деньги и время): начертили план квартиры и проконсультировались, что наши хотелки можно реализовать законно. Вот что получилось:

  • длинный коридор присоединили к комнатам, чтобы полезно использовать площадь квартиры
  • добавили кладовку в комнату №1
  • изменили конфигурацию санузла и ванны, а также расположение сантехники
  • изменили расположение газового оборудования

План квартиры ДО:

-2

План квартиры ПОСЛЕ:

-3

2. С готовым дизайн-проектом собственного исполнения мы обратились в проектную организацию с СРО (Это важно!!!). Не смотря на то, что инженеры из этой организации выехали к нам на объект, всё-таки основные данные по расположению стен и перегородок были взяты с нашего дизайн-проекта.

В проектной организации мы заказали 2 проекта (стоило около 25 000 руб.):

  • проект внутренней перепланировки/переустройства, содержание которого вы видите на фото:
-4
  • техническое заключение о состоянии несущих и ограждающих конструкций здания и возможности внутренней перепланировки/переустройства квартиры:
-5

Подготовка проекта и технического заключения заняла 10 дней. Добавьте к этому время на проверку и правки с нашей стороны. В итоге за 2 недели проект был готов.

3. Пришло время подавать документы в Мосжилинспекцию.

Не буду дублировать информацию с официальных источников. Лучше дам ссылку на mos.ru, где перечислены:

  • работы, которые нужно согласовывать,
  • список документов и многое другое.

Из основных документов требовалось:

  • план БТИ, который мы получили от предыдущих собственников квартиры;
  • разрешение от Мосгаза;
  • разрешение от банка, т.к. квартира куплена в ипотеку:
-6

Подаем заявление

Сейчас из-за известных всем ограничений офлайн-заявления не принимают, только онлайн через mos.ru. На мой взгляд, это даже удобнее. О каждом изменении статуса приходят сообщения на почту.

И вот через месяц пришло уведомление - отказ. Другого я и не ожидала! Я была уверена, что у нас ничего не получится и вся эта затея плохо кончится.

После уведомления на почту об отказе, хотела уже обращаться в проектную организацию на ПОЛНОЕ согласование перепланировки - чтобы всё сделали за меня.

Но на деле оказалось, что замечания только по содержанию проекта, которые быстро исправляются:

-7

Я скинула отказ проектной документации. В течение недели они внесли изменения в документы, чтобы я могла подать заново.

Результат

Еще через месяц нам выдали положительное решение, а именно нам согласовали переустройство и перепланировку в квартире:

  • Разработку и устройство ненесущих перегородок, в том числе с дверными блоками.
  • Изменение границ ванной (за счет площади уборной и части коридора) и устройство уборной (за счет части площади существующей ванной)
  • Перестановка газовой плиты специализированной организацией
  • Демонтаж, перенос и установка сантехнического оборудования
  • Устройство декоративных элементов, в том числе с доступом к инженерным коммуникациям
  • Устройство конструкции полов без затрагивания межэтажного перекрытия, в том числе с выполнением гидроизоляции.
Выполнить ремонтные работы мы должны в срок с сентября 2021 по сентябрь 2022 г.

Но это только разрешение на выполнение работ! После ремонта нам предстоит:

  • получить документы от Мосгаза и уведомить Мосжилинспекцию об окончании работ,
  • пригласить сотрудников инспекции для приемки работ и оформления акта о завершении переустройства и перепланировки помещения.

Тогда перепланировка будет считаться узаконенной и будут внесены изменения в план БТИ. Расскажу об этом в отдельной статье! А пока подписывайтесь на мой канал и Телеграм, чтобы следить за ходом ремонта.

Если есть вопросы, задавайте в комментариях! И поделитесь вашим опытом, легко ли было оформить перепланировку?

Читайте также: