Добавить в корзинуПозвонить
Найти в Дзене

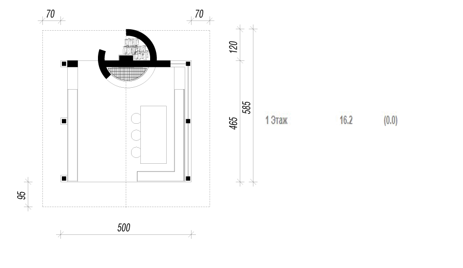
Проект одноэтажной беседки 25 м2

Типовой готовый проект одноэтажной беседки 25 м2в европейском стиле. Общая площадь: 25 м2
Габариты: 5.00 x 5.85 м
Этажность: 1
Фундамент: ленточный ж/б
Крыша: мансардная
Кровля: керамическая черепица
Стиль: Европейский Разделы проекта Подробнее с проектом можно ознакомиться на сайте deutek.ru Номер проекта: SK-19 Стоимость проекта: 4.000 руб. Заказать проект можно на сайте deutek.ru или по телефону +7 (495) 211-77-79 . Другие проекты можете посмотреть в этом разделе https://zen.yandex.ru/proektirovaniedomov Подписывайтесь на канал, ставьте лайки.
Проект SK-19
Проект SK-19

Типовой готовый проект одноэтажной беседки 25 м2в европейском стиле.

Общая площадь: 25 м2
Габариты: 5.00 x 5.85 м
Этажность: 1
Фундамент: ленточный ж/б
Крыша: мансардная
Кровля: керамическая черепица
Стиль: Европейский

Разделы проекта

  • АР(архитектурный раздел);
  • КР(конструктивный раздел);
Проект SK-19
Проект SK-19
Проект SK-19
Проект SK-19

Подробнее с проектом можно ознакомиться на сайте deutek.ru

Номер проекта: SK-19
Стоимость проекта: 4.000 руб.
Заказать проект можно на сайте deutek.ru или по телефону
+7 (495) 211-77-79 .
Другие проекты можете посмотреть в этом разделе
https://zen.yandex.ru/proektirovaniedomov

Подписывайтесь на канал, ставьте лайки.