Добавить в корзинуПозвонить
Найти в Дзене
Строим мечту

Кадастровые инженеры - профессионалы своего дела?

Решили мы с супругой узаконить наш (пока еще не до конца, но жить можно) построенный дом. Что для этого необходимо? Подать заявление на регистрацию дома. По упрощенному варианту, без приложения разрешения (или уведомления) на строительство, а для этого нам потребовался технический план нашего дома, который должны выполнять люди, называющие себя кадастровыми инженерами. Эти люди аттестовываются, включаются в реестр специалистов... в общем профессионалы из профессионалов, по крайней мере на первый взгляд. Выбрали мы специалиста, который к нашему дому поближе, спросили цену, заключили договор на 12 тысяч за полный комплект документов (декларация + технический план дома на бумаге и электронном носителе), назначили день замеров. На замеры кадастровый инженер приехала с подмогой из двух девушек. Зачем подмога при замере лазерной рулеткой - честно не понимаю, я обычной рулеткой в одиночку спокойно замеры делаю, а тут лазерной втроем... Они довольно оперативно "отстреляли" углы дома, провери

Решили мы с супругой узаконить наш (пока еще не до конца, но жить можно) построенный дом. Что для этого необходимо? Подать заявление на регистрацию дома. По упрощенному варианту, без приложения разрешения (или уведомления) на строительство, а для этого нам потребовался технический план нашего дома, который должны выполнять люди, называющие себя кадастровыми инженерами. Эти люди аттестовываются, включаются в реестр специалистов... в общем профессионалы из профессионалов, по крайней мере на первый взгляд. Выбрали мы специалиста, который к нашему дому поближе, спросили цену, заключили договор на 12 тысяч за полный комплект документов (декларация + технический план дома на бумаге и электронном носителе), назначили день замеров.

На замеры кадастровый инженер приехала с подмогой из двух девушек.

Зачем подмога при замере лазерной рулеткой - честно не понимаю, я обычной рулеткой в одиночку спокойно замеры делаю, а тут лазерной втроем...

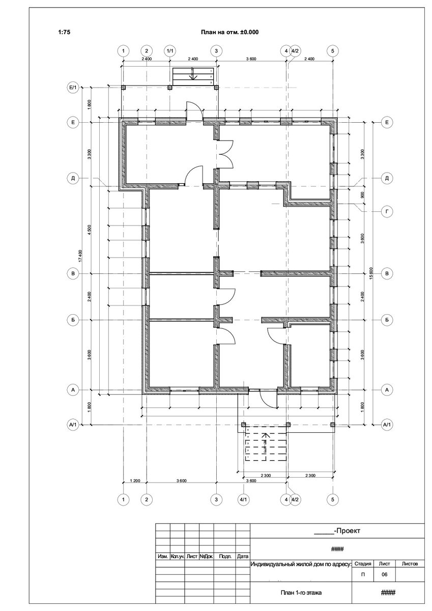
Они довольно оперативно "отстреляли" углы дома, проверили периметр забора, и перешли к измерениям в доме. Заботливо предложенные планы первого и второго этажа брать не стали, так как (с их слов) им в этих планах что то было не понятно.

Ну, хотят рисовать план дома от руки при замерах - их право, препятствовать не стали. За примерно час отрисовав планы первого и второго этажей, сняв все внутренние размеры комнат бригада "инженеров" уехала чертить, считать, оформлять...

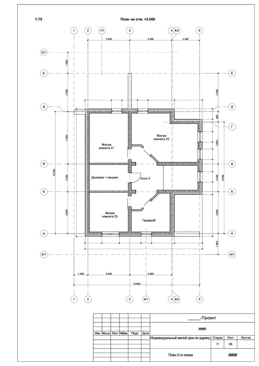
Через неделю мне скинули Технический план дома на согласование:

Указали инженерам на пропущенную перегородку на втором этаже, и стали ждать готовые документы, которые мне торжественно вручили под роспись.

Приезжаю домой, начинаю вчитываться в сопроводительную документацию, и вижу площадь дома 217 м2. ДВЕСТИ чтоб их СЕМНАДЦАТЬ МЕТРОВ!!!!! КАК???

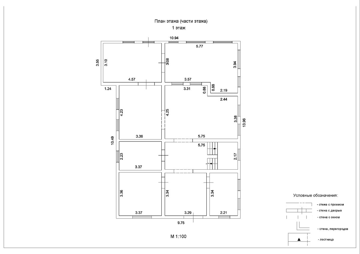
Калькулятор в руки, начинаю пересчитывать по приложеному в этих же документах плану:

Первый этаж

Котельная: внутренние размеры 3,1х4,57=14,167 м2

Веранда: 3,08х5,77+0,88*2,19=19,70 м2

Кухня: 4,23х3,36=14,21 м2

Гостиная: 3,38х5,75+3,31х0,88=22,35 м2

Санузел: 2,23х3,37=7,52 м2

Лестничная клетка: 5,75х2,17=12,48 м2

Гостевая/кабинет супруги (место хранения швейной машинки до лучших или худших времен):3,37х3,36=11,32 м2

Холл: 3,34х3,29=10,99 м2

Прачка: 3,34х2,21=7,38 м2

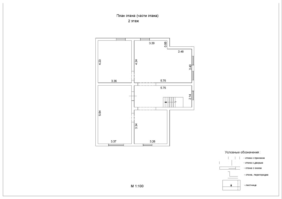
Второй этаж

Спальня: 4,23*3,36=14,21 м2

Детская: 3,38х5,75+3,31х0,88=22,35 м2

Санузел: 2,23х3,37=7,52 м2

Лестничная клетка: 5,75х2,17=12,48 м2

Мой кабинет: 3,37х3,36=11,32 м2

Гардероб: 3,34х3,29=10,99 м2

Итого получается 14,167+19,70+14,21+22,35+7,52+12,48+11,32+10,99+7,38+14,21+22,35+7,52+12,48+11,32+10,99=198,99м2.

Вопрос: Как эти дипломированные, аттестованные, включенные в реестр специалистов "инженеры" допустили такую грубую ошибку в столь ответственных документах? Само собой, мы с супругой заставили все переделать, чем они благополучно занимаются уже 4 дня. Они еще и расчет площади попросили скинуть, так как не могут понять, почему у них ошибка. А если бы я не проверил расчеты? (много из вас школьный курс геометрии помнит, чтобы проверять работу таких вот "специалистов"?).