Добавить в корзинуПозвонить
Найти в Дзене
МОНОЛИТ-ХАУС

Готовим к сдаче дом в стиле барнхаус

Дом в СНТ "Осинка" города Санкт-Петербурга строился по индивидуальному проекту. За два года были выполнены все строительно-монтажные, инженерные работы, благоустройство участка. Дом рассчитан для комфортного проживания семьи их 4-6 человек. На первом этаже расположены общие зоны и гостевая спальня. На втором этаже - три спальных комнаты и общий санузел. Еще остались работы по фасаду и благоустройству, но в целом уже можно оценить на сколько интересным, индивидуальным и стильным получился этот дом! Фасады дома выполнены из стильной и современной цементно-песчаной черепицы глубокого черного цвета и деревянного планкена разной ширины. #монолитхаус #загородное строительство спб #строительство домов под ключ #санкт-петербург #строим дом под ключ

Дом в СНТ "Осинка" города Санкт-Петербурга строился по индивидуальному проекту. За два года были выполнены все строительно-монтажные, инженерные работы, благоустройство участка.

Монолит-Хаус. Дом в СНТ "Осинка"
Монолит-Хаус. Дом в СНТ "Осинка"

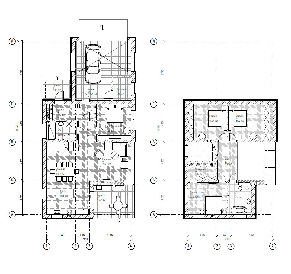
Дом рассчитан для комфортного проживания семьи их 4-6 человек. На первом этаже расположены общие зоны и гостевая спальня. На втором этаже - три спальных комнаты и общий санузел.

Монолит-Хаус. Планировки дома
Монолит-Хаус. Планировки дома
Монолит-Хаус. Дом в СНТ "Осинка"
Монолит-Хаус. Дом в СНТ "Осинка"

Еще остались работы по фасаду и благоустройству, но в целом уже можно оценить на сколько интересным, индивидуальным и стильным получился этот дом!

Монолит-Хаус. Дом в СНТ "Осинка"
Монолит-Хаус. Дом в СНТ "Осинка"

Фасады дома выполнены из стильной и современной цементно-песчаной черепицы глубокого черного цвета и деревянного планкена разной ширины.

Проектируем и строим дома с 2007 года. Санкт-Петербург и Ленобласть
Проектируем и строим дома с 2007 года. Санкт-Петербург и Ленобласть

#монолитхаус #загородное строительство спб #строительство домов под ключ #санкт-петербург #строим дом под ключ