Найти в Дзене
Филдс

Характер стойкий, нордический: евродвушка 57 м² в центре Петербурга для сдачи в аренду, в которой вы захотите остаться навсегда

Дизайнеры из студии INT2architecture оформили евродвушку 57 м² в доходном доме конца XVIII — начала XIX вв. в центре Санкт-Петербурга. Апартаменты предназначаются для сдачи в аренду. В интерьере совместили индустриальную отделку и элементы стиля mid-century. Планировка Гостиная Силуэт дивана с деревянными ножками и подлокотниками напоминает модели из советского прошлого. С ним соотносится тумба у стены напротив, которую использовали как платформу для демонстрации арт-объектов и элементов декора. Кухня Зону кухни выделили контрастным цветом. В тон серому оттенку стены подобрали и фасады. Мини-холодильник и морозилка находятся в шкафах нижнего яруса. Деревянная столешница с бортиками одновременно выступает и в роли фартука. Её изготовили на заказ из ясеня. Спальня В спальне настенные панели лишились вертикальных молдингов. Площадь комнаты позволила обустроить в ней рабочее место. Чёрные письменный стол и стул в индустриальном стиле составили необычный симбиоз с а-ля советскими
Оглавление

Дизайнеры из студии INT2architecture оформили евродвушку 57 м² в доходном доме конца XVIII — начала XIX вв. в центре Санкт-Петербурга. Апартаменты предназначаются для сдачи в аренду. В интерьере совместили индустриальную отделку и элементы стиля mid-century.

  • Общая площадь: 57 м²
  • Место: Санкт-Петербург
  • Количество комнат: евродвушка
  • Тип дома: доходный дом конца XVIII – начала XIX вв.
  • Кто здесь живет: сдаётся в аренду

Планировка

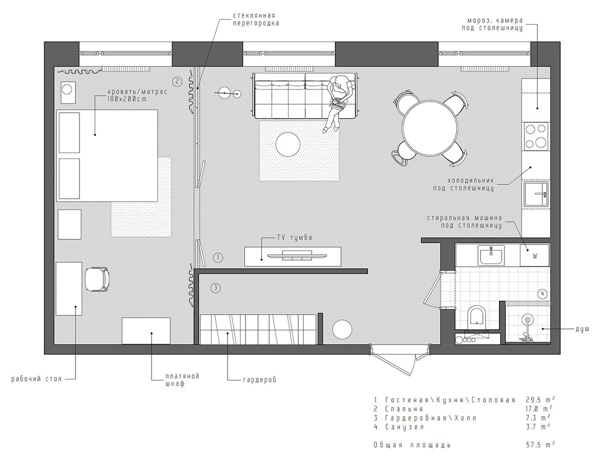
Планировку сделали студийной. Спальню отделили стеклянной перегородкой, однако визуально она воспринимается как часть кухни-гостиной. В качестве напольного покрытия во всей квартире использовали бетонную стяжку, её отшлифовали и покрыли полуглянцевой краской. На стенах — шпатлёвка под покраску. В роли дополнительного декора выступили настенные панели из молдингов в цвет пола. Единая отделка сделала интерьер более цельным.
Планировку сделали студийной. Спальню отделили стеклянной перегородкой, однако визуально она воспринимается как часть кухни-гостиной. В качестве напольного покрытия во всей квартире использовали бетонную стяжку, её отшлифовали и покрыли полуглянцевой краской. На стенах — шпатлёвка под покраску. В роли дополнительного декора выступили настенные панели из молдингов в цвет пола. Единая отделка сделала интерьер более цельным.

Гостиная

Силуэт дивана с деревянными ножками и подлокотниками напоминает модели из советского прошлого. С ним соотносится тумба у стены напротив, которую использовали как платформу для демонстрации арт-объектов и элементов декора.

Кухня

Зону кухни выделили контрастным цветом. В тон серому оттенку стены подобрали и фасады. Мини-холодильник и морозилка находятся в шкафах нижнего яруса. Деревянная столешница с бортиками одновременно выступает и в роли фартука. Её изготовили на заказ из ясеня.

Спальня

В спальне настенные панели лишились вертикальных молдингов. Площадь комнаты позволила обустроить в ней рабочее место. Чёрные письменный стол и стул в индустриальном стиле составили необычный симбиоз с а-ля советскими прикроватными тумбами.

Прихожая

В прихожей настенные панели заменяет высокий «плинтус», в этой роли выступает полоса краски в цвет пола. Слева от входа предусмотрели вытянутый «карман», где разместили основную систему хранения.

Санузел

В санузле скомбинировали белую плитку и краску тёмно-серого оттенка. Чтобы стереть границы между плоскостями, тёмным сделали и потолок. Немного тепла добавила деревянная столешница с бортиками, под которой спрятали тумбу, стиральную машину и корзину для белья.

-6

Подпишись на канал Филдс, чтобы первым видеть новые публикации. Интересные мнения в комментариях приветствуются. Если материал понравился — ставь лайк!

Facebook, Instagram, Вконтакте