Добавить в корзинуПозвонить
Найти в Дзене
Эльжбета Чегарова

Фэн-шуй в интерьере: планировка по секторам и звездам. Ванная

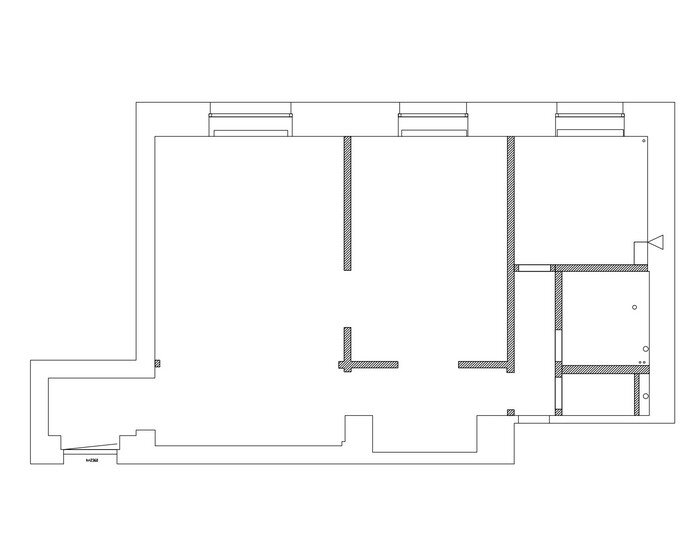
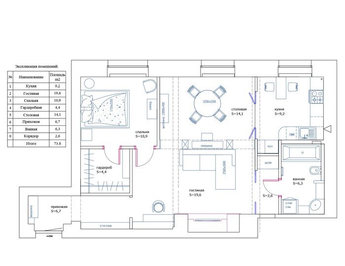
Представляете, как бывает? Купил человек квартиру, старый фонд - район хороший, дом солидный. А вот что-то неуловимое в ней присутствует, что тяготит. Аура какая-то, энергетика, что ли. Заказчица на два года отложила сотрудничество - сначала надо понять, примириться с квартирой, а потом ее преображать. Настал час! Линии и круги элементов прочерчены, тигры и змеи в треугольники расставлены. Исходная планировка: Перепланировка: Из доклада специалистов, ванная квартиры расположена в юго-восточном секторе, где сосредоточены звезды 1 (горная), 6 (водная) и 2 (периода). Горная звезда 1 управляет здоровьем и состоянием внутренней гармонии (ура, какое помещение обладает большим влиянием на здоровье, чем ванная?). Горные звёзды «любят», когда они поддержаны массивными предметами. Это может быть соседнее здание, забор на улице, массивный шкаф или несущая стена в доме (в нашем случае, это несущая стена и большой шкаф, скрывающий стиральную и сушильную машины). Горным звёздам необходима поддержка

Представляете, как бывает? Купил человек квартиру, старый фонд - район хороший, дом солидный. А вот что-то неуловимое в ней присутствует, что тяготит. Аура какая-то, энергетика, что ли.

Заказчица на два года отложила сотрудничество - сначала надо понять, примириться с квартирой, а потом ее преображать.

Настал час! Линии и круги элементов прочерчены, тигры и змеи в треугольники расставлены.

Исходная планировка:

Перепланировка:

-2

Из доклада специалистов, ванная квартиры расположена в юго-восточном секторе, где сосредоточены звезды 1 (горная), 6 (водная) и 2 (периода).

-3

Горная звезда 1 управляет здоровьем и состоянием внутренней гармонии (ура, какое помещение обладает большим влиянием на здоровье, чем ванная?).

-4

Горные звёзды «любят», когда они поддержаны массивными предметами. Это может быть соседнее здание, забор на улице, массивный шкаф или несущая стена в доме (в нашем случае, это несущая стена и большой шкаф, скрывающий стиральную и сушильную машины). Горным звёздам необходима поддержка в «виде гор», тогда они могут максимально проявить свои свойства (как положительные, так и негативные). На открытых пространствах, в проходах или в помещениях с большим количеством окон и дверей энергия горных звёзд рассеивается или становится совсем слабой (в ванной нет окон и одна дверь).

-5

Водная звезда сектора ванной - у нас 6.

Водная звезда управляет деньгами и карьерой. Шестерка относится к "удачным" звездам, может обеспечить покровительство, власть, авторитет и неожиданное богатство.

-6

Звезда периода сектора ванной - у нас 2.

Эта звезда создает общий фон, не оказывая серьезного влияния. Замечательно! Так как читаем дальше: Двойка - "неудачная" звезда - болезней и застоя в делах. В позиции водной звезды приводит к денежным потерям и бездействию, в позиции горной – к заболеваниям и плохому самочувствию. В нашем случае Двойка не водная и не горная, а звезда периода, не влияющая ни на что.

-7

В следующей статье расскажу подробнее про спальню.

Подписывайся на мой Дзен, здесь много интересного про дизайн и путешествия.

Больше про интерьеры смотри на YouTube канале.

#ремонт #интерьеры #дизайн интерьеров #дизайн #архитектура #квартиры #планировки #санкт-петербург