Найти в Дзене
Дизайн Интерьера

Обманут! Не покупай квартиру!!!

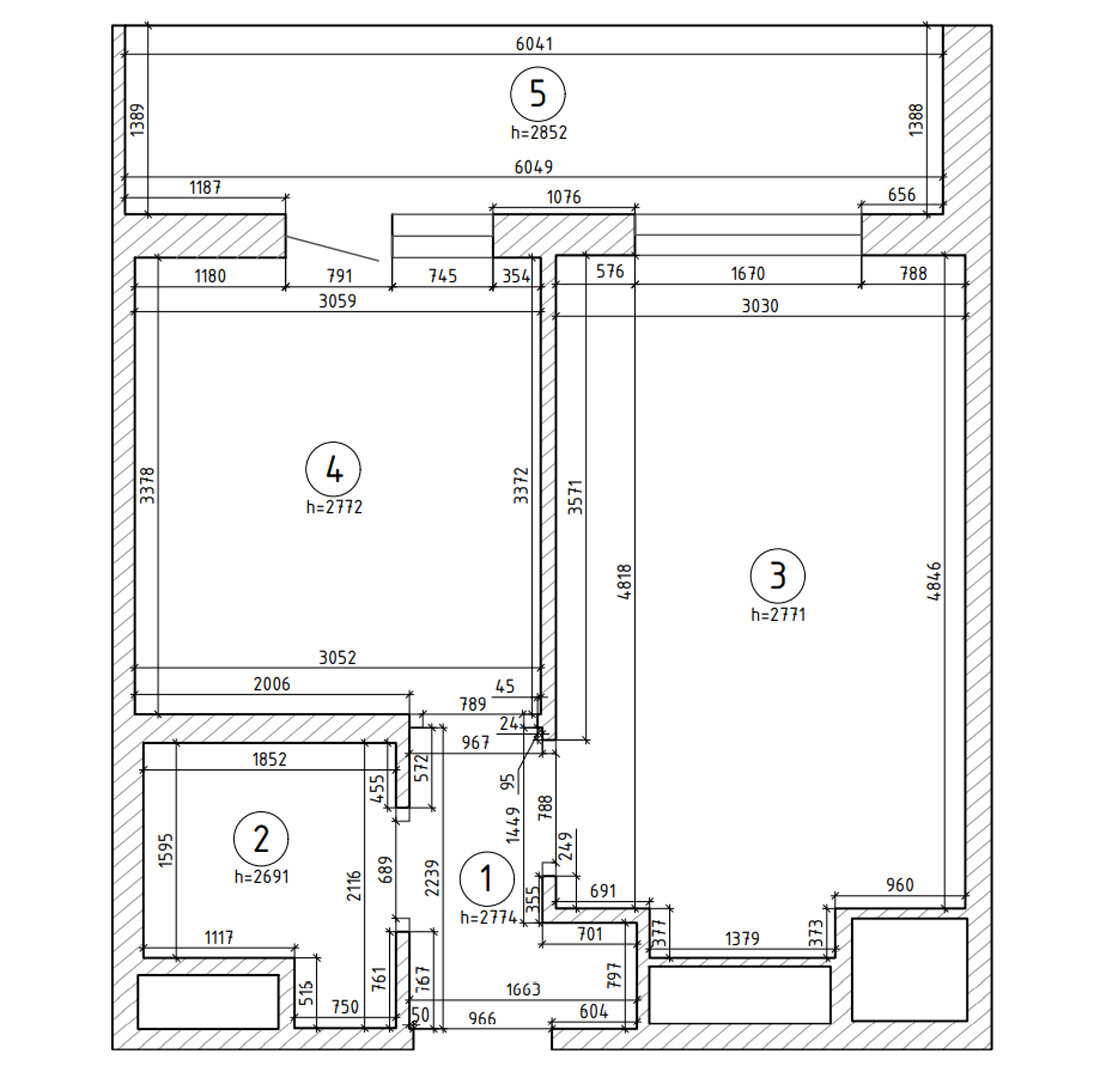
Есть что сказать про планировки маленьких квартир - и это скорее вопрос к застройщикам, а не к прижатому к стене покупателю. Но всё же при выборе небольшой квартиры тщательно подходите к оценке и анализу того, что вы собираетесь купить - все эти коммуникации, обрамленные в короба, ниши и прочие изуверства с геометрией помещения вам придется решать по средствам нестандартных(требующих индивидуального изготовления) предметов меблировки, а это уже совсем другие финансовые затраты... "Башкой своей надо думать" ©️ , прежде чем покупать такую недвижимость, особенно если каждый сантиметр на счету - неправильная геометрия очень ограничивает возможности помещения и если первый взгляд может показаться, что комната отвечает всем вашим требования - по факту это может оказаться вашим личным заблуждением! Хотите проконсультироваться - пишите в комментарии - это БЕСПЛАТНО! 💋
дизайн кухни
дизайн кухни
-2
дизайн маленькой квартиры
дизайн маленькой квартиры

Куку!🙃
Есть что сказать про планировки маленьких квартир - и это скорее вопрос к застройщикам, а не к прижатому к стене покупателю. Но всё же при выборе небольшой квартиры тщательно подходите к оценке и анализу того, что вы собираетесь купить - все эти коммуникации, обрамленные в короба, ниши и прочие изуверства с геометрией помещения вам придется решать по средствам нестандартных(требующих индивидуального изготовления) предметов меблировки, а это уже совсем другие финансовые затраты... "Башкой своей надо думать" ©️ , прежде чем покупать такую недвижимость, особенно если каждый сантиметр на счету - неправильная геометрия очень ограничивает возможности помещения и если первый взгляд может показаться, что комната отвечает всем вашим требования - по факту это может оказаться вашим личным заблуждением!

Хотите проконсультироваться - пишите в комментарии - это БЕСПЛАТНО! 💋