Добавить в корзинуПозвонить
Найти в Дзене
GusakovDesign

3 главных правила для создания идеального интерьера.

Здравствуйте. В этой статье я выделю 3 основных правила, придерживаясь которых, у вас получится потрясающий интерьер. 1. Планировки 2. Композиция 3. Цвета Спасибо за прочтение. Надеюсь эта статься была полезна для вас. Подписывайтесь, комментируйте ,ставьте лайки. Желаю всем творческих успехов. #интерьер #дизайн #дизайн интерьеров #красота #лайфхак #минимализм

Здравствуйте.

В этой статье я выделю 3 основных правила, придерживаясь которых, у вас получится потрясающий интерьер.

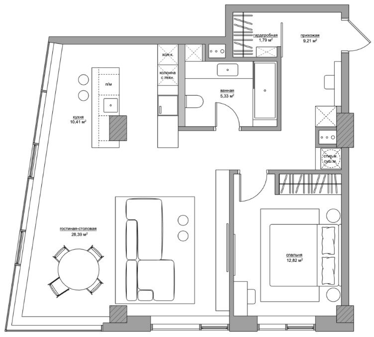
1. Планировки

  • Планировка квартиры должна быть простая и свободная. Не нужно заполнять вашу квартиру мебелью по максимуму. Поделите пространство на необходимые зоны, избегайте ненужных ниш и углов. Для экономия пространства, иногда, вместо монотонных и скучных стен, можно зонировать пространство стильными рейками, полками или стеклянными перегородками. Это придаст интерьеру легкость и привлекательность.
-2
-3

2. Композиция

  • Выбирая мебель и декор, посмотрите на ваше сделанное зонирование в объеме. Попробуйте не просто заполнять пространство, а создать композиции. Смотрите на все через сетку, ищите композиционные связи и ритм идеи в целом.
-4

-5
-6

3. Цвета

  • Используйте нежные пастельные цвет, выделяйте некоторые зоны цветом, добавьте фактуры, не забывайте про композицию. Старайтесь выбирать натуральные и естественные материалы-они придадут уюта и визуального великолепия вашему интерьеру.
-7
-8
-9
-10
-11

Спасибо за прочтение. Надеюсь эта статься была полезна для вас.

Подписывайтесь, комментируйте ,ставьте лайки.

Желаю всем творческих успехов.

#интерьер #дизайн #дизайн интерьеров #красота #лайфхак #минимализм