Найти в Дзене

Проект двухэтажного дома с мансардой и комнатой над гаражом «Норд» 85А, 235 м2, 4(5) спален

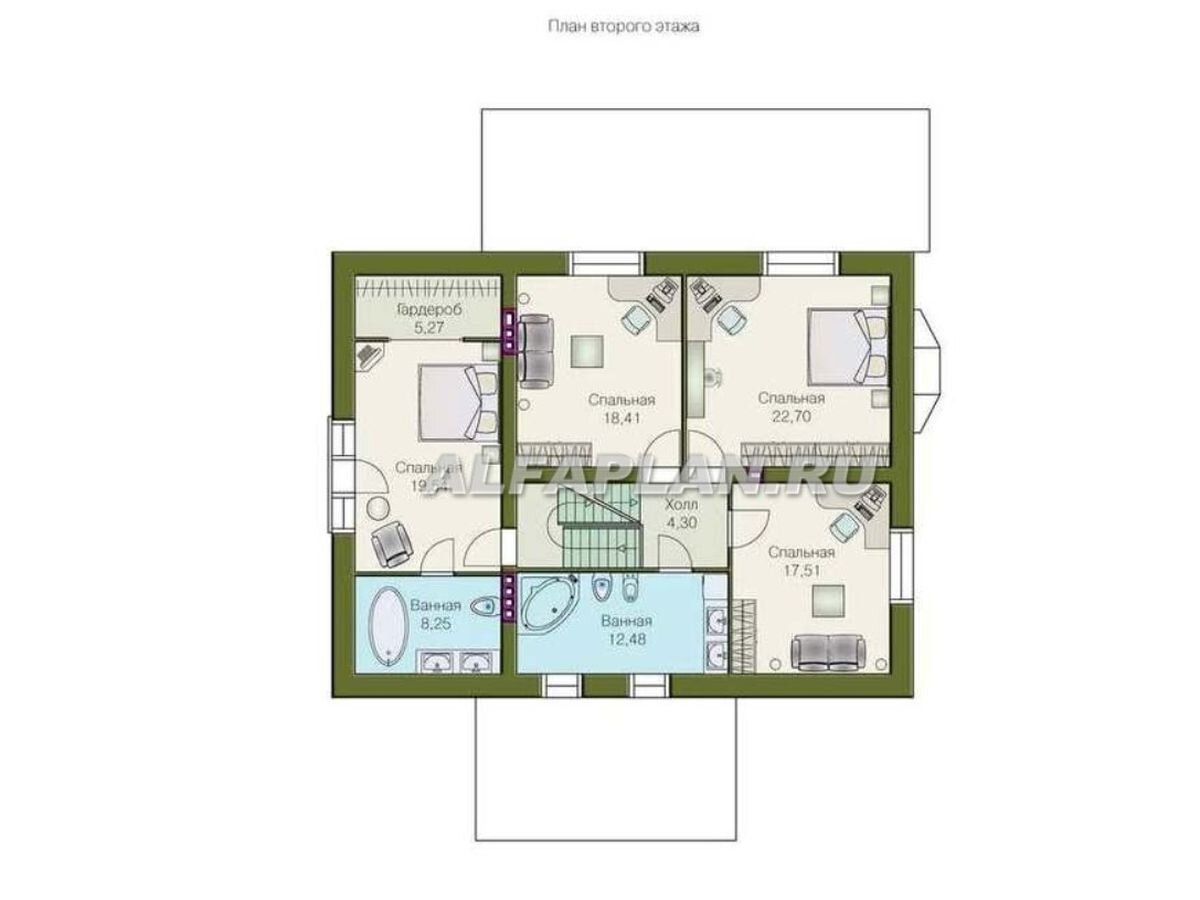
Проект дома с мансардой и гаражом «Норд» 85А, 235 м2, 4(5) спален (одна из которых - мастер-спальня) – вместительный загородный дом из газобетона (или кирпича) для постоянного проживания многочисленной семьи. Коттедж привлекает внимание спокойной, по-европейски сдержанной архитектурой и удобной, комфортной планировкой. У проекта дома есть прямой (на изображениях) и зеркальный варианты. Планировка дома рациональна и обеспечивает комфортное проживание достаточно большой семье (детали см. на планах слайд-шоу) Строительство дома под ключ может быть выполнено в любом регионе России. Вас также может заинтересовать аналогичный проект загородного дома «Особняк» 84А с двусветной гостиной. Детали о проекте и заказ проекта «Норд» 85А по ссылке. Информацию о проекте «Особняк» 84А с двусветной гостиной см. здесь. Смотреть все варианты коллекции домов с мансардой. Ставьте 👍, если Вам понравился этот проект! Пишите вопросы к планировке и пожелания в комментариях! Подписывайтесь на наш канал Яндек

Проект дома с мансардой и гаражом «Норд» 85А, 235 м2, 4(5) спален (одна из которых - мастер-спальня) – вместительный загородный дом из газобетона (или кирпича) для постоянного проживания многочисленной семьи. Коттедж привлекает внимание спокойной, по-европейски сдержанной архитектурой и удобной, комфортной планировкой. У проекта дома есть прямой (на изображениях) и зеркальный варианты.

Планировка дома рациональна и обеспечивает комфортное проживание достаточно большой семье (детали см. на планах слайд-шоу)

Строительство дома под ключ может быть выполнено в любом регионе России.

Вас также может заинтересовать аналогичный проект загородного дома «Особняк» 84А с двусветной гостиной.

Проект загородного дома «Особняк» 84А, 217 м2
Проект загородного дома «Особняк» 84А, 217 м2

Детали о проекте и заказ проекта «Норд» 85А по ссылке.

Информацию о проекте «Особняк» 84А с двусветной гостиной см. здесь.

Смотреть все варианты коллекции домов с мансардой.

Ставьте 👍, если Вам понравился этот проект! Пишите вопросы к планировке и пожелания в комментариях!

Подписывайтесь на наш канал Яндекс ДЗЕН. У нас – только уникальные авторские проекты домов. Еще больше интересных постов в нашем Telegram. , VK, FB.

Стройте дома по проектам ®Альфаплан! «Фото построенных домов» – более 450 фотогалерей строительства домов по нашим проектам.

#загородный дом #проект под ключ #планировка дома #строительство домов #проект дома цена #мансарда #проектирование #архитектура #проект двухэтажного дома