Найти в Дзене
Центр Питера

Новая квартира в старом доме, как происходит перепланировка квартиры в центре Санкт-Петербурга

Перепланировку квартиры в основном делают в недвижимости старого фонда. В советское время все дома зажиточных людей, были переделаны в коммунальные квартиры для простого народа. В настоящее время планировка коммуналки не отвечает потребностям современного человека, и для комфортной жизни в центре нужно делать перепланировку. Перепланировку согласовывают несколько государственных органов, все зависит от степени изменения планировки квартиры. Государственные органы, занимающиеся узакониванием перепланировок: Перепланировку квартиры может сделать любой человек, главное делать это в порядке, указанном в законе. Вот пример дизайн-проекта квартиры, расположенной над коммерческим помещением, переделанной под студии. Для изменения расположения стен в квартире необходимо соглашение вышеперечисленных органов, а для изменения расположения мокрых точек (санузлов), помимо соглашения госорганов, сама квартира должна находиться над коммерческим помещением. К примеру: В доме весь первый этаж с

Перепланировку квартиры в основном делают в недвижимости старого фонда. В советское время все дома зажиточных людей, были переделаны в коммунальные квартиры для простого народа. В настоящее время планировка коммуналки не отвечает потребностям современного человека, и для комфортной жизни в центре нужно делать перепланировку.

Перепланировку согласовывают несколько государственных органов, все зависит от степени изменения планировки квартиры.

Государственные органы, занимающиеся узакониванием перепланировок:

  • УК
  • МВК
  • КГИОП
  • ОГПН

Перепланировку квартиры может сделать любой человек, главное делать это в порядке, указанном в законе.

  1. Сделать дизайн проект новой планировки
  2. Согласовать новую планировку с указанными выше госорганами
  3. Начать воплощать в жизнь дизайн проект
  4. Доказать что новая перепланировка соответствует той, которую согласовали госорганы
  5. Наслаждаться новой квартирой в центре города

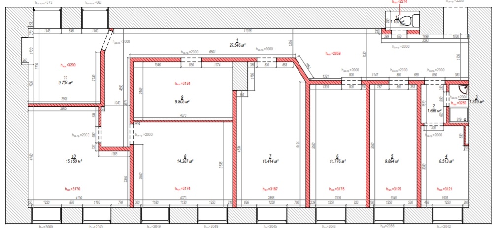
Вот пример дизайн-проекта квартиры, расположенной над коммерческим помещением, переделанной под студии.

Планировка коммунальный квартиры
Планировка коммунальный квартиры

Перепланировка коммуналки под студии
Перепланировка коммуналки под студии
План расстановки мебели
План расстановки мебели
План расположения второго яруса
План расположения второго яруса

Для изменения расположения стен в квартире необходимо соглашение вышеперечисленных органов, а для изменения расположения мокрых точек (санузлов), помимо соглашения госорганов, сама квартира должна находиться над коммерческим помещением. К примеру: В доме весь первый этаж состоит из коммерческих помещений. Жилая квартира №6 находится на 3 этаже, а под ней, на 2 этаже такая же жилая квартира №4, получается, что в квартире №6 делая перепланировку, можно изменить только расположение не несущих стен, а в квартире №4, за счёт расположения над коммерцией, можно изменить и расположение стен, и расположение мокрых точек.

-5