Найти в Дзене
Глазами инженера

Как Дом нового быта стал ДАСом

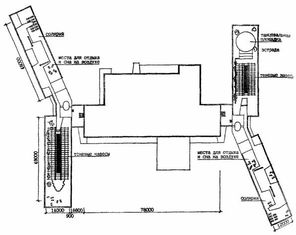
Дом аспиранта и стажера (ДАС) на улице Шверника сегодня известен как одно из общежитий МГУ. И далеко не все знают, что это здание изначально проектировалось как Дом нового быта для молодых семей. Комплекс должен был стать не только архитектурным, но и социальным экспериментом. С 1920-х в нашей стране активно развивались идеи нового быта – от домов-коммун до утопических проектов летающих городов. Концепции, замороженные на время сталинского «освоения наследия», вновь стали появляться в эпоху оттепели. Одну из них предложил архитектор Натан Остерман. Проект Остермана предполагал строительство жилого комплекса с фантастическим для того времени набором услуг. Еще необычнее, что в составлении списка этих услуг участвовали сами потенциальные жильцы Дома нового быта – молодые семьи. Получился внушительный перечень, в который вошли спортзал, бассейн, детский центр, зимний сад, кинолаборатория, читальные залы, буфет-бар-бильярдная и многое другое. На плоской кровле предполагались солярии и танц

Дом аспиранта и стажера (ДАС) на улице Шверника сегодня известен как одно из общежитий МГУ. И далеко не все знают, что это здание изначально проектировалось как Дом нового быта для молодых семей. Комплекс должен был стать не только архитектурным, но и социальным экспериментом.

Фото Сергея Голованова
Фото Сергея Голованова

С 1920-х в нашей стране активно развивались идеи нового быта – от домов-коммун до утопических проектов летающих городов. Концепции, замороженные на время сталинского «освоения наследия», вновь стали появляться в эпоху оттепели. Одну из них предложил архитектор Натан Остерман.

Проект Дома нового быта Натана Остермана
Проект Дома нового быта Натана Остермана

Проект Остермана предполагал строительство жилого комплекса с фантастическим для того времени набором услуг. Еще необычнее, что в составлении списка этих услуг участвовали сами потенциальные жильцы Дома нового быта – молодые семьи. Получился внушительный перечень, в который вошли спортзал, бассейн, детский центр, зимний сад, кинолаборатория, читальные залы, буфет-бар-бильярдная и многое другое. На плоской кровле предполагались солярии и танцплощадка.

1969 г.
1969 г.

Окончательный проект представлял собой два шестнадцатиэтажных жилых корпуса, соединенных перемычкой корпуса обслуживания. Кроме общественных зон там должны были разместиться кухня, рассчитанная на приготовление 4000 блюд в день, и столовая на 150 мест.

1985 г.
1985 г.

Однако в процессе строительства проект был значительно упрощен. Кроме того, в 1969 году умер Натан Остерман, и отстоять концепцию до конца было некому. В итоге комплекс передали МГУ под общежития – то есть там тоже поселились молодые люди, но по привычной схеме общежития.

* * *

Подробнее об этом и других модернистских зданиях на Юго-Западе мы расскажем на нашей трамвайной экскурсии «Советский модернизм».

Еще больше интересных архитектурных историй – на наших экскурсиях.

Подписывайтесь на наши соцсети: Facebook, Instagram, ВКонтакте, Телеграм, YouTube.