Добавить в корзинуПозвонить
Найти в Дзене

Как купить квартиру. Советы дизайнера, на что обратить внимание

Всем привет! Ко мне достаточно часто обращаются с вопросами по поводу покупки квартиры или приходят на консультацию, чтобы понять, подходит ли им именно эта квартира, что в ней можно будет сделать. Поэтому я решила написать эту статью, где вкратце освещу важные моменты, которые очень помогут. Вы сами сможете определить, хорошая ли это квартира, хорошая ли у нее планировка или нет, или, может, стоит эту квартиру оставить кому-то другому для покупки. Эта статья коснется не только тех, кто хочет купить квартиру, но и тех, кто хочет купить себе дом или таунхаус. Зона общения и зона уединения В самом начале стоит обратить внимание в вариантах планировок на возможность поделить пространство на функциональные зоны. Самая выгодная планировка -- это когда при входе в дом вы оказываетесь в гостевой зоне: гостиная, холл. А личные пространства, например, спальная комната, остаются в стороне и не задействованы. Не хорошо, когда спальни, детские, гостиная, расположены не системно, а вперемешку. Это
Оглавление

Всем привет! Ко мне достаточно часто обращаются с вопросами по поводу покупки квартиры или приходят на консультацию, чтобы понять, подходит ли им именно эта квартира, что в ней можно будет сделать. Поэтому я решила написать эту статью, где вкратце освещу важные моменты, которые очень помогут. Вы сами сможете определить, хорошая ли это квартира, хорошая ли у нее планировка или нет, или, может, стоит эту квартиру оставить кому-то другому для покупки. Эта статья коснется не только тех, кто хочет купить квартиру, но и тех, кто хочет купить себе дом или таунхаус.

Зона общения и зона уединения

В самом начале стоит обратить внимание в вариантах планировок на возможность поделить пространство на функциональные зоны.

Самая выгодная планировка -- это когда при входе в дом вы оказываетесь в гостевой зоне: гостиная, холл. А личные пространства, например, спальная комната, остаются в стороне и не задействованы. Не хорошо, когда спальни, детские, гостиная, расположены не системно, а вперемешку. Это для квартиры минус.

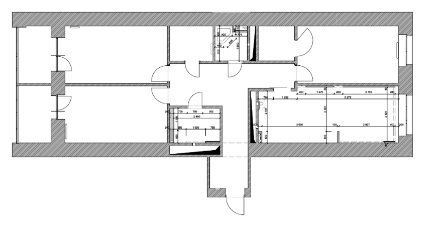
Коридор

Второй нюанс -- это распространенный в России длинный и узкий коридор, который тянется через всю площадь квартиры. Он не несет в себе полезный функционал, но занимает большие площади.

Здесь коридор 19,6 кв.м.
Здесь коридор 19,6 кв.м.

Не стоит забывать и о стоимости недвижимости на рынке - хочется все-таки получать максимально функциональные метры за свои деньги.

Здесь площадь коридора 9,02 кв.м.
Здесь площадь коридора 9,02 кв.м.

Намного лучше присмотреться к планировкам, где коридор имеет форму, например, квадрата, откуда можно попасть в помещения квартиры или дома. Это гораздо удобнее и эффективнее.

Количество окон и комнат

Момент, на который обязательно нужно обратить пристальное внимание. Просто запомните, сколько окон, столько у вас и будет жилых комнат. Даже в случае покупки большой квартиры, например 180 кв.м., но с двумя окнами, нужно понимать, что больше двух комнат в такой квартире не сделать. Потому что наличие солнечного света важно для человека: как для здоровья физического, так и для психического. Но иногда кухню можно передвинуть от окна в центр квартиры, например, вместо коридора. Так часто относятся к кухням в Европе или Америке, где можно часто встретить такие планировки.

Однушку - в двушку

Отдельно нужно сказать про увеличение числа жилых комнат. Приобретая жилье, нам часто хочется думать, что при необходимости, мы увеличим количество комнат. Например, в семье прибавление, что еще остается делать? Но из двушек-распашонок сделать трехкомнатную квартиру с нужным числом окон нельзя.

-4

Крайне редко нам дает чуть-чуть свободы в действиях большая площадь кухни, когда мы можем зонировать пространство: кухня и столовая, кухня и гостиная. Но рассчитывать на этот вариант не стоит, случается редко.

Прихожая и грязь

Лучший вариант для чистой домашней обстановки -- это изолированная прихожая, находящаяся как бы в стороне. Дома у нас вырисовываются основные траектории, которые мы пересекаем изо дня в день, в общем связка выглядит как: кухня-спальня-санузел.

Знакомая ситуация?
Знакомая ситуация?

И в случае, когда прихожая - это эпицентр коридора, то вся грязь будет постоянно расползаться по вашим квадратным метрам. Гарантированно дома будет грязнее, чем в случае квартиры с верной планировкой, где прихожая находится в стороне.

Высота и площади

Большие открытые пространства не дружат со стандартной высотой потолков, как бы нам ни хотелось обратного. В таких помещениях возникает давящее ощущение. А избежать этого поможет выбор правильного соотношения высоты к размерам помещения, либо выбор в пользу планировки с отдельными изолированными комнатами.

Свободная планировка

Свободные планировки -- это очередной крюк маркетологов, на который надо не попасться. Взвесим все “за” и “против”. Нужно понимать, что самого понятия “свободная планировка” у юристов не существует. А, если мы приобретаем квартиру со статусом жилой недвижимости, то о свободе речи не идет. Уже где-то в БТИ будут документы, фиксирующие функциональное зонирование, которым нельзя пренебрегать. Для узаконивания понадобится план БТИ, проект, техническое заключение, правоустанавливающие документы и заявление.

Апартаменты моей мечты на берегу Черного моря :)
Апартаменты моей мечты на берегу Черного моря :)

В случае приобретения апартаментов ситуация несколько меняется. Апартаменты являются не жилой площадью, и фиксирующих документов в ответственных органах нет, но есть обычные жизненные факторы. Такие, как расположение стояка и прочие технические моменты, от которых мы вынуждены отталкиваться.

Как же выбирать?

Остальных нюансов еще масса. Поэтому лучше привлекайте специалиста на этапе выбора квартиры. Например, у вас уже есть несколько вариантов, среди которых вы не можете определиться, и они все чем-то вас привлекают. В такой ситуации специалист вам подскажет, что вы сможете слепить из каждого варианта планировки.