Найти в Дзене
Филдс

Как должен выглядеть настоящий холостяцкий ремонт: евродвушка 45 м² в индустриальном стиле

Дизайнер Юлия Тельнова оформила евродвушку 45 м² для молодого человека. В интерьере сочетали природные цвета и фактуры, близкие к индустриальному стилю. Такое решение создало необычный контраст. Планировка Гостиная Границы гостиной определила постановка дивана — его расположили спинкой к проходу. В отделке скомбинировали краску мятно-зелёного оттенка и фактурные обои, ими оформили ТВ-зону. Клеточная разлиновка на полотнах перекликается с геометрией стеклоблоков в кухне и прихожей. Кухня Для стен в зоне кухни выбрали более тёплый оттенок зелёного, нежели в гостиной, в качестве напольного покрытия использовали керамогранит под бетон. Чтобы поддержать фактуру на полу, участок потолка у дальней стены декорировали гипсовой штукатуркой. Спальня Вход в спальню скрыт за дверью с фрамугой. Площадь комнаты — всего 7 м2, поэтому одна из боковин кровати вплотную прилегает к стене. Пространство за изголовьем декорировали обоями с эффектом размытия, а само изголовье облицевали доской из мас
Оглавление

Дизайнер Юлия Тельнова оформила евродвушку 45 м² для молодого человека. В интерьере сочетали природные цвета и фактуры, близкие к индустриальному стилю. Такое решение создало необычный контраст.

  • Общая площадь: 45 м²
  • Место: Москва
  • Тип дома: ЖК «LIFE Ботанический сад»
  • Количество комнат: евродвушка
  • Кто здесь живет: молодой человек
  • Дизайнер: Юлия Тельнова
  • Фото: Сергей Красюк
  • Стилист: Евгения Шимкевич

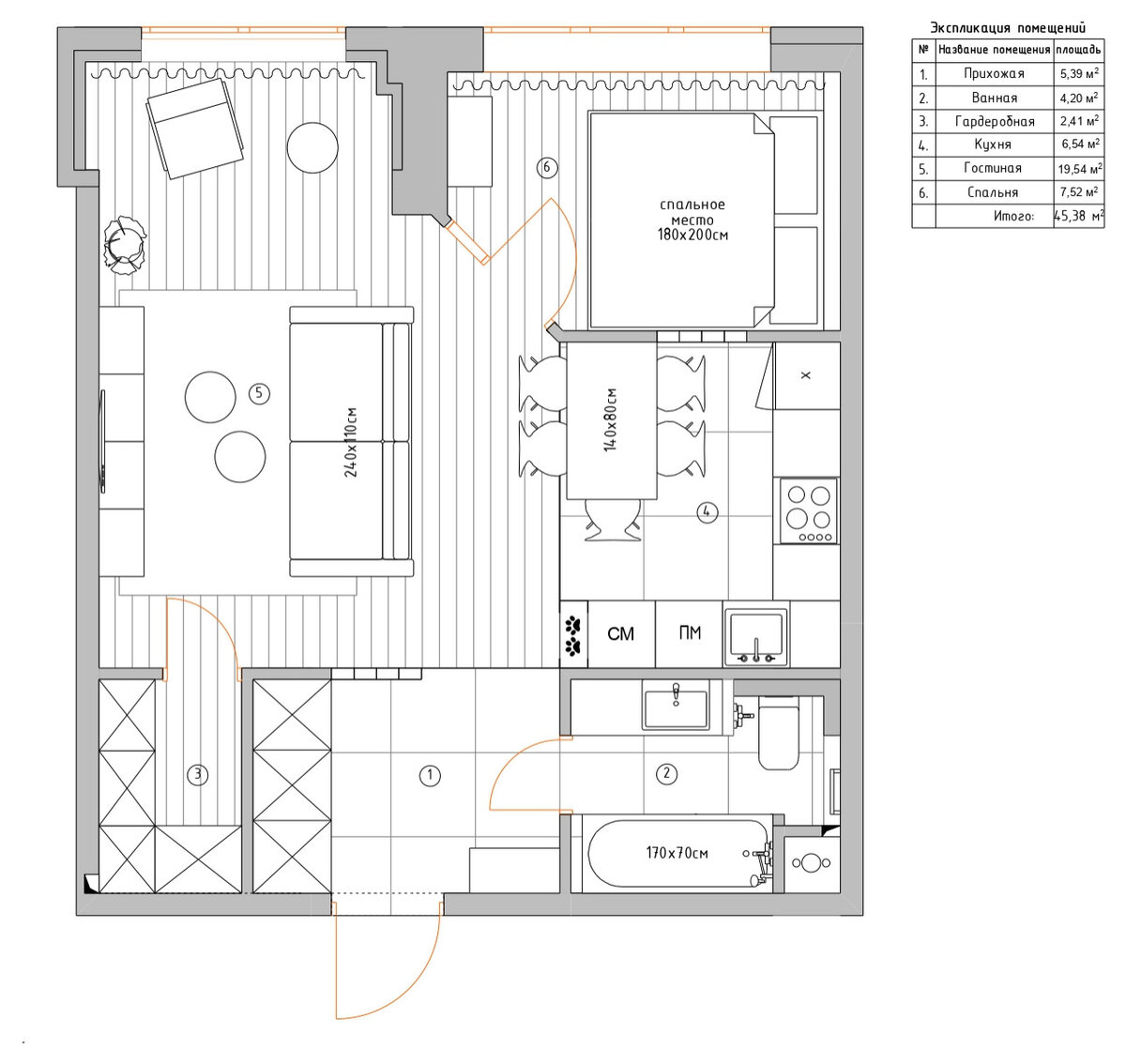
Планировка

Изначально застройщик предусмотрел изолированную кухню у окна. В результате перепланировки её место заняла небольшая спальня. Перенос удалось согласовать благодаря отсутствию жилых помещений снизу. Чтобы увеличить полезную площадь, присоединили лоджию. Также использовать дополнительное пространство для кухни-гостиной позволил скошенный угол спальни.
Изначально застройщик предусмотрел изолированную кухню у окна. В результате перепланировки её место заняла небольшая спальня. Перенос удалось согласовать благодаря отсутствию жилых помещений снизу. Чтобы увеличить полезную площадь, присоединили лоджию. Также использовать дополнительное пространство для кухни-гостиной позволил скошенный угол спальни.

Гостиная

Границы гостиной определила постановка дивана — его расположили спинкой к проходу. В отделке скомбинировали краску мятно-зелёного оттенка и фактурные обои, ими оформили ТВ-зону. Клеточная разлиновка на полотнах перекликается с геометрией стеклоблоков в кухне и прихожей.

Кухня

Для стен в зоне кухни выбрали более тёплый оттенок зелёного, нежели в гостиной, в качестве напольного покрытия использовали керамогранит под бетон. Чтобы поддержать фактуру на полу, участок потолка у дальней стены декорировали гипсовой штукатуркой.

Спальня

Вход в спальню скрыт за дверью с фрамугой. Площадь комнаты — всего 7 м2, поэтому одна из боковин кровати вплотную прилегает к стене. Пространство за изголовьем декорировали обоями с эффектом размытия, а само изголовье облицевали доской из массива. Его глубина позволила разместить предметы декора, так что фактически оно заменило прикроватную тумбу. Несмотря на скромные размеры, в спальне также удалось расположить комод.

Прихожая

Отделка прихожей созвучна общей концепции интерьера. Бетонный потолок поддержали напольным покрытием, стены и двери выкрасили в зелёный. Вместо глухой перегородки использовали стеклоблоки. В нишу при входе упаковали шкаф-купе, его зеркальные дверцы зрительно увеличивают пространство.

Санузел

В санузле использовали два вида керамогранита — под бетон и с имитацией проржавевшего металла. Это сделало интерьер более брутальным. Немного сгладить строгость фактур помогло включение дерева: в столешнице тумбы и корпусе навесного шкафа.

Подпишись на канал Филдс, чтобы первым видеть новые публикации. Интересные мнения в комментариях приветствуются. Если материал понравился — ставь лайк!

Facebook, Instagram, Вконтакте