Найти в Дзене

Инструменты для создания сада. Часть 2

В прошлой части мы разобрали инструменты, необходимые для измерения участка, однако участок - это не вся работа. Полученные измерения необходимо будет нанести на лист бумаги, а для этого нам понадобятся другие инструменты. Чертёжные инструменты и материалы Как пользоваться этими инструментами Чертежная доска. Размеры чертежных досок соответствуют стандартным форматам чертежной бумаги. Можно использовать любые доски — от простейших до сложных кульманов — с ровной, гладкой поверхностью и прямыми углями, чтобы чертежи не мялись и не портились при работе. Доска должна быть снабжена передвижной ламинированной линейкой. Не следует втыкать в доску кнопки или что-либо на ней резать, дабы не повредить её поверхность. Чертить тушью на доске удобнее, если она находится в наклонном положении. Возможно, прежде чем приступить к работе, стоит попробовать несколько положений в поисках оптимального угла наклона доски. Калька. Вам может потребоваться калька различного формата. Калька выпускается рулон
Оглавление

В прошлой части мы разобрали инструменты, необходимые для измерения участка, однако участок - это не вся работа. Полученные измерения необходимо будет нанести на лист бумаги, а для этого нам понадобятся другие инструменты.

Чертёжные инструменты и материалы

  • чертежная доска формата А1 или А2 с передвижной линейкой;
  • калька формата А1, АЗ или меньше;
  • бумага для черчения формата А1, АЗ или меньше;
  • изографы размером 0,7 мм., 0,5 мм., 0,35 мм. и 0,25 мм., черная тушь;
  • фломастеры;
  • простые карандаши с грифелем твердостью ТМ и М, либо цанговые или микрограф размером 0,5 мм.;
  • точилка для карандашей:
  • ластик для чернил и карандашей;
  • трафарет для точного стирания ластиком;
  • скальпель или бритвенные лезвия для подчистки чертежей;
  • угольники — 90°145° и 30°/60°;
  • бумажный скотч;
  • раздвижной угольник с транспортиром;
  • циркуль с удлинителем и насадной для изографа;
  • масштабная линейка с масштабными делениями 1:1, 1:50, 1:100, 1:200, 1:1250, 1:2500;
  • трафаретная линейка с окружностями и скругленными углами для работы тушью;
  • щетка или кисть для чертежей;
  • гибкое лекало длиной не менее 30 см.;
  • пластиковый тубус для хранения чертежей;
  • буквенный трафарет (желательно) для подбора размера пера;
  • цветные м акварельные карандаши для
  • раскрашивания чертежей;
  • инерционная линейка (рейсшина) для корректировки линий подписей;
  • линейки.

Как пользоваться этими инструментами

Чертежная доска. Размеры чертежных досок соответствуют стандартным форматам чертежной бумаги. Можно использовать любые доски — от простейших до сложных кульманов — с ровной, гладкой поверхностью и прямыми углями, чтобы чертежи не мялись и не портились при работе. Доска должна быть снабжена передвижной ламинированной линейкой. Не следует втыкать в доску кнопки или что-либо на ней резать, дабы не повредить её поверхность. Чертить тушью на доске удобнее, если она находится в наклонном положении. Возможно, прежде чем приступить к работе, стоит попробовать несколько положений в поисках оптимального угла наклона доски.

Калька. Вам может потребоваться калька различного формата. Калька выпускается рулонов, блокнотов или отдельных листов формата А, из которых можно нарезать листы нужного размера. Калька имеет различную плотность, например 60, 90 или 120 г/м^2. При, работе нал проектом, как правило, расходуется. много кальки, поэтому для черновых вариантов можно использовать тонкую кальку плотностью 60 г/м^2, поскольку она дешевле, а для окончательных чертежей — более плотную. Пока вы не определились с форматом, целесообразно приобретать листовую кальку формата А2, а для небольших набросков использовать блокнот формата А4.

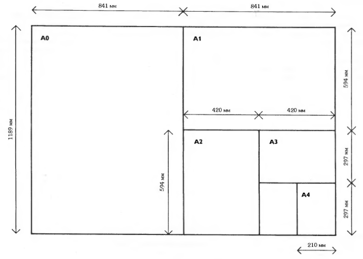
Бумага для черчения. Необходимую бумагу можно приобретать в процессе работы, однако на изначальном этапе вам понадобится один-два листа миллиметровки формата А1 в качестве подложки под кальку.

Стандартные размеры бумаги
Стандартные размеры бумаги

Изографы. Изографы используются для черчения тушью только на кальке (черчение на обычной бумаге приводит к засорению носика изографа). Изографы довольно дороги и требуют определенных навыков работы для того, чтобы провести ровную линию. Размеры изографов определяются толщиной линий. Наиболее популярны изографы, которыми можно проводить линии толщиной 025:035:05 и 07 мм.. Нужно следить за том, чтобы носики изографов не забивались засохшей тушью. Во время черчения изографы следует держать вертикально, чтобы тушь вытекала равномерно, и обеспечивать равномерный нажим, Вместо изографов можно использовать более дешевые лайнеры.

Угольник. Этот инструмент представляет собой пластмассовый треугольник для вычерчивания вертикальных и диагональных линий. Он должен быть достаточно большим, чтобы можно было чертить длинные вертикальные линии. Его самая длинная сторона должна составлять около 25-30 см. Если окончательный план участка вы собираетесь вычерчивать тушью, вам потребуется угольник со срезанными фасками, позволяющий избежать размазанных линий. Вам понадобится как угольник с углом 45°, так и раздвижной угольник для создания аксонометрической проекции. Для изометрии, необходим угольник с углами 30°/60°.

Циркуль. Вам понадобится пара обычных циркулей для нанесения на план участка различных кругов и кривых линий, пара циркулей с удлинителями, которые пригодятся, чтобы чертить большие круги, а для создания окончательных планов — еще и насадка для туши.

Карандаши и авторучки. Рекомендуется приобрести набор карандашей различной твердости (Т — твердый, для технических чертежей, ТМ и 2М мягкие, для черчения от руки, ЗМ — мягкий, для штриховки), хотя чаще будут использоваться карандаши твердостью ТМ и М. Стоимость карандашей зависит от их качества: у дешевых мягкий грифель слишком хрупок, плохо чертит, а жесткий — продавливает бумагу. Рекомендуется использовать карандаши твердостью Т, ТМ м 2М. Вместо обычных карандашей можно использовать механические (микрографы) с выдвижным грифелем, которые не нужно точить. Легче всего работать с грифелем 0,5, которого размер точки равен 0,5 мм.. Существуют и другие механические карандаши, но их необходимо правильно затачивать.

Цветные и акварельные карандаши. Из множества всевозможных цветных и акварельных карандашей превосходного качества следует тщательно выбрать лишь те, которые подходят для плана сала, прежде всего натуральные и пастельные оттенки цветов, а не яркие и резкие.

Масштабные линейки. Масштабная линейка — это пластмассовая полоска длиной с обычную линейку, на каждой стороне которой нанесены различные деления. Деления пропорциональны фактическим расстояниям м размерам, что. позволяет чертить планы в масштабе. Чаще всего используются линейки с масштабом 1:50 и 1:10, но иногда м 1:1250 и 1:2500. Пользоваться масштабными линейками не так сложно, как может показаться. Точилка для карандашей. Для получения аккуратных чертежей нужно часто точить карандаши. Это можно делать любой точилкой, однако лучше воспользоваться обычным макетным ножом вкупе с наждачной бумагой, которая позволяет скруглить кончик грифеля, чтобы ом не царапал бумагу и стачивался равномерно.

Ластик. Ластик должен быть двухсторонним состоять из мягкой половинки, предназначенной для стирания карандашных линий, и жесткой — для стирания туши без повреждения бумаги. Крошки ластика после стирания необходимо счищать с бумаги щеткой или стряхивать.

Трафарет для точного стирания представляет собой тонкую металлическую полоску, накладываемую на чертеж для того, чтобы уберечь от случайного стирания нужные детали.

Щетка или кисть для чертежей. Во время работы нужно регулярно очищать чертеж от графитовой пыли и крошек ластика обычной мягкой щеткой или кистью.

Трафаретная линейка с окружностями (20 или 30) предназначена для нанесения на чертеж небольших кругов, обозначающих, например, клумбы или группы деревьев. Диаметр самой большой окружности должен составлять 5 мм. Скругленные края линейки предотвращают размазывание туши. Если необходимо начертить несколько одинаковых окружностей, окружность выбранного размера можно пометить на линейке кусочком скотча.

Гибкое лекало — пластмассовая трубка с гибкой металлической основой, используется для вычерчивания кривых. Наложенное на чертеж лекало аккуратно, с одинаковым нажимом обводят изографом или карандашом.

Тубус. Этот пластмассовый футляр в форме трубы предохраняет чертежи от сгибания при их транспортировке.

Скальпель и бритвенные лезвия. Для подчистки чертежей помимо ластика могут понадобиться также скальпель и бритвенные лезвия. Лезвие скальпеля должно быть изогнутым, без острого наконечника, чтобы меньше повреждалась бумага. После подчистки скальпелем или бритвой не забудьте обработать поврежденное место ластиком, иначе тушь на этом участке будет растекаться, в линии окажутся слишком толстыми.

Это самый полный набор, который пригодится вам для создания чертежей вашего сада (генплан, план посадок и т.п.).