Добавить в корзинуПозвонить
Найти в Дзене
Dinara Che

Хочу такой! Планировка и облёт 360° дома мечты №105

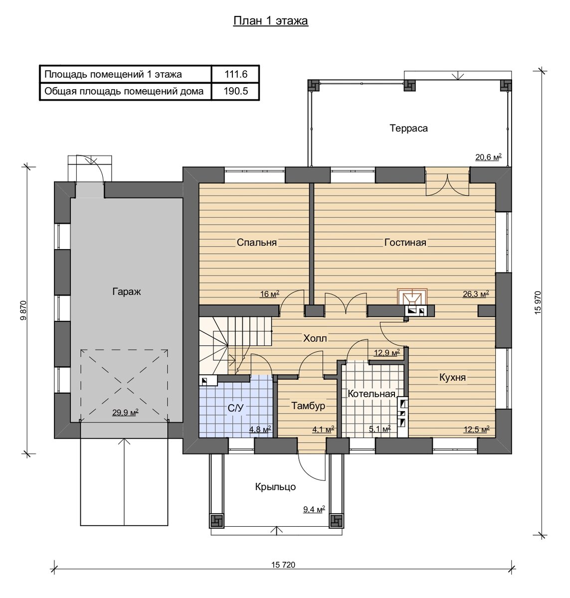
Мне нравится этот двухэтажный дом с гаражом от petrenyovarch. На первом этаже расположены гараж, солидная гостиная с камином и выходом на террасу, кухня, котельная, с/у и спальня. Вход в дом через тамбур-прихожую, лестница в холле ведет на 2 этаж. Площадь помещений 1-го этажа - 111,6 кв. м. На втором этаже разместились 3 спальни и 2 просторных с/у. В двух спальнях предусмотрены гардеробные комнаты. Площадь помещений 2-го этажа - 78,9 кв. м. Общая площадь помещений дома - 190,5 кв. м. Видео к проекту petrenyovarch №105. Готовый проект двухэтажного дома с гаражом. С другими проектами petrenyovarch можно ознакомиться по ссылке: https://docs.google.com/spreadsheets/d/1arou0gdKUUKl8cf-DmjKZAcSaU6MR7oFXyHxhYa-758/edit?usp=sharing До новых встреч!

Мне нравится этот двухэтажный дом с гаражом от petrenyovarch.

На первом этаже расположены гараж, солидная гостиная с камином и выходом на террасу, кухня, котельная, с/у и спальня. Вход в дом через тамбур-прихожую, лестница в холле ведет на 2 этаж. Площадь помещений 1-го этажа - 111,6 кв. м.

На втором этаже разместились 3 спальни и 2 просторных с/у. В двух спальнях предусмотрены гардеробные комнаты. Площадь помещений 2-го этажа - 78,9 кв. м. Общая площадь помещений дома - 190,5 кв. м.

-2
-3

Видео к проекту petrenyovarch №105. Готовый проект двухэтажного дома с гаражом.

С другими проектами petrenyovarch можно ознакомиться по ссылке: https://docs.google.com/spreadsheets/d/1arou0gdKUUKl8cf-DmjKZAcSaU6MR7oFXyHxhYa-758/edit?usp=sharing

До новых встреч!