Найти в Дзене

Собери дом, как стол из ИКЕИ, рисуйте любые планировки (технология готового каркаса за 5т.р./м2 – мужской конструктор)

Стоимость строительства здания выходит очень дорого, расскажу как удешевить процесс строительства за счёт универсальных конструкций типовой серии, которые собрать вы сможите самостоятельно по инструкции (не платить за сборку), дочитайте статью до конца и всё станет ясно! В чем суть технологии? Сделал простой, универсальный металлический конструктор на болтовых соединениях для строительства домов, гаражей, универсальные элементы труб и швеллеров с шагом по 2 м. Все элементы взаимозаменяемы, что упрощает сборку, по принципу стола из магазина IKEA. По инструкции вы быстро собираете своё здание и по доступной цене! Берется любой проект Корректируем планировки под типовые размеры каркаса, выглядит это вот так (двигаем перегородки). Планировки жилого дома Также как и в игре «Майнкрафт», всё состоит из квадратов, можно рисовать и на тетрадном листе в клеточку, вы рисуете себе планировку дома, при этом точно знаете сколько будет стоить комплект каркаса для вашего здания. Внешний вид (фасад
Оглавление
Стоимость строительства здания выходит очень дорого, расскажу как удешевить процесс строительства за счёт универсальных конструкций типовой серии, которые собрать вы сможите самостоятельно по инструкции (не платить за сборку), дочитайте статью до конца и всё станет ясно!

В чем суть технологии?

Сделал простой, универсальный металлический конструктор на болтовых соединениях для строительства домов, гаражей, универсальные элементы труб и швеллеров с шагом по 2 м. Все элементы взаимозаменяемы, что упрощает сборку, по принципу стола из магазина IKEA. По инструкции вы быстро собираете своё здание и по доступной цене!

Берется любой проект

Корректируем планировки под типовые размеры каркаса, выглядит это вот так (двигаем перегородки).
Наложение любой планировки на типовой каркас
Наложение любой планировки на типовой каркас

Планировки жилого дома

Также как и в игре «Майнкрафт», всё состоит из квадратов, можно рисовать и на тетрадном листе в клеточку, вы рисуете себе планировку дома, при этом точно знаете сколько будет стоить комплект каркаса для вашего здания.
Разные варианты планировок
Разные варианты планировок
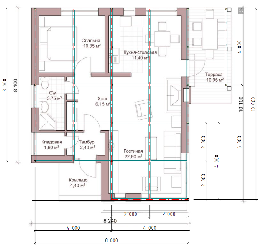
Так выглядит скорректированная планировка дома
Так выглядит скорректированная планировка дома

Внешний вид (фасад дома)

Дом может выглядеть так, или как вы захотите
Дом может выглядеть так, или как вы захотите

Фасады в плане, разрезы

А так выглядят конструкции
А так выглядят конструкции
Соединительные узлы по полу
Соединительные узлы по полу
Боковые соединения
Боковые соединения

Вам придёт готовый комплект каркаса с инструкцией по размерам с болтами и гайками. Цены комплекта пока будут не высокие, почти по себестоимости: 5000 руб/м2 (по полу) основного каркаса, размеры могут быть любыми, но кратные 2 метрам. Чтобы понять, что вы хотите, возьмите тетрадный лист в клеточку и нарисуйте планировку под ваши задачи, повторюсь, про габариты, стены наружные должны быть кратные 2 м, как в примере выше.

Мостик холода убирается деревянным бруском

На трубу металлическую ставиться деревянный брусок
На трубу металлическую ставиться деревянный брусок

Кровля для здания

С кровлей несколько вариантов, её сделать из дерева (фермы) или также из металла.

Пишите, звоните готов ответить на ваши вопросы: 89109732578 (Whatsapp).

Для коммерческих объектов (своя типовая серия)

Видео строительства каркаса фермы (12х68х3м), видео по ссылке >>

Если статья была вам полезна и вы дочитали её до конца, поддержите проект лайком, это помогает развитию канала, мотивирует к написанию нового материала и да, подписывайтесь!
Если статья была вам полезна и вы дочитали её до конца, поддержите проект лайком, это помогает развитию канала, мотивирует к написанию нового материала и да, подписывайтесь!

© Анатоль Иванов – Заметки строителя

Соцсети: Канал | ВК | Инста | Fb | YouT

-13