Добавить в корзинуПозвонить
Найти в Дзене

Архитектурный проект загородного дома для отдыха площадью 70 квадратных метров. Отлично подходит для дома выходного дня!

Хотим показать Вам проект небольшого загородного дома выходного дня. Дом проектировался не для постоянного проживания, а для проведения семейного досуга за городом. Планировкой предусмотрена совмещенная кухня-гостиная площадью 31 м2, две спальни, два санузла и сауна. Так же на главном фасаде выполнена летняя терраса площадью 37 м2. Техническое помещение запроектировано с отдельным входом с улицы. Фасады в проекте выполнены из керамического облицовочного кирпича по типу "Баварская кладка". Основной строительный материал дома - керамический кирпич. Конструкция наружных стен: Облицовочный кирпич 120 мм + Вентиляционный зазор 20 мм + Утеплитель 50 мм + Кирпич 380 мм. Кровля двухскатная из мягкой черепицы. Если Вам понравился данный проект или Вы хотите адаптировать его конкретно под Ваш участок или же заказать индивидуальный проект загородного дома - пишите нам в личные сообщения. Мы в инстаграм - https://instagram.com/noviy_dom_ekb

Хотим показать Вам проект небольшого загородного дома выходного дня.

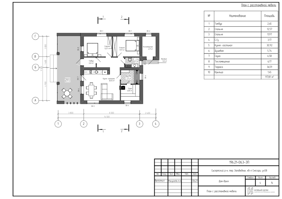
Планировка первого этажа
Планировка первого этажа

Дом проектировался не для постоянного проживания, а для проведения семейного досуга за городом.

Планировкой предусмотрена совмещенная кухня-гостиная площадью 31 м2, две спальни, два санузла и сауна. Так же на главном фасаде выполнена летняя терраса площадью 37 м2. Техническое помещение запроектировано с отдельным входом с улицы.

Фасады по буквенным осям
Фасады по буквенным осям
Фасады по числовым осям
Фасады по числовым осям

Фасады в проекте выполнены из керамического облицовочного кирпича по типу "Баварская кладка".

Основной строительный материал дома - керамический кирпич.

Конструкция наружных стен: Облицовочный кирпич 120 мм + Вентиляционный зазор 20 мм + Утеплитель 50 мм + Кирпич 380 мм.

Кровля двухскатная из мягкой черепицы.

Модель объекта с расположением мебели
Модель объекта с расположением мебели
Видовой рендер на главный фасад
Видовой рендер на главный фасад
Видовой рендер на главный фасад
Видовой рендер на главный фасад
Видовой рендер на задний фасад
Видовой рендер на задний фасад

Если Вам понравился данный проект или Вы хотите адаптировать его конкретно под Ваш участок или же заказать индивидуальный проект загородного дома - пишите нам в личные сообщения.

Мы в инстаграм - https://instagram.com/noviy_dom_ekb