Найти в Дзене
УДОБНО ЖИТЬ!

Часть 3 🏠 Дом из двутавра в Дании. Монтаж пола, установка печи, предчистовая отделка

Продолжаем обзор строительства частного дома в Дании по каркасной технологии. Ссылка на предыдущие части будет ниже будет в самом низу этой статьи Обычно несущие элементы конструкции постройки прячутся в стенах, здесь же опорные двутавровые балки находятся на виду, являясь главным акцентом интерьера. Данный конструктивный подход позволяет сэкономить на материалах, при этом получив большой объем открытого пространства. ПЛАНИРОВКА Дом представлен - большой, просторной кухней-гостиной с панорамным остеклением, которая занимает 3/4 общей площади, и лишь четверть отводится под прихожую, выделенные помещения санузла и спальни. Предчистовая внутри Предыдущих статьях мы остановились на том, что дом готов к чистовой отделке: как с внешней стороны, так и внутри. Снаружи обрешётка готова к тому чтобы обшиться фасадной доской, а вот про внутренние работы здесь рассмотрим чуть подробнее. Пирог стен и потолка внутри представлен закрепленной к каркасу тонкой 8ой фанерой, к которой уже подшит гипсока
Оглавление
Продолжаем обзор строительства частного дома в Дании по каркасной технологии. Ссылка на предыдущие части будет ниже будет в самом низу этой статьи

Обычно несущие элементы конструкции постройки прячутся в стенах, здесь же опорные двутавровые балки находятся на виду, являясь главным акцентом интерьера. Данный конструктивный подход позволяет сэкономить на материалах, при этом получив большой объем открытого пространства.

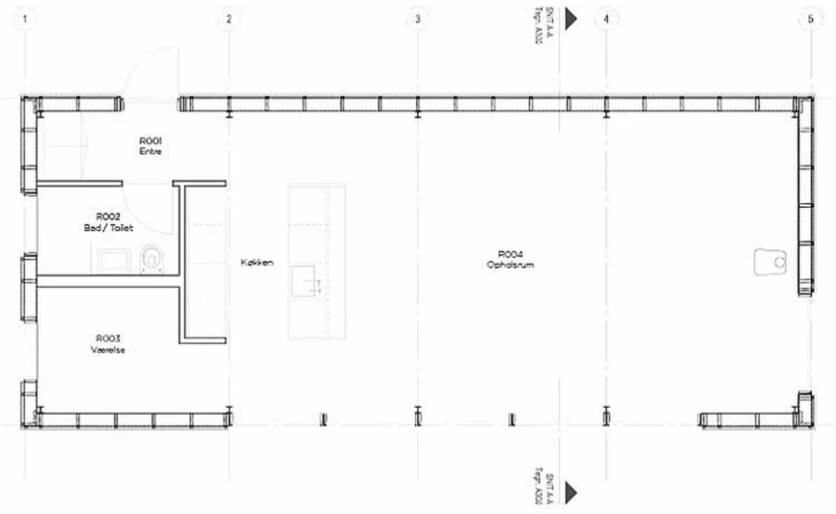
ПЛАНИРОВКА

Дом представлен - большой, просторной кухней-гостиной с панорамным остеклением, которая занимает 3/4 общей площади, и лишь четверть отводится под прихожую, выделенные помещения санузла и спальни.

-2

Предчистовая внутри

Предыдущих статьях мы остановились на том, что дом готов к чистовой отделке: как с внешней стороны, так и внутри. Снаружи обрешётка готова к тому чтобы обшиться фасадной доской, а вот про внутренние работы здесь рассмотрим чуть подробнее.

-3

Пирог стен и потолка внутри представлен закрепленной к каркасу тонкой 8ой фанерой, к которой уже подшит гипсокартон. Штукатурка, шпатлевка, грунтовка, покраска гипсокартона дело пыльное и нечистое, поэтому после данных работ необходимо всё привести в порядок - убраться в комнате.

-4
-5

Укладка пола

На очищенный бетонный пол в поперечном направлении укладываются лаги, которые выставляются по уровню с помощью пластиковых клиньев. Чтобы выверять положение лаг на большой длине, приходится использовать отобранные ровные бруски.

-6
-7

В качестве основного напольного материала была выбрана массивная инженерная доска, которая кладётся в продольном направлении. От стен клиньями выставляется зазор около 5мм - доски ориентирются параллельно стенам. Данная конструкция дома с выступающими двутаврами заставляет запариться с выпиливанием досок пола.

-8
-9

Установка печи

Дом благодаря качественному утеплению получился тёплым. Есть возможность электрообогрева, но как в таком лесном доме обойтись и без дровяного отопления? Вариант использования напольной печи-камина - это вполне функциональное решение: и душевного уюта придаст, и отлично согреет помещение.

-10
-11

Используя современные комплектующие, установка печи труда не вызывает. Стену просверлить не проблема, ведь с одной стороны ЦСП, а с другой ГКЛ и фанера, тут главное не попасть в стойки стен. Сэндвич-дымоход смонтирован снаружи для повышение пожарной безопасности.

-12
-13

Дом внутри уже вполне пригоден для проживания - чисто, тепло, уютно, пока только готовить не где, но ничего это только начало.

-14

ПРОДОЛЖЕНИЕ СЛЕДУЕТ …

подписывайтесь чтобы не пропустить

СПАСИБО ЗА ВНИМАНИЕ!

ЗДОРОВЬЯ ВАМ И ОТЛИЧНОГО НАСТРОЕНИЯ!

РАНЕЕ ПРО ДОМ В ДАНИИ:

Часть №1 - Расчистка, фундамент и крыша

Часть №2 - Создание стен, обшивка снаружи и внутри

ТАКЖЕ НА КАНАЛЕ:

Кварталы русских советских домиков🏠 в городах. Необычайный уют и красота! Что я заметил

-15

Такие дома строят в Турции🏡 И да там бывает снег! Мини-каркасник. Фото-строительства

-16

Фёдор Савинцев. Маленькие советские дачи

ОТДЕЛЬНО ОГРОМНАЯ БЛАГОДАРНОСТЬ ЗА ЛАЙКИ 🤗 В ПОДДЕРЖКУ КАНАЛА