Добавить в корзинуПозвонить
Найти в Дзене

Архитектурный проект загородного дома площадью 150 квадратных метров

Представляем Вам проект компактного одноэтажного дома площадью 150 квадратных метров Проект разработан нашей компанией в 2021 году. Дом рассчитан для комфортного проживания семьи из четырех человек. Планировкой предусмотрена большая совмещенная кухня-гостиная с помещением для хранения. Есть две детские комнаты и спальня площадью 14,69, 15,36 и 16,84 м2 соответственно. Запроектированы один большой полноценный санузел и гостевой туалет. Из тамбура предусмотрен вход в техническое помещение площадью 5,78 м2. Размеры тамбура позволяют расположить шкафы для одежды или обуви. Из гостиной есть выход на остекленную террасу площадью 15,99 м2. Материал стен: Облицовочный кирпич 120 мм + Минераловатный утеплитель 50 мм + Пенобетонные блоки 300 мм Кровля из мягкой черепицы типа "Шинглас" Высота потолков в чистоте 3.350 м. ГК "Новый дом" занимается разработкой Архитектурных проектов индивидуальных жилых домов с 2016 года. У нас свой штат архитекторов и конструкторов. Мы можем выполнить разработ

Представляем Вам проект компактного одноэтажного дома площадью 150 квадратных метров

Видовой рендер на главный фасад
Видовой рендер на главный фасад

Проект разработан нашей компанией в 2021 году.

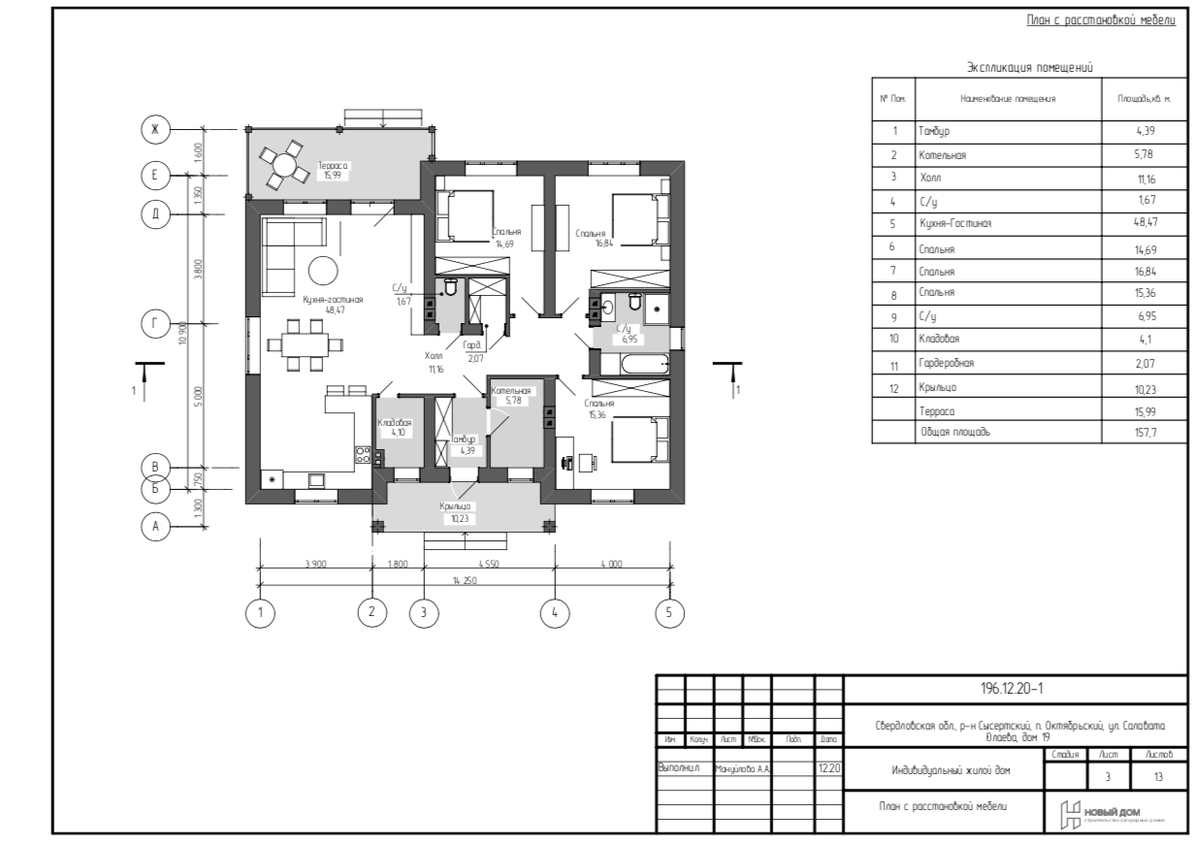
План первого этажа с расстановкой мебели
План первого этажа с расстановкой мебели

Дом рассчитан для комфортного проживания семьи из четырех человек. Планировкой предусмотрена большая совмещенная кухня-гостиная с помещением для хранения.

Есть две детские комнаты и спальня площадью 14,69, 15,36 и 16,84 м2 соответственно.

Запроектированы один большой полноценный санузел и гостевой туалет.

Из тамбура предусмотрен вход в техническое помещение площадью 5,78 м2. Размеры тамбура позволяют расположить шкафы для одежды или обуви.

Из гостиной есть выход на остекленную террасу площадью 15,99 м2.

Фасады с указанием отметок и цветами отделочных слоев
Фасады с указанием отметок и цветами отделочных слоев

Материал стен: Облицовочный кирпич 120 мм + Минераловатный утеплитель 50 мм + Пенобетонные блоки 300 мм

Фасады с указанием отметок и цветами отделочных слоев
Фасады с указанием отметок и цветами отделочных слоев

Кровля из мягкой черепицы типа "Шинглас"

Разрез 1 - 1
Разрез 1 - 1

Высота потолков в чистоте 3.350 м.

Видовой рендер на главный фасад
Видовой рендер на главный фасад
Видовой рендер на задний фасад
Видовой рендер на задний фасад
Видовой рендер на задний фасад
Видовой рендер на задний фасад

ГК "Новый дом" занимается разработкой Архитектурных проектов индивидуальных жилых домов с 2016 года. У нас свой штат архитекторов и конструкторов. Мы можем выполнить разработку проекта Вашего будущего дома конкретно под Ваши пожелания и привычки.

Оставляйте заявку на проектирование на сайте - https://www.stroimdoma196.ru

Смотрите нас на Ютуб - https://www.youtube.com/channel/UC9FDLINaUtJN3RTtBTEtCVA

Мы в инстаграм - https://instagram.com/noviy_dom_ekb