Добавить в корзинуПозвонить
Найти в Дзене
Дом, который строю я

С чего началось строительство

Привет, Друзья! Конечно, с выбора проекта дома. Выбрать "свой" проект дома это очень большая и важная история. И совсем не быстрая, надо признать. Но при этом очень ответственная. Земельный участок я приобрела без подряда, потому проект дома мог быть каким угодно. И чтобы с потенциальными строителями обсуждать этот вопрос более детально, я сделала наброски своего дома, исходя из моих потребностей и пожеланий. Дом вышел большим по квадратуре, но мне было важно определить, на данном этапе, какие помещения мне необходимо иметь и какую площадь каждое такое помещение должно занимать, либо не быть меньше какого-то определенного объема. Это, во многом, зависит от использования помещения, плана расстановки мебели или установки какой-то техники, например. Этим никак нельзя пренебречь, на данном этапе. Потому что только вы можете знать, где и что Вы планируете поставить/расставить, а от этого будет зависеть работа строителей и электриков с сантехниками. Сразу скажу, что "свой дом", который из

Привет, Друзья!

Конечно, с выбора проекта дома.

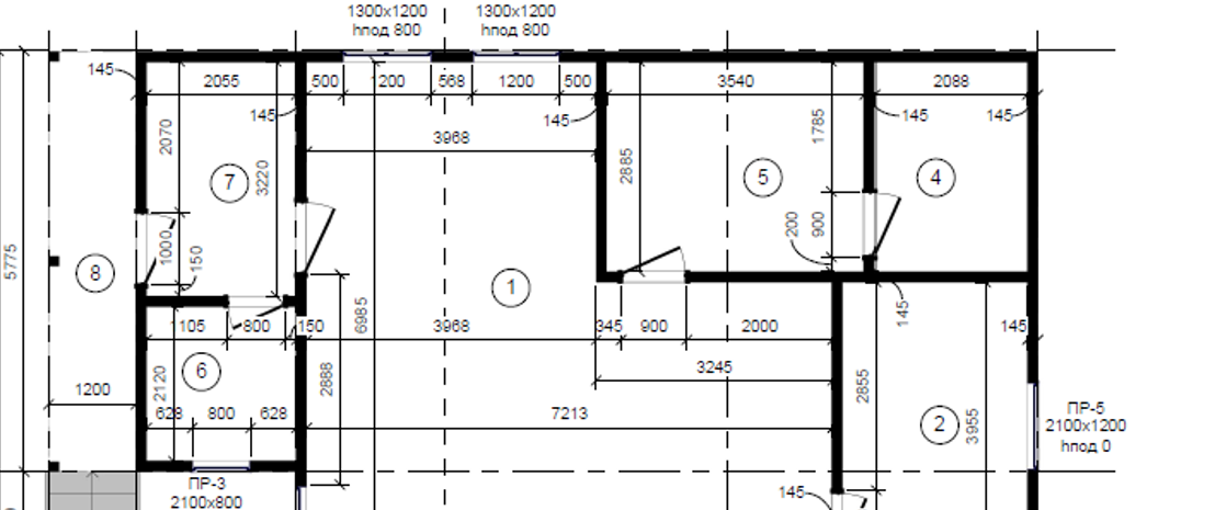
Фрагмент финального проекта дома. Когда приступим к фундаменту, уже обсудим проект дома очень подробно
Фрагмент финального проекта дома. Когда приступим к фундаменту, уже обсудим проект дома очень подробно

Выбрать "свой" проект дома это очень большая и важная история. И совсем не быстрая, надо признать. Но при этом очень ответственная.

Земельный участок я приобрела без подряда, потому проект дома мог быть каким угодно. И чтобы с потенциальными строителями обсуждать этот вопрос более детально, я сделала наброски своего дома, исходя из моих потребностей и пожеланий. Дом вышел большим по квадратуре, но мне было важно определить, на данном этапе, какие помещения мне необходимо иметь и какую площадь каждое такое помещение должно занимать, либо не быть меньше какого-то определенного объема. Это, во многом, зависит от использования помещения, плана расстановки мебели или установки какой-то техники, например. Этим никак нельзя пренебречь, на данном этапе. Потому что только вы можете знать, где и что Вы планируете поставить/расставить, а от этого будет зависеть работа строителей и электриков с сантехниками.

  • Забегу вперед и открою вам небольшой секрет. Сейчас, когда проект дома утвержден и мы начинаем строиться, я уже знаю свой проект кухни. В принципе, можно хоть сейчас идти и ее просчитывать. Зачем так рано, спросите Вы? Вообще не рано, потому что сейчас, когда строители будут возводить стены, я уже готова им сказать какую стену нужно усилить, потому что на ней будут висеть верхние кухонные полки и ящики.

Сразу скажу, что "свой дом", который из себя представлял скорее черновик или корявые наброски я даже уже успела полюбить.

Чуть меньше двух месяцев ушло на то, чтобы определиться со строителями, которые будут строить дом для меня.

Почему так долго спросите Вы? Все просто.

  • Я не могла определиться с материалами и технологией строительства. Потому трех подрядчиков выбирала из тех, что строят по разным технологиям. Брус, которому требуется время на отстаивание, блоки и каркасник, когда можно сразу въезжать и жить.
  • Мне было важно, чтобы мои будущие подрядчики не тупо следовали "моему проекту", а проявили свою фантазию и профессионализм, дали какие-то дельные советы, исходя из своего опыта. Я-то, понятия не имею, какую длину стены целесообразнее сделать из соображений экономии и длины готового поставляемого бруса (он, кстати к слову 6 м, потому длину стены лучше делать 6 или 8 м, но не 7,5. Обрезков на выброс меньше).
  • Итоговой стоимости строительства дома.
  • Ну и чего греха таить, из соображений личных симпатий. Как утверждают психологи, личная симпатия или наоборот антипатия, возникает уже в первые 2-3 минуты общения после знакомства. Так HR, в первые 2-3 минуты знакомства с потенциальным работником, уже знает возьмет он его на работу или нет. Весь остальной час это просто, чтобы время убить и подвести время интервью к средне-статистическому).

Итак...

Прошу любить и жаловать. Дом мне будет строить Сергей и его профессиональная команда строителей. От моего первоначального проекта осталось много. Например, расположение помещений. Но размеры, входы в комнаты, даже одно объединение помещений произошло и у меня будут 2 входа в дом, чего раньше не предполагалось.

Друзья, подписывайтесь на канал, чтобы не пропустить никаких новостей от меня! Ставьте лайки, задавайте вопросы. Канал всегда интересен, когда он становится живым. Мне бы совсем не хотелось, чтобы это стало лишь моим монологом на тему. Благодарю!