Найти в Дзене

Проект дома из кедра 444 кв. м АК21-12Кедр: пять спален, баня, хамам, второй свет, эркеры с витражами, терраса

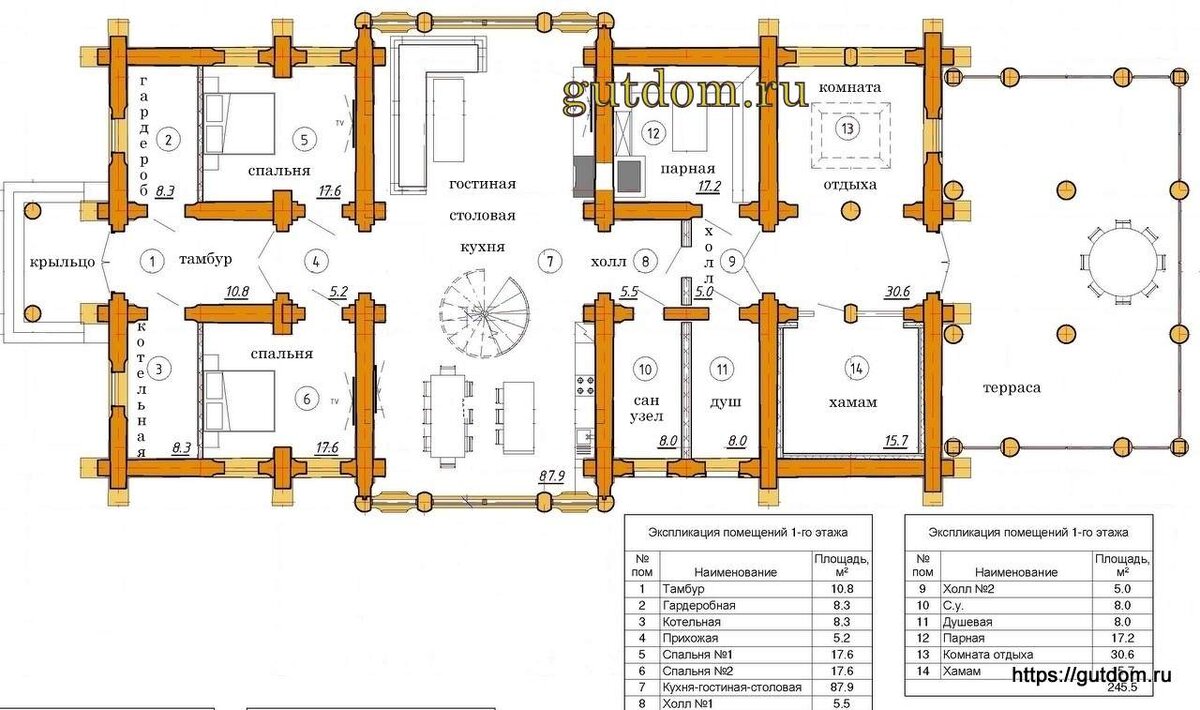
Эксклюзивный проект дома из кедра общей площадью 444,4 м2 (без террасы) с четким делением на зоны. Планировка дома на первом этаже: слева от кухни - столовой - гостиной две спальные комнаты. Справа расположена банный комплекс: парная, хамам, душевая, комната отдыха с возможностью выхода на большую крытую террасу площадью 76 м2. Второй этаж полностью занимает спальная зона. Как видим, планировка дома продумана и рациональна. Индивидуальность коттеджа подчеркивают два эркера с витражами, дормер на крыше, "воздушная" терраса и, конечно же, материал строительства - кедр. Входная группа спроектирована с одного из торцов коттеджа - уютное крыльцо с крышей обрамляют витражи второго этажа коттеджа. Тип фундамента под коттедж зависит от грунта участка застройки, климатической зоны, других параметров. Планировка дома с банным комплексом, при соответствующей доработке (архитектура, конструктив), может подойти под строительство из других стройматериалов. Заказать проект дома, посмотреть готовые ил

Эксклюзивный проект дома из кедра общей площадью 444,4 м2 (без террасы) с четким делением на зоны.

Планировка дома на первом этаже: слева от кухни - столовой - гостиной две спальные комнаты.

Справа расположена банный комплекс: парная, хамам, душевая, комната отдыха с возможностью выхода на большую крытую террасу площадью 76 м2.

планировка дома первый этаж
планировка дома первый этаж

Второй этаж полностью занимает спальная зона.

планировка дома второй этаж
планировка дома второй этаж

Как видим, планировка дома продумана и рациональна.

Индивидуальность коттеджа подчеркивают два эркера с витражами, дормер на крыше, "воздушная" терраса и, конечно же, материал строительства - кедр.

-3

Входная группа спроектирована с одного из торцов коттеджа - уютное крыльцо с крышей обрамляют витражи второго этажа коттеджа.

-4

Тип фундамента под коттедж зависит от грунта участка застройки, климатической зоны, других параметров.

Планировка дома с банным комплексом, при соответствующей доработке (архитектура, конструктив), может подойти под строительство из других стройматериалов.

-5

Заказать проект дома, посмотреть готовые или концепции (планировки, визуализации) можно по ссылке

проекты домов

Дома из кедра - это, прежде всего, экология...

-6
-7
-8
-9
-10
-11

Готовый проект дома из кедра с проработкой узлов и деталей:

готовый проект дома из кедра
готовый проект дома из кедра