Добавить в корзинуПозвонить
Найти в Дзене

ДОМ + ДОМИК (№4) - проекты для современной мужской усадьбы

Одноэтажный БОРГО 125 м2 и банька СИЕСТА 55 м2 Продолжаем публикацию проектов ДОМ + ДОМИК. 👇 Прошлая пара домов Оба строения из сегодняшнего комплекта выполнены в современном минималистичном стиле. Залог гармоничного внешнего вида этой усадьбы - одинаковая отделка обеих построек. Общая площадь помещений усадьбы составит около 180 метров. ЖИЛОЙ ДОМ БОРГО - проект современного одноэтажного дома 125 м2 с большой гостиной, и тремя спальнями. Особенность дома - вытянутый план (подходит для узких участков) и наличие большой мастер-спальни 👇 Подробнее о проекте БОРГО ХОЗПОСТРОЙКА Домик СИЕСТА имеет площадь 55 м2. Внутреннее пространство позволяет разместить там баню, небольшую квартирку, хозблок или мастерскую. 👇 Больше информации о домике РАСПОЛОЖЕНИЕ НА УЧАСТКЕ В зависимости от назначения малого дома, строения можно расположить по-разному. Ниже - два примера организации участка 25х40 👇 Продолжение статьи 👇 Почитать общие правила формирования усадьбы ► Чтобы не пропускать наши публи
Оглавление

Одноэтажный БОРГО 125 м2 и банька СИЕСТА 55 м2

Продолжаем публикацию проектов ДОМ + ДОМИК.

👇 Прошлая пара домов

ДОМ + ДОМИК (№3) - проекты для усадьбы в деревенском стиле
Инваполис - проекты рациональных домов 21 августа 2021

Оба строения из сегодняшнего комплекта выполнены в современном минималистичном стиле.

Залог гармоничного внешнего вида этой усадьбы - одинаковая отделка обеих построек. Общая площадь помещений усадьбы составит около 180 метров.

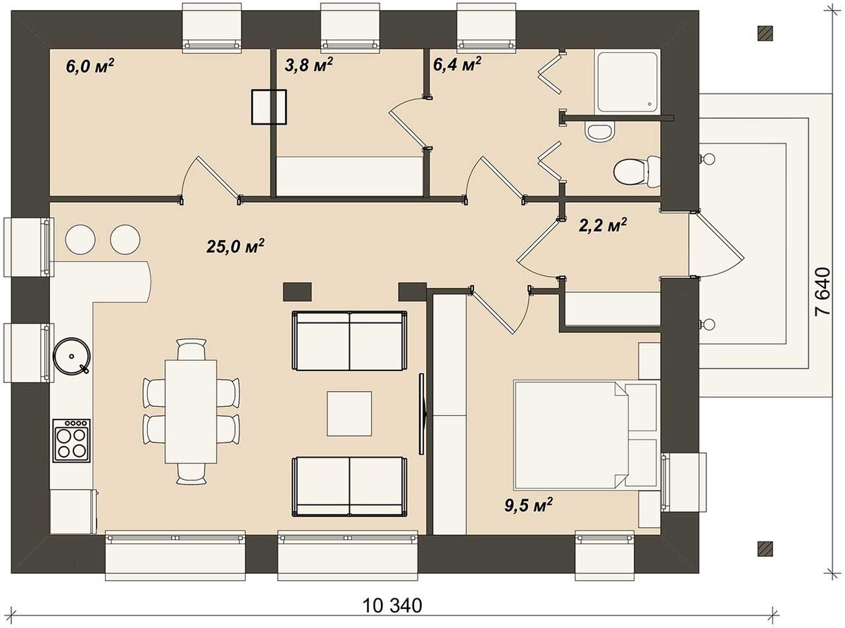
ЖИЛОЙ ДОМ

БОРГО - проект современного одноэтажного дома 125 м2 с большой гостиной, и тремя спальнями. Особенность дома - вытянутый план (подходит для узких участков) и наличие большой мастер-спальни

👇 Подробнее о проекте БОРГО

БОРГО 124 м2 - проект современного одноэтажного дома с тремя спальнями
Инваполис - проекты рациональных домов 20 февраля 2021

ХОЗПОСТРОЙКА

Домик СИЕСТА имеет площадь 55 м2. Внутреннее пространство позволяет разместить там баню, небольшую квартирку, хозблок или мастерскую.

👇 Больше информации о домике

СИЕСТА 54 м2 - проект банного домика 7х10 с современном стиле
Инваполис - проекты рациональных домов 16 мая 2021

РАСПОЛОЖЕНИЕ НА УЧАСТКЕ

В зависимости от назначения малого дома, строения можно расположить по-разному. Ниже - два примера организации участка 25х40

👇 Продолжение статьи

ДОМ +ДОМИК (№5)
Инваполис - проекты рациональных домов 27 августа 2021

👇 Почитать общие правила формирования усадьбы

ДОМ + ДОМИК. Как создать на участке стильную усадьбу. Правила и три примера.
Инваполис - проекты рациональных домов 5 марта 2023

► Чтобы не пропускать наши публикации, реагируйте лайком 👍, подписывайтесь на канал, пишите комментарии, тогда нейросети будут показывать нас вам чаще :)

► Получать обзоры наших проектов и следить за новостями и можно также в ТЕЛЕГРАММ-КАНАЛЕ ИНВАПОЛИС – подписывайтесь, контент немного отличается 😊