Добавить в корзинуПозвонить
Найти в Дзене

ДОМ + ДОМИК (№6) - проект дома 160 м2 и проект рубленной сторожки

Дом КРОХА С ГАРАЖОМ 165 м2 и сторожка УНИВЕРСАЛ 52 м2 Продолжаем публикацию проектов ДОМ + ДОМИК. 👇 Предыдущая пара проектов Сегодня Вашему вниманию - простой дом с гаражом и рубленная сторожка универсального назначения. Залог гармоничного внешнего вида этой усадьбы - единое цветовое решение кровли и деревянных деталей, и одинаковый материал цокольной части строений. Общая площадь помещений усадьбы составит около 200 метров. ЖИЛОЙ ДОМ КРОХА С ГАРАЖОМ - проект удобного современного дома 150 м2 с большой гостиной, 5 спальнями. Особенности дома - панорамные окна и большие террасы 👇 Подробнее о проекте КРОХА С ГАРАЖОМ ХОЗПОСТРОЙКА УНИВЕРСАЛ 30 м2 - сруб габаритами 7 х 7 метров из бруса или бревна. Маленький аккуратный рубленый домик, в котором приятно собраться с друзьями для застолья или вечерней беседы. В доме предусмотрены две больших и довольно высоких антресоли для хранения вещей или обустройства спальных мест. Больше информации о доме и его проекте (описание, цена проекта, поря
Оглавление

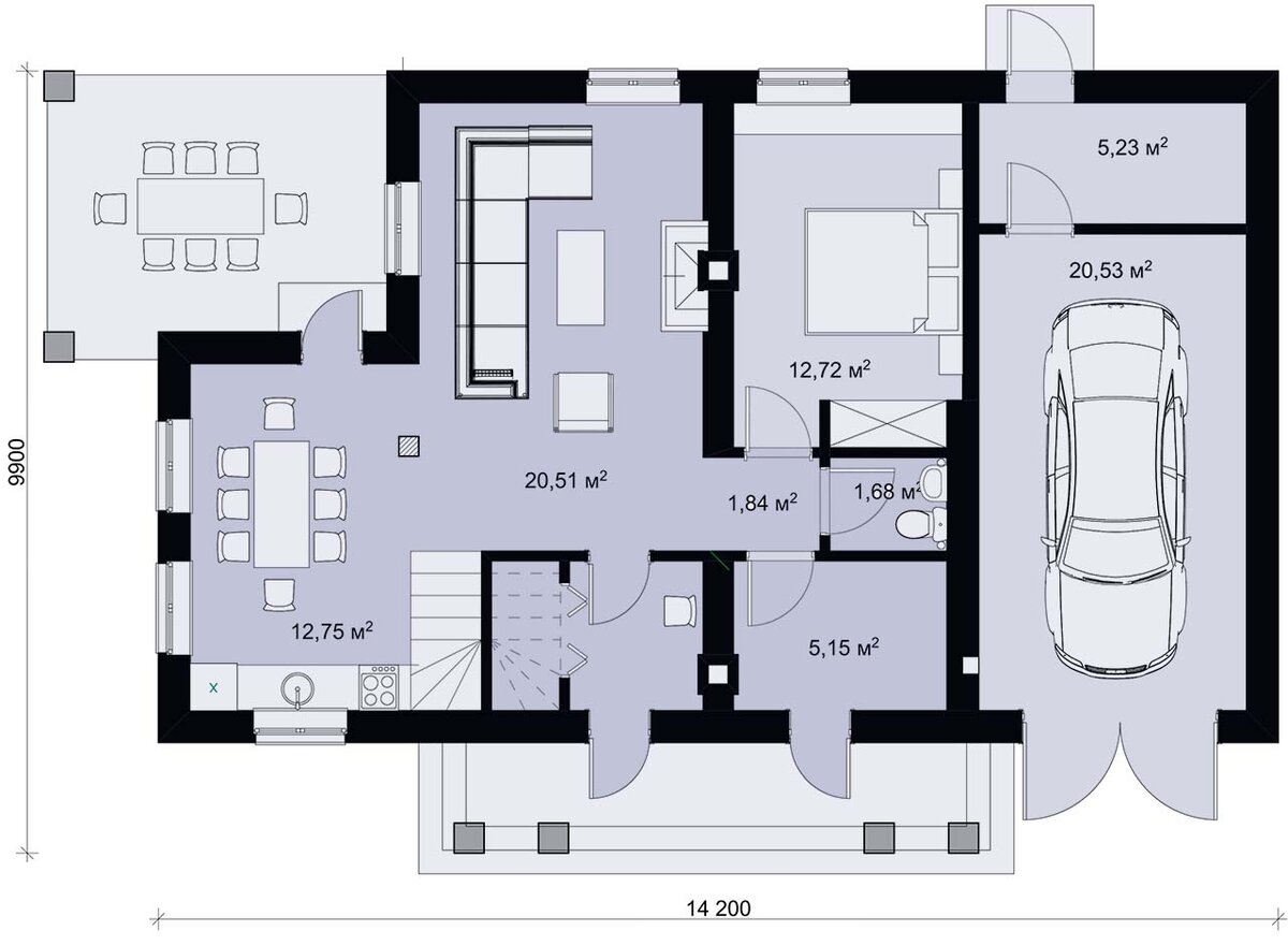
Дом КРОХА С ГАРАЖОМ 165 м2 и сторожка УНИВЕРСАЛ 52 м2

Продолжаем публикацию проектов ДОМ + ДОМИК.

👇 Предыдущая пара проектов

ДОМ +ДОМИК (№5) - проект дома 150 м2 и проект деревянной бани 45 м2
Инваполис - проекты рациональных домов 27 августа 2021

Сегодня Вашему вниманию - простой дом с гаражом и рубленная сторожка универсального назначения.

Залог гармоничного внешнего вида этой усадьбы - единое цветовое решение кровли и деревянных деталей, и одинаковый материал цокольной части строений. Общая площадь помещений усадьбы составит около 200 метров.

ЖИЛОЙ ДОМ

КРОХА С ГАРАЖОМ - проект удобного современного дома 150 м2 с большой гостиной, 5 спальнями. Особенности дома - панорамные окна и большие террасы

👇 Подробнее о проекте КРОХА С ГАРАЖОМ

КРОХА С ГАРАЖОМ - проект дома 165 м2 с 4 спальнями и хобби–комнатой
Инваполис - проекты рациональных домов 5 августа 2022

ХОЗПОСТРОЙКА

УНИВЕРСАЛ 30 м2 - сруб габаритами 7 х 7 метров из бруса или бревна. Маленький аккуратный рубленый домик, в котором приятно собраться с друзьями для застолья или вечерней беседы.

В доме предусмотрены две больших и довольно высоких антресоли для хранения вещей или обустройства спальных мест.

Больше информации о доме и его проекте (описание, цена проекта, порядок покупки) на страничке дома на сайте ИНВАПОЛИС

РАСПОЛОЖЕНИЕ НА УЧАСТКЕ

В зависимости от назначения хозпостройки, дома можно расположить по-разному. Ниже - два примера организации участка 25х40 метров

👇 Продолжение статьи

ДОМ + ДОМИК (№7)
Инваполис - проекты рациональных домов 31 августа 2021

👇 Почитать общие правила формирования усадьбы

ДОМ + ДОМИК. Как создать на участке стильную усадьбу. Правила и три примера.
Инваполис - проекты рациональных домов 5 марта 2023

► Чтобы не пропускать наши публикации, реагируйте лайком 👍, подписывайтесь на канал, пишите комментарии, тогда нейросети будут показывать нас вам чаще :)

► Получать обзоры наших проектов и следить за новостями и можно также в ТЕЛЕГРАММ-КАНАЛЕ ИНВАПОЛИС – подписывайтесь, контент немного отличается 😊