Добавить в корзинуПозвонить
Найти в Дзене

ДОМ + ДОМИК №1: проекты дома и хозяйственной постройки для усадьбы шале

Продолжая актуальную тему второго дома на участке, мы подготовили несколько пар проектов ДОМ + ДОМИК, подходящих друг другу стилистически, и пригодных для создания красивой и функциональной усадьбы на своём участке. дом ЕВРОПЕЙСКИЙ 123 м2 и домик ЗОЛОТНИК 29 м2 Оба строения задуманы в стиле шале, с однотипными деталями фасадов, и при условии сходной отделки и цветовой гаммы составят прекрасный ансамбль. Общая площадь помещений составит около 150 метров, не считая подвалов (оба дома могут иметь или не иметь подвал) 👇 Описание стиля шале и подборка проектов шале ЖИЛОЙ ДОМ ЕВРОПЕЙСКИЙ - проект удобного и стильного дома-шале с для семьи из 4-6 человек (в доме 4 спальни) 👇 Подробнее о проекте ЕВРОПЕЙСКИЙ 👇 Ещё несколько вариантов родственных ЕВРОПЕЙСКОМУ шале ХОЗПОСТРОЙКА Домик ЗОЛОТНИК имеет площадь 29 м2 и не имеет внутри несущих стен. Распланировать его можно по-разному, в зависимости от того, чего недостаёт в доме. Он может стать баней, гостевым домиком, хозпостройкой. 👇 Больше инф
Оглавление

Продолжая актуальную тему второго дома на участке, мы подготовили несколько пар проектов ДОМ + ДОМИК, подходящих друг другу стилистически, и пригодных для создания красивой и функциональной усадьбы на своём участке.

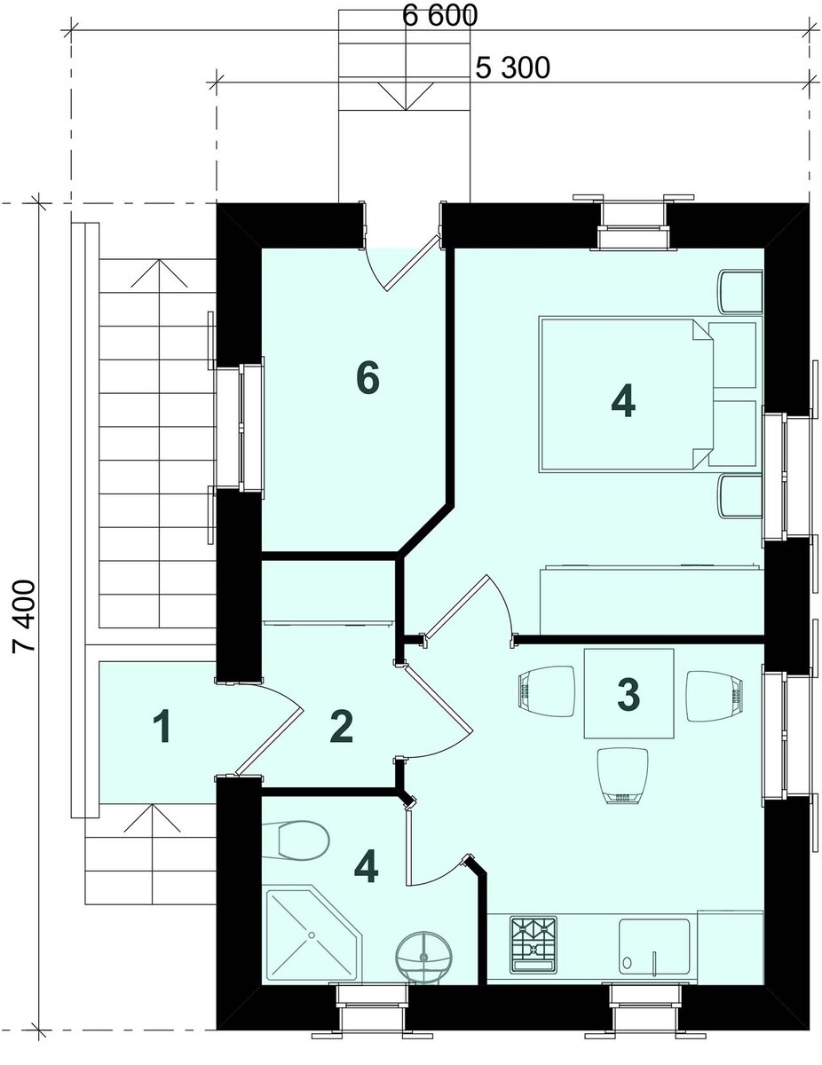
дом ЕВРОПЕЙСКИЙ 123 м2 и домик ЗОЛОТНИК 29 м2

Оба строения задуманы в стиле шале, с однотипными деталями фасадов, и при условии сходной отделки и цветовой гаммы составят прекрасный ансамбль. Общая площадь помещений составит около 150 метров, не считая подвалов (оба дома могут иметь или не иметь подвал)

👇 Описание стиля шале и подборка проектов шале

Дом в стиле ШАЛЕ - признаки стиля, много красивых фото и несколько готовых проектов.
Инваполис - проекты рациональных домов 13 марта 2023

ЖИЛОЙ ДОМ

ЕВРОПЕЙСКИЙ - проект удобного и стильного дома-шале с для семьи из 4-6 человек (в доме 4 спальни)

👇 Подробнее о проекте ЕВРОПЕЙСКИЙ

👇 Ещё несколько вариантов родственных ЕВРОПЕЙСКОМУ шале

Конструктор усадьбы-шале - проекты 4 дома и 3 построек.
Инваполис - проекты рациональных домов 20 ноября 2022

ХОЗПОСТРОЙКА

Домик ЗОЛОТНИК имеет площадь 29 м2 и не имеет внутри несущих стен. Распланировать его можно по-разному, в зависимости от того, чего недостаёт в доме. Он может стать баней, гостевым домиком, хозпостройкой.

👇 Больше информации о доме и его проекте

ЗОЛОТНИК 29 м2 - проект домика 5х7 для жилья или хозяйства
Инваполис - проекты рациональных домов 30 июля 2021

РАСПОЛОЖЕНИЕ НА УЧАСТКЕ

В зависимости от того, как будет использоваться хозпостройка, дома можно расположить по-разному. Ниже - два примера организации участка 25х40 метров (25 метров - минимальная ширина участка для дома ЕВРОПЕЙСКИЙ)

👇 следующая пара домов, одноэтажная усадьба в итальянском стиле

👇 Общие правила формирования усадьбы

ДОМ + ДОМИК. Как создать на участке стильную усадьбу. Правила и три примера.
Инваполис - проекты рациональных домов 5 марта 2023

► Чтобы не пропускать наши публикации, реагируйте лайком 👍, подписывайтесь на канал, пишите комментарии, тогда нейросети будут показывать нас вам чаще :)

► Получать обзоры наших проектов можно также в ТЕЛЕГРАММ-КАНАЛЕ – подписывайтесь, содержание немного расходится 😊