Добавить в корзинуПозвонить
Найти в Дзене
Филдс

Интерьер в гармонии с природой: как дизайнер оформила евродвушку 45 м² для семьи из трёх человек

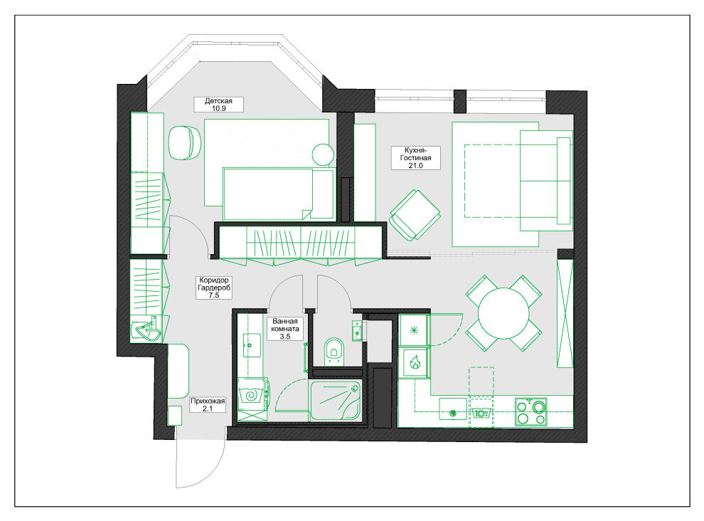
Дизайнер Татьяна Казанцева оформила евродвушку 45 м² для семьи из трёх человек. Заказчикам хотелось получить легкий интерьер, в котором можно отдохнуть и расслабиться. В качестве вдохновения использовали природные мотивы, они читаются в подборе цветов и фактур. Гостиная Гостиная по совместительству является спальней родителей. Чтобы обеспечить приватность, её отделили от кухни раздвижной перегородкой из матового стекла. Когда она открыта, пространство кухни-гостиной воспринимается единым. Благодаря паре высоких окон, в комнату попадает достаточно естественного света. Кухня-столовая Пол на кухне выложили керамогранитом с орнаментом. Гарнитур выстроили Г-образно. Всю крупную технику скрыли в пеналах, которые не видны при входе. Фартук оформили вертикальной плиткой приглушённого зелёного оттенка. Спальня Спальня предназначена для девочки-подростка. Несмотря на небольшую площадь всего в 10 м2, здесь удалось обустроить не только спальное место, но и рабочую зону, а также системы хр
Оглавление

Дизайнер Татьяна Казанцева оформила евродвушку 45 м² для семьи из трёх человек. Заказчикам хотелось получить легкий интерьер, в котором можно отдохнуть и расслабиться. В качестве вдохновения использовали природные мотивы, они читаются в подборе цветов и фактур.

  • Общая площадь: 45 м²
  • Место: Москва
  • Количество комнат: евродвушка
  • Кто здесь живет: семья из трёх человек
  • Фото: Евгений Кулибаба
  • Стиль: Александра Пыленкова
Всю квартиру поделили на три основные функциональные зоны — гостиную, детскую и кухню-столовую. Хранение организовали в прихожей. Объединённый санузел сделали раздельным. Заказчики посчитали, что так будет удобнее.
Всю квартиру поделили на три основные функциональные зоны — гостиную, детскую и кухню-столовую. Хранение организовали в прихожей. Объединённый санузел сделали раздельным. Заказчики посчитали, что так будет удобнее.

Гостиная

Гостиная по совместительству является спальней родителей. Чтобы обеспечить приватность, её отделили от кухни раздвижной перегородкой из матового стекла. Когда она открыта, пространство кухни-гостиной воспринимается единым. Благодаря паре высоких окон, в комнату попадает достаточно естественного света.

Кухня-столовая

Пол на кухне выложили керамогранитом с орнаментом. Гарнитур выстроили Г-образно. Всю крупную технику скрыли в пеналах, которые не видны при входе. Фартук оформили вертикальной плиткой приглушённого зелёного оттенка.

Спальня

Спальня предназначена для девочки-подростка. Несмотря на небольшую площадь всего в 10 м2, здесь удалось обустроить не только спальное место, но и рабочую зону, а также системы хранения.

Прихожая

В прихожей и коридоре предусмотрели нишу для встроенных шкафов, одну из секций отвели под хозблок. Вместо стандартных крючков при входе поставили деревянную вешалку-лестницу. Такое решение помогло разнообразить и индивидуализировать интерьер.

Ванная комната

После перепланировки в ванной появилась ниша, в ней разместили душевую. Напротив оборудовали постирочную — стиральную и сушильную машины поставили друг на друга. Для отделки стены за тумбой под раковину использовали ту же плитку, что и для фартука.

-6

Санузел

В санузле повторили бело-зелёную цветовую гамму. Помимо инсталляции, здесь также нашлось место и для мини-раковины. Чёрная фурнитура и сантехника создают контраст.

-7

Подпишись на канал Филдс, чтобы первым видеть новые публикации. Интересные мнения в комментариях приветствуются. Если материал понравился — ставь лайк!

Facebook, Instagram, Вконтакте