Добавить в корзинуПозвонить
Найти в Дзене

Фундамент монолитная плита. Как посчитать толщину, какое выбрать армирование. Чем нельзя пренебрегать

Продолжаем тему фундаментов индивидуальных жилых домов. В этой статье я максимально простым языком объясню как правильно запроектировать фундамент "Монолитная плита". Ремарка: регламент, описаный ниже, подходит для домов до двух этажей включительно из пенобетонных блоков или кирпича! Тип фундамента "Монолитная плита" отличается следующими качествами: 1. Маленькое удельное давление на грунт; 2. Не боится высокого уровня грунтовых вод: 3. Отличная несущая способность; 4. Относительная простота конструкции. Такой фундамент можно применять практически на всех типах грунтов, за исключением болотистых или торфяников. А проектировать плиту в данной статье будем для одноэтажного дома вот с такой планировкой: Выбор типа фундамента и его дальнейшее проектирование происходит только после того, как выполнен Архитектурный проект дома (планировки, фасады, посадка на участок) и произведены инженерно-геологические изыскания. По результатам изысканий в рассматриваемом случае, грунты, на которых

Продолжаем тему фундаментов индивидуальных жилых домов.

В этой статье я максимально простым языком объясню как правильно запроектировать фундамент "Монолитная плита". Ремарка: регламент, описаный ниже, подходит для домов до двух этажей включительно из пенобетонных блоков или кирпича!

Тип фундамента "Монолитная плита" отличается следующими качествами:

1. Маленькое удельное давление на грунт;

2. Не боится высокого уровня грунтовых вод:

3. Отличная несущая способность;

4. Относительная простота конструкции.

Такой фундамент можно применять практически на всех типах грунтов, за исключением болотистых или торфяников.

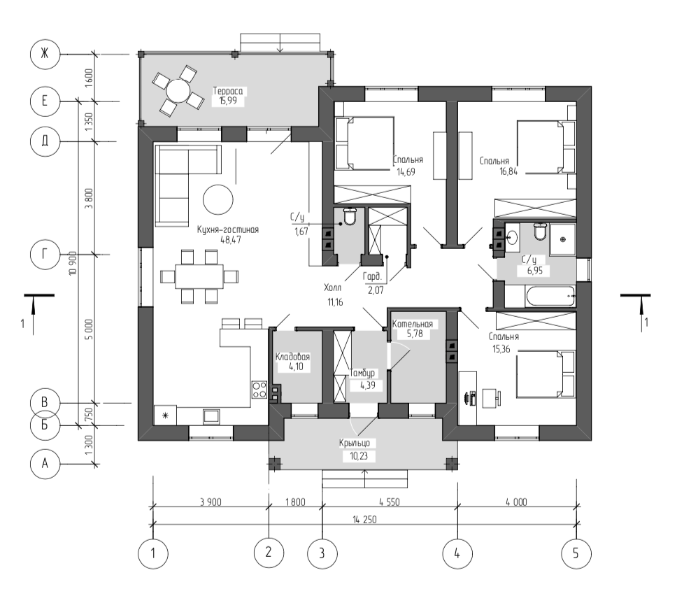
А проектировать плиту в данной статье будем для одноэтажного дома вот с такой планировкой:

Площадь объекта 160 квадратных метров
Площадь объекта 160 квадратных метров

Выбор типа фундамента и его дальнейшее проектирование происходит только после того, как выполнен Архитектурный проект дома (планировки, фасады, посадка на участок) и произведены инженерно-геологические изыскания.

По результатам изысканий в рассматриваемом случае, грунты, на которых будет стоять наш дом - суглинки с высоким уровнем грунтовых вод, а это значит, что фундамент на буронабивных сваях не подойдет, его будет подмывать.

Шаг 1. Разработка котлована, обратные засыпки

Габариты котлована должны выступать за габариты дома минимум на 2 метра с каждой стороны. Дом в осях 13,8 х 14,25 метров. Котлован выкапывается от 500 мм глубиной. Дно котлована выстилается геотекстилем, выполняется обратная засыпка скалой или песком (обязательно с послойной трамбовкой). Потом выкладываем основание плиты плотной пленкой или профилированной мембраной типа "Planter". Это нужно, чтобы при бетонировании "бетонное молочко" не уходило в грунт.

Шаг 2. Проектирование монолитной плиты

Для определения толщины плиты нужно взять максимальное расстояние от несущей до несущей стены и поделить это значение на "20". На плане несущие стены располагаются в осях 1, 3, 4 и 5. Самое большое расстояние между 1 и 3 осью - это 5.700 мм. Делим на "20" - получаем 285 мм. Полученное значение округляем до 10 мм в большую сторону. Толщина плиты в данном случае должна быть не мене 290 мм. При бетонировании использовать бетон марки М350 W4 F150.

Армирование фундамента следует производить двумя ярусами сеткой из арматуры А500С диаметром 12 мм, ячейка сетки 200 х200 мм.

Нижний ярус армирования арматурной сеткой
Нижний ярус армирования арматурной сеткой

Шаг 3. Вязка арматурных каркасов

Крепление арматурных стержней между собой нужно производить вязальной проволокой (как на фото) или точечной сваркой.

Перехлест стержней нижнего яруса должен быть не менее 60 диаметров рабочей арматуры (12 х 60 = 720 мм), а верхнего яруса не менее 40 диаметров (12 х 40 = 480 мм).

Нижняя и верхняя сетка разграничиваются между собой арматурными деталями - "лягушками".

Так выглядит "лягушка"
Так выглядит "лягушка"

При устройстве армирования необходимо соблюдать защитный слой бетона не менее 50 мм с каждой стороны плиты. Это расстояние от арматуры до края бетона в свету. ЭТО ВАЖНО!

По периметру плиты обязательно нужно выполнять усиление из П-образных элементов (П-шек).

Длинна стороны П-шки должна быть не менее 40 диаметров рабочей арматуры (480 мм). Они необходимы, чтобы связать нижнюю и верхнюю арматуру в одну рабочую систему.

Общий вид П-шки
Общий вид П-шки
Вот так устанавливаются П-шки по периметру
Вот так устанавливаются П-шки по периметру

Так же под несущие стены необходимо предусмотреть дополнительные стержни армирования в нижней арматурной сетке. ИМЕННО В НИЖНЕЙ! В верхней они не нужны, там они работать не будут!

Дополнительный стержень ставится посередине арматурной ячейки вдоль несущей стены.

Второй и четвертый стержни слева - дополнительное армирование под несущие стены
Второй и четвертый стержни слева - дополнительное армирование под несущие стены

Шаг 4. Бетонирование.

Как уже проговаривали выше - используем бетон М350 W4 F150. Надежно раскрепляем опалубку и обязательно используем глубинный вибратор - он поможет избежать воздушных пузырей в бетоне и, как следствие, образованию "раковин".

Процесс бетонирования монолитной плиты
Процесс бетонирования монолитной плиты

Через 7 дней опалубку можно смело снимать и продолжать строительство Вашего будущего дома!

Но не строит забывать, что монолитные плиты боятся подтоплений дождевыми или талыми водами. При строительстве такого типа фундамента нужно предусматривать дренажную систему. О ней я расскажу Вам в следующей статье!

Шаг 5. Подписаться на наш блог и поставить лайк этому посту

Если Вы дочитали до конца и Вам эта статья показалась полезной, то прошу Вас поставить "Лайк" или написать комментарий. Если с чем-то не согласны - тем более давайте обсудим. Если есть вопросы по проектированию или строительству, то переходите в наш Инстаграм и пишите в личные сообщения. За консультации денег не берем!

https://instagram.com/noviy_dom_ekb​ - вот ссылочка!