Добавить в корзинуПозвонить
Найти в Дзене
4living

Лондонская малометражка: дизайн квартиры площадью 45 кв.м

Studio Alexander Fehre, работая над дизайном небольшой квартиры в центре Лондона, пошли нестандартным путем – решили обыграть ее малогабаритность. В итоге получилось современное комфортное пространство в урбанистическом стиле.  Квартира Filippo площадью 45 кв. м, спроектированная студией дизайна Studio Alexander Fehre, находится всего в 15 минутах от знаменитого Тауэрского моста в центре Лондона. Это одна из тех пусть небольших, зато доступных по цене квартир, среди преимущественно переоцененной лондонской недвижимости. Обычное решение для подобных малогабаритных квартир – заставить их казаться больше, чем они есть на самом деле с помощью проверенных дизайнерских приемов. Однако здесь авторы проекта решили не увеличивать пространство визуально, а грамотно его перепланировать, подчеркнув тем самым индивидуальность квартиры. В итоге получился вполне комфортный для жизни интерьер, созданный на каких-то скромных сорока пяти метрах.  Дизайнеры поставили перед собой главную задачу – задейств
Оглавление

Studio Alexander Fehre, работая над дизайном небольшой квартиры в центре Лондона, пошли нестандартным путем – решили обыграть ее малогабаритность. В итоге получилось современное комфортное пространство в урбанистическом стиле. 

Квартира Filippo площадью 45 кв. м, спроектированная студией дизайна Studio Alexander Fehre, находится всего в 15 минутах от знаменитого Тауэрского моста в центре Лондона. Это одна из тех пусть небольших, зато доступных по цене квартир, среди преимущественно переоцененной лондонской недвижимости. Обычное решение для подобных малогабаритных квартир – заставить их казаться больше, чем они есть на самом деле с помощью проверенных дизайнерских приемов. Однако здесь авторы проекта решили не увеличивать пространство визуально, а грамотно его перепланировать, подчеркнув тем самым индивидуальность квартиры. В итоге получился вполне комфортный для жизни интерьер, созданный на каких-то скромных сорока пяти метрах. 

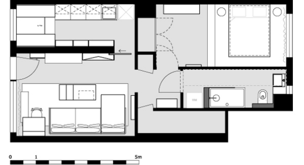
план квартиры площадью 45 кв.м.
план квартиры площадью 45 кв.м.

Дизайнеры поставили перед собой главную задачу – задействовать с пользой каждый квадратный сантиметр жилого пространства.

Кухня, гостиная и небольшой коридор были «слиты» воедино, пол в этой общей зоне был выложен паркетом черного цвета с рисунком «елочка», подчеркнув ее целостность. Глянцевое лаковое покрытие паркета подарило дополнительный драматичный эффект.
Кухня, гостиная и небольшой коридор были «слиты» воедино, пол в этой общей зоне был выложен паркетом черного цвета с рисунком «елочка», подчеркнув ее целостность. Глянцевое лаковое покрытие паркета подарило дополнительный драматичный эффект.

Кухня-столовая

Поскольку кухонное окно посажено высоко, было решено разместить столовую мебель на небольшом пьедестале. Стены украсили черно-белые обои с полукругами, выделив столовую зону в отдельное, самостоятельное пространство. Напротив минималистичной кухонной мебели без единой лишней детали дизайнеры выстроили открытую систему полок из фанеры. Стеллаж, начинаясь на кухне, продолжается в зону гостиной, тем самым объединяя эти два пространства. Одновременно предусмотрена дверь, с помощью которой кухню и гостиную можно изолировать друг от друга. 

интерьер кухни-столовой
интерьер кухни-столовой

Гостиная

Расположенный у окна стол-консоль сочетается с мебелью в зоне отдыха. Ансамбль из большого, Г-образного дивана, стола и круглого зеркала создает в гостиной атмосферу лаунж-пространства. 

интерьер гостиной
интерьер гостиной

Спальня

На платформу была установлена кровать – тем самым дизайнерам удалось структурировать комнату и упростить доступ к окну. Стены в комнате выкрашены в темный пурпур, эффектно контрастирующий с белым подвесным стеллажом. 

интерьер спальни
интерьер спальни

Ванная комната

В комнате нашлось место для довольно обширной душевой кабины, которая была гармонично, без швов встроена в отведенную для нее зону. Пол был покрыт винилом. Для одной стены, от входа до самой раковины, наклеены обои в экостиле, ставшие узнаваемым элементом интерьера. 

интерьер санузла
интерьер санузла

Таким образом, созданный дизайнерами Studio Alexander Fehre интерьер лондонской квартиры Filippo доказал, что при грамотном подходе сорока пяти квадратных метров достаточно для того, чтобы вести современный и комфортный образ жизни в условиях прогрессирующей урбанизации.