Найти в Дзене

Дизайн-Проект квартиры 87 м2 в Сочи из объединенных 2-х, одно- и двух- комнатных. Белые тона

Даже после объединения получается такая небольшая площадь для одной семьи. Но в данном случае 2 родителей и 3 детей + наездами бабушки с дедушками и прочие любимые родственники из Перми) Во такая конфигурация стен до перепланировки. И такая после: По бокам от входа в нишах, чтобы не мешаться в интерьере - расположены обувницы и место где можно кинуть ключи с телефоном и ключами от авто. Удобно получилась уборная на входе с душевой. без излишеств и функционально. Слева друг на против друга мега вместительная гардеробная, в которой показал велосипед. А в ванной обязательным было требование - стиральная машина и 2-ой унитаз, ведь число жителей зашкаливает. Спальни не велики, но в них не будет шкафов и поэтому в принципе свободно. Коридор старался сделать минимальным. Верхняя спальня с раздвижной дверью. Поэтому в открытом положении ещё площадь коридора будет добавляться. Кухня со столовой и гостиной около 25 м2. Влезло всё. Хочу также сказать, что в квартире 2 балкона будет. Смотрим кухня
Оглавление

Даже после объединения получается такая небольшая площадь для одной семьи. Но в данном случае 2 родителей и 3 детей + наездами бабушки с дедушками и прочие любимые родственники из Перми)

-2

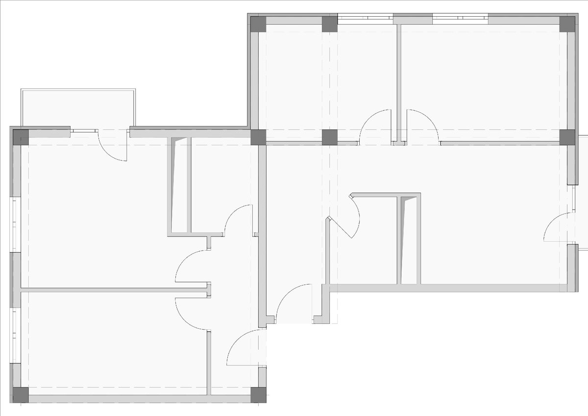
Во такая конфигурация стен до перепланировки.

И такая после:

-3

По бокам от входа в нишах, чтобы не мешаться в интерьере - расположены обувницы и место где можно кинуть ключи с телефоном и ключами от авто.

Удобно получилась уборная на входе с душевой. без излишеств и функционально.

Слева друг на против друга мега вместительная гардеробная, в которой показал велосипед. А в ванной обязательным было требование - стиральная машина и 2-ой унитаз, ведь число жителей зашкаливает.

Спальни не велики, но в них не будет шкафов и поэтому в принципе свободно.

Коридор старался сделать минимальным.

Верхняя спальня с раздвижной дверью. Поэтому в открытом положении ещё площадь коридора будет добавляться.

Кухня со столовой и гостиной около 25 м2. Влезло всё.

Хочу также сказать, что в квартире 2 балкона будет.

Смотрим кухня со столовой и гостиной с доступом на балкон:

Далее родительская спальня:

Просто спальня:

Детская:

Ванная:

Уборная с душевой:

На подходе, друзья, дизайн-проект частного дома в г. Сочи. Посмотрим?)