Найти в Дзене

Выбор кондиционеров для квартиры 104 кв.м.

Экстремальная жара в московском регионе вроде бы прошла, но это не означает, что кондиционирование воздуха больше не актуально. Как выбрать кондиционер, какую модель, как им управлять - об этом мы и расскажем в данной публикации. Вместо вступления Раньше говорили так: "... да эти кондиционеры тебе понадобятся всего только 10 дней в году", но времена изменились. То ли глобальное потепление действительно наступает, то ли стало хотеться больше комфорта. Но лично я активно пользуюсь кондиционерами на охлаждение летом и на нагрев в межсезонье (осень/весна), пока отопление не выйдет на нормальный режим. Всегда было два безусловных лидера среди производителей сплит-систем - это Daikin и Mitsubishi Electric. Но с Daikin что-то не то стало после Чемпионата Мира по футболу 2018 года (какая-то мутная история с ФСБ), да и просто контакты мои с ними растерялись. Остается Мицубиси. Хорошо, что тут все хорошо. Как выбрать кондиционер для квартиры? Расскажу на своем примере. Квартира "с головой" -

Экстремальная жара в московском регионе вроде бы прошла, но это не означает, что кондиционирование воздуха больше не актуально. Как выбрать кондиционер, какую модель, как им управлять - об этом мы и расскажем в данной публикации.

Вместо вступления

Раньше говорили так: "... да эти кондиционеры тебе понадобятся всего только 10 дней в году", но времена изменились. То ли глобальное потепление действительно наступает, то ли стало хотеться больше комфорта. Но лично я активно пользуюсь кондиционерами на охлаждение летом и на нагрев в межсезонье (осень/весна), пока отопление не выйдет на нормальный режим.

Два лидера рынка бытовых кондиционеров (мой собственный рейтинг).
Два лидера рынка бытовых кондиционеров (мой собственный рейтинг).

Всегда было два безусловных лидера среди производителей сплит-систем - это Daikin и Mitsubishi Electric. Но с Daikin что-то не то стало после Чемпионата Мира по футболу 2018 года (какая-то мутная история с ФСБ), да и просто контакты мои с ними растерялись. Остается Мицубиси. Хорошо, что тут все хорошо.

Как выбрать кондиционер для квартиры?

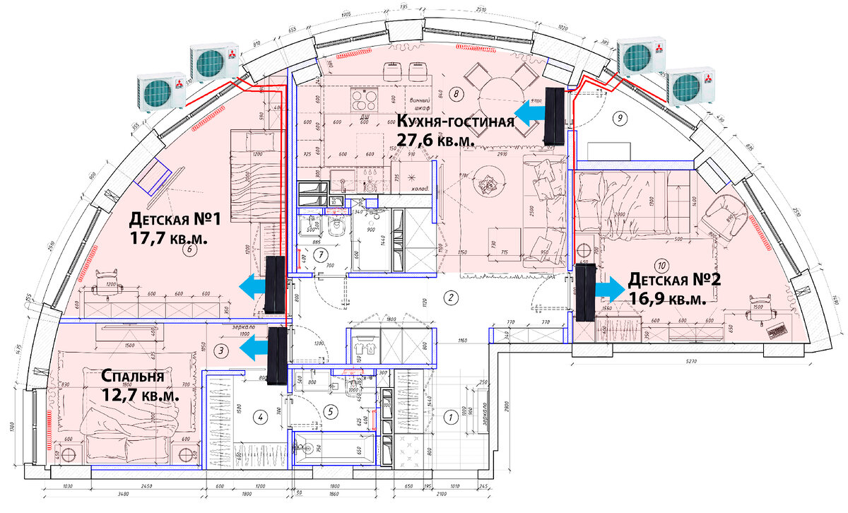
Расскажу на своем примере. Квартира "с головой" - это новостройка (103.9 кв.м.), полукруглой формы с масштабным остеклением. И еще солнце весь день идет вдоль всех окон. Жизнь без кондиционеров - это не вариант.

Схема расположения внутренних и наружных блоков кондиционеров в квартире.
Схема расположения внутренних и наружных блоков кондиционеров в квартире.

Три из четырех помещений, которые мне предстоит охлаждать, имеют площадь, меньше 20 кв.м. Это означает, что для них подойдет модель внутреннего блока сплит-системы мощностью 2,5 кВт по холодопроизводительности. Для кухни-гостиной нужно более мощную модель - на 3,5 кВт.

Для совсем небольших помещений можно подбирать менее мощный внутренний блок, например, на 2 кВт, но, в большинстве случаев, 2,5 кВт - это самый лучший выбор, который закроет собой 80% вариантов.

3D-модель квартиры в программе SketchUp.
3D-модель квартиры в программе SketchUp.

По уму, конечно, можно считать теплопоступления по помещениям: сколько людей, бытовые источники тепла, инсоляция (поступление тепла через окна) и т.д., но на практике чаще всего используется модель на 2,5 кВт, даже в помещениях до 20 кв.м. площадью. Разница в цене между 2 кВт и 2,5 кВт будет минимальная, а всегда лучше иметь небольшой запас по мощности.

3D-модель квартиры в программе SketchUp.
3D-модель квартиры в программе SketchUp.

Какие навороты могут пригодиться?

Возьмите любого производителя кондиционеров и вы найдёте в их рекламных брошюрах рассказы о том, какое "волшебное напыление" используется в сплит-системах, а также какие выводы об этом сделали "британские ученые" (*те же самые учёные, что следили за жителями деревень Вилларибо и Виллабаджо).

Тут надо смотреть между строк: где голый маркетинг, а где за этим что-то есть. Вот, например, если в кондиционере есть встроенный датчик движения/присутствия, это очень правильная вещь. Если вы не хотите простудиться, датчик будет вас видеть и направит потоки холодного воздуха в другую сторону.

Встроенный тепловизор (датчик присутствия) «3D I-SEE».
Встроенный тепловизор (датчик присутствия) «3D I-SEE».

Кроме того, у сплитов Мицубиси такой датчик умеет считывать общее распределение температуры воздуха в помещении. Таким образом кондиционер сможет создать комфортные условия по помещению более равномерно распределенные.

Двойные разделенные нижние ламели и датчик присутствия наиболее оптимальным образом распределяют воздушные потоки в помещении.
Двойные разделенные нижние ламели и датчик присутствия наиболее оптимальным образом распределяют воздушные потоки в помещении.

Ещё стоит обратить внимание на систему очистки воздуха, предлагаемую производителем кондиционера. Вы удивитесь, сколько грязи и пыли будет скапливаться на фильтрах сплит-системы, если вы живёте в городе и открываете окна.

Как управлять кондиционером?

Как было раньше всегда? Кондиционером дома можно было управлять с пульта (переносного или настенного). Дёшево и сердито.

Плохо только то, что кондиционер узнавал о текущей температуре воздуха в помещении от пульта, который, в свою очередь, измерял её ровно в том месте, где он сам находился.

Положите пульт от кондиционера рядом с выбросом горячего воздуха от системного блока компьютера, например, и кондиционер устанет поливать вас холодным воздухом, даже если в комнате в целом нормальная температура. Потому что он будет думать, что в помещении слишком жарко.

Или есть ещё ситуация в офисах, с которой мне приходилось сталкиваться: настенный термостат управления кондиционером располагают рядом с копировальной техникой. От этой техники идёт сильный поток горячего воздуха, который попадает на пульт, и система кондиционирования "сходит с ума", подавая максимум холода во все помещения офиса.

Про это просто нужно помнить. Так как измеряемая пультом температура воздуха возле стены и, например, там, где человек работает или спит, может отличаться легко на пару градусов. А управление своей работой кондиционер выстраивает, отталкиваясь от измерений температуры от пульта.

Принципиальная схема интеграции кондиционера в систему автоматизации KNX.
Принципиальная схема интеграции кондиционера в систему автоматизации KNX.

В моем случае в квартире будет применена система автоматизации KNX, где в каждом помещении с кондиционером будет установлен отдельный потолочный датчик присутствия ESYLUX KNX ATMO O, который помимо фиксации движения людей и управления освещением имеет ряд интересных функций для климат-контроля.

Мульти-датчик присутствия ESYLUX ATMO O.
Мульти-датчик присутствия ESYLUX ATMO O.

Этот датчик постоянно измеряет температуру воздуха в рабочей зоне, относительную влажность и качество внутреннего воздуха VOC. Все снятые параметры воздуха передаются в систему автоматизации, откуда кондиционеры получают команду, как и в каком режиме им работать.

Если системы автоматизации нет и делать её вы не планируете, обратите внимание на возможность управления кондиционерами через wi-fi и приложение на телефоне. Это пригодится, чтобы дистанционно включать/выключать сплит-системы. В бытовых сериях кондиционеров Mitsubishi Electric эта функция называется MEL Cloud.

-9

Что кондиционеры не умеют?

Кондиционеры работают с внутренним воздухом: охлаждают, нагревается, фильтруют. Они не подают свежий воздух с улицы в помещение. В качестве исключения стоит отметить, что есть такие модели, но это все равно, что во время ливня прикрывать спину носовым платком. Хотите свежий воздух? Делайте отдельную систему приточно-вытяжной вентиляции, тогда это будет работать. Все остальное - компромиссы.

Нужно ещё отметить, что кондиционер будет охлаждать воздух только в том помещении, где он установлен. Например, если у вас кондиционер установлен в комнате, а её связывает с коридором большой открытый проем, то прохладно будет только в комнате. Перетекания холодного воздуха в коридор будут минимальны, вы их не почувствуете. Это нужно осознать сразу и не рассчитывать, что с помощью одного сплита вы охладите несколько помещений. Чудес не бывает.

Нюансы монтажа

Здесь я отмечу только два момента: размещение наружного блока и вопрос отвода конденсата.

Штатные места для наружных блоков кондиционеров в ЖК "9-18".
Штатные места для наружных блоков кондиционеров в ЖК "9-18".

В квартале "9-18" застройщик и архитекторы заранее предусмотрели места для установки наружных блоков кондиционеров. В принципе, двух таких "корзин" хватает с головой для размещения 4-х наружных блоков. На самом деле, вопрос - "где расположить внешний блок кондиционера?" может доставить владельцу квартиры массу головной боли, если штатного места нет.

Я видел ситуации и с судами, когда владельцы квартир занимались самодеятельностью и вешали блоки кондиционеров против требований управляющей компании. Лучше, конечно, когда конструктив вашего дома предусматривает специальные места для установки наружных блоков.

Теперь, что касается отвода конденсата. Поливать конденсатом прохожим на голову - это плохое решение. Хорошее решение - отводить конденсат в канализацию. В "9-18" возле мест расположения наружных блоков кондиционеров изнутри квартир застройщик предусмотрел встроенные в стены стояки канализации, которые собирают конденсат от кондиционеров. И так по каждой секции.

Единственное, в чем застройщик промахнулся - это отвод от стояка сделан слишком высоко (так он бесполезен). Придется опускаться вниз и штробить до стояка на уровне подоконника.
Единственное, в чем застройщик промахнулся - это отвод от стояка сделан слишком высоко (так он бесполезен). Придется опускаться вниз и штробить до стояка на уровне подоконника.

Если такой возможности у вас нет, то придется ставить помпу и прокачивать конденсат до санузлов, где проходят штатные стояки канализации. Но вариант с помпой менее привлекательный, его нужно использовать тогда, когда другого выхода нет.

Трассы фреонопроводов и отвод конденсата в детской комнате.
Трассы фреонопроводов и отвод конденсата в детской комнате.

Сколько сегодня стоят кондиционеры?

Цена - это всегда больной вопрос. Наверное, все столкнулись этим летом с повышением цен практически во всем, в чем только можно было. Что касается прайс-листа на кондиционеры Mitsubishi Electric, то когда я пишу этот пост (24.07) актуальным еще считается прайс-лист от апреля 2021 года.

В этом файле по ссылке выше уже указаны цены со скидкой, т.е. по этим ценам я смогу вам поставить продукцию Мицубиси Электрик. Считаю, что если вы выбираете кондиционер, имеет смысл изучить каталог компании.

Если вы не хотите сами разбираться в технических нюансах или затрудняетесь с подбором модели сплит-системы под ваш проект, напишите нам в whatsapp и наши инженеры помогут подобрать правильную модель. У нас также есть свои проектировщики и монтажники. Так что, можем предоставить полный пакет услуг "под ключ".