Найти в Дзене
Smart-1

Что такое Master-Slave у датчиков движения?

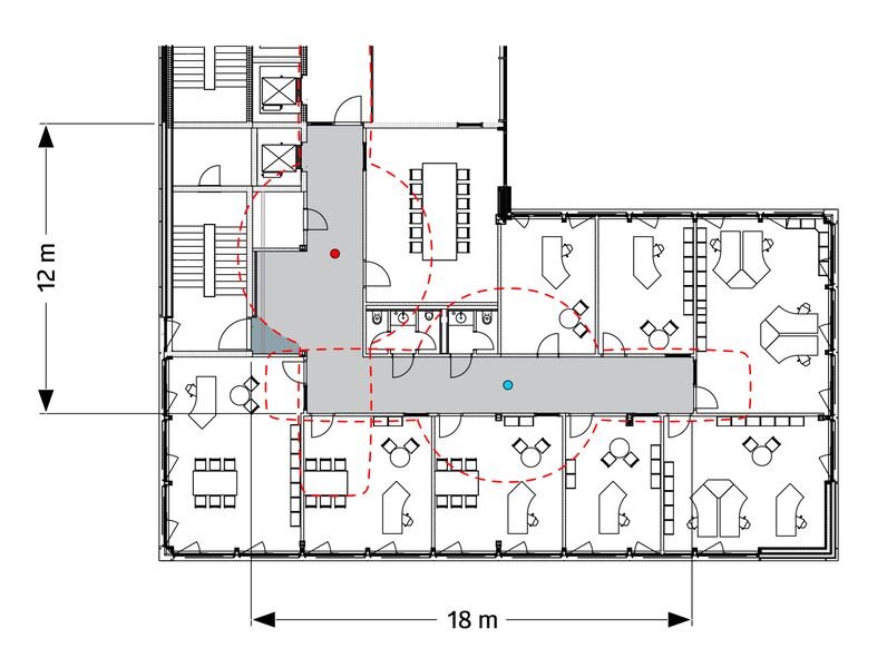
MASTER & SLAVE переводится как «ВЕДУЩИЙ - ВЕДОМЫЙ». То есть в схеме подключения один датчик является ведущим, а остальные, подключенные к главному – ведомыми. Такую схему подключения используют для автоматизации помещений с большой площадью или для управления одной нагрузкой с большим количеством светильников на длинных расстояниях, в коридорах с поворотами или на складах. Устанавливается один датчик MASTER, у которого есть все необходимые функции и несколько датчиков SLAVE. В схеме MASTER & SLAVE ведущее устройство – «капитан на корабле». К нему подключаются светильники, на нем выставляется задержка отключения и освещенность. Конечные действия принимает только он, ведомые лишь посылают импульс главному датчику по специальному каналу (проводу). Комбинация MASTER и SLAVE-устройств расширяет зону действия ведущего датчика. Это удобно, например, для управления длинной группой светильников. Датчики SLAVE дешевле датчиков MASTER, примерно на 20%, а внешне не отличаются. Поэтому, если для

MASTER & SLAVE переводится как «ВЕДУЩИЙ - ВЕДОМЫЙ». То есть в схеме подключения один датчик является ведущим, а остальные, подключенные к главному – ведомыми.

Такую схему подключения используют для автоматизации помещений с большой площадью или для управления одной нагрузкой с большим количеством светильников на длинных расстояниях, в коридорах с поворотами или на складах.

-2

Устанавливается один датчик MASTER, у которого есть все необходимые функции и несколько датчиков SLAVE. В схеме MASTER & SLAVE ведущее устройство – «капитан на корабле». К нему подключаются светильники, на нем выставляется задержка отключения и освещенность. Конечные действия принимает только он, ведомые лишь посылают импульс главному датчику по специальному каналу (проводу).

Комбинация MASTER и SLAVE-устройств расширяет зону действия ведущего датчика. Это удобно, например, для управления длинной группой светильников.

Датчики SLAVE дешевле датчиков MASTER, примерно на 20%, а внешне не отличаются. Поэтому, если для управления одной группой света необходимо несколько датчиков, то для экономии лучше взять один MASTER и несколько SLAVE.

Кроме экономии важная особенность системы с ведущими и ведомыми элементами – согласованность. Использование двух и более MASTER -устройств в датчиках присутствия может привести к рассогласованности или неправильной работе системы.