Найти в Дзене
Не только Стройка

Маленький, но удобный туристический домик

Дом 28 м2 размером 7*4 метра Мы строим дом для небольшого туристического кемпинга или турбазы, по-разному можно это назвать По вашему запросу мы можем спроектировать и построить дом абсолютно любой конфигурации для ваших гостей. Вот такой опыт у нас имеется Мы можем показать вам спроектированные и выполненные домики 28, 40 и 60 м2 Такие домики очень быстро окупаются. Можно строить одновременно до 20 домов! Очень хороший и прибыльный бизнес. Не знаете, куда вложить деньги, но имеете участок на берегу озера или речки? Это идея для вас! А мы поможем построить вам прекрасный и очень привлекательный домик Интересно узнать подробности? Ставьте плюсик в комментариях

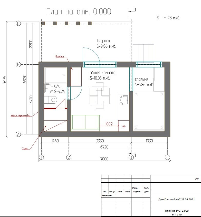
Дом 28 м2 размером 7*4 метра

Мы строим дом для небольшого туристического кемпинга или турбазы, по-разному можно это назвать

По вашему запросу мы можем спроектировать и построить дом абсолютно любой конфигурации для ваших гостей. Вот такой опыт у нас имеется

Мы можем показать вам спроектированные и выполненные домики 28, 40 и 60 м2

Такие домики очень быстро окупаются. Можно строить одновременно до 20 домов! Очень хороший и прибыльный бизнес.

Не знаете, куда вложить деньги, но имеете участок на берегу озера или речки? Это идея для вас! А мы поможем построить вам прекрасный и очень привлекательный домик

Интересно узнать подробности? Ставьте плюсик в комментариях

-2
-3
-4
-5
-6
-7
-8
-9
-10