Добавить в корзинуПозвонить
Найти в Дзене
Филдс

Дизайнер оформил студию 42 м² с чёрной кухней и бетонным потолком для своего друга

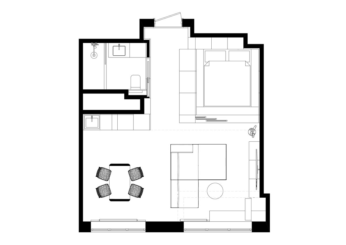
Дизайнер Никита Ковалев, основатель студии Kovalev & Partners, оформил квартиру 42 м² для своего друга. Помещение имеет статус апартаментов и сдавалось без каких-либо внутренних перегородок. Гостиная Стены в комнате покрыли светло-серой краской, а на пол положили инженерную доску. Потолок от застройщика сохранил свой первоначальный вид. Бледно-зелёный угловой диван определил границы гостиной. Напротив него разместили ТВ-зону, тумбу сделали подвесной, что визуально облегчило интерьер. Кухня Кухонный гарнитур «упаковали» в бокс. Несмотря на небольшие габариты, он оказался довольно вместительным за счёт антресольных шкафов. Холодильник выбрали встроенный. Фартук сделали из зеркального стекла. Спальня Небольшая площадь комнаты позволила вместить систему хранения, её оборудовали в нише в изголовье кровати. Со стороны спальни открываются лишь центральные секции, фасады справа скрывают колонну, а слева — являются торцом ниши в прихожей. Мягкое изголовье обеспечивает дополнительный к
Оглавление

Дизайнер Никита Ковалев, основатель студии Kovalev & Partners, оформил квартиру 42 м² для своего друга. Помещение имеет статус апартаментов и сдавалось без каких-либо внутренних перегородок.

  • Общая площадь: 42 м²
  • Место: Москва
  • Количество комнат: студия
  • Бюджет: 4,5 млн рублей
  • Кто здесь живет: молодой человек
  • Дизайнер: Никита Ковалев (Kovalev & Partners)
  • Фото: Дина Александрова

Гостиная

Стены в комнате покрыли светло-серой краской, а на пол положили инженерную доску. Потолок от застройщика сохранил свой первоначальный вид. Бледно-зелёный угловой диван определил границы гостиной. Напротив него разместили ТВ-зону, тумбу сделали подвесной, что визуально облегчило интерьер.

Кухня

Кухонный гарнитур «упаковали» в бокс. Несмотря на небольшие габариты, он оказался довольно вместительным за счёт антресольных шкафов. Холодильник выбрали встроенный. Фартук сделали из зеркального стекла.

Спальня

Небольшая площадь комнаты позволила вместить систему хранения, её оборудовали в нише в изголовье кровати. Со стороны спальни открываются лишь центральные секции, фасады справа скрывают колонну, а слева — являются торцом ниши в прихожей. Мягкое изголовье обеспечивает дополнительный комфорт.

Прихожая

Основные системы хранения разместили в прихожей. Это серия шкафов, которые служат перегородкой со спальней. В нише в противоположной стене обустроили выставочную секцию для коллекционных кроссовок с мини-баром под ней.

Санузел

В санузле скомбинировали два вида плитки и широкоформатный керамогранит. Ярким акцентом стала изумрудная стена в душевой зоне. Стиральную машину поместили в пенал рядом с раковиной. Вся корпусная мебель чёрная, это идейно связало ванную с другими комнатами.

Подпишись на канал Филдс, чтобы первым видеть новые публикации. Интересные мнения в комментариях приветствуются. Если материал понравился — ставь лайк!

Facebook, Instagram, Вконтакте