Найти в Дзене
Вячеслав

Строительная засада, которая может ожидать вас при покупке новой квартиры.

Причём класс жилья неважен. Я такое видел и в бизнес, и в массовом сегменте. 1. Вентблоки. Сначала немного теории, знакомой многим. У каждого из нас дома есть вентблоки. Это вентиляционные шахты, обеспечивающие удаление воздуха из санузлов и кухонь естественной тягой на кровлю. Мы настолько к ним привыкли, что даже не замечаем, насколько это простое и гениальное инженерное решение. 2. Строители начали экономить Каким же образом? А очень просто: они не строят внутри квартир перегородок. Типа, свободное пространство, творите, что хотите. Что им это даёт? Все просто, то, что они представляют как инновацию, всего лишь способ экономии. Чем чревато? В квартире отсутствуют вентблоки. Т.е. в квартире нет естественной вытяжки с мест, где могут образовываться неприятные запахи. Как это допускают надзорные органы? Допускают. Согласно нормативных документов, квартира без внутренних перегородок представляет собой единое помещение. Строителям достаточно сделать на фасаде решётку для притока и ды
Оглавление

Причём класс жилья неважен. Я такое видел и в бизнес, и в массовом сегменте.

1. Вентблоки.

Сначала немного теории, знакомой многим. У каждого из нас дома есть вентблоки. Это вентиляционные шахты, обеспечивающие удаление воздуха из санузлов и кухонь естественной тягой на кровлю. Мы настолько к ним привыкли, что даже не замечаем, насколько это простое и гениальное инженерное решение.

2. Строители начали экономить

Каким же образом? А очень просто: они не строят внутри квартир перегородок. Типа, свободное пространство, творите, что хотите.

Что им это даёт? Все просто, то, что они представляют как инновацию, всего лишь способ экономии.

Чем чревато? В квартире отсутствуют вентблоки. Т.е. в квартире нет естественной вытяжки с мест, где могут образовываться неприятные запахи.

Как это допускают надзорные органы?

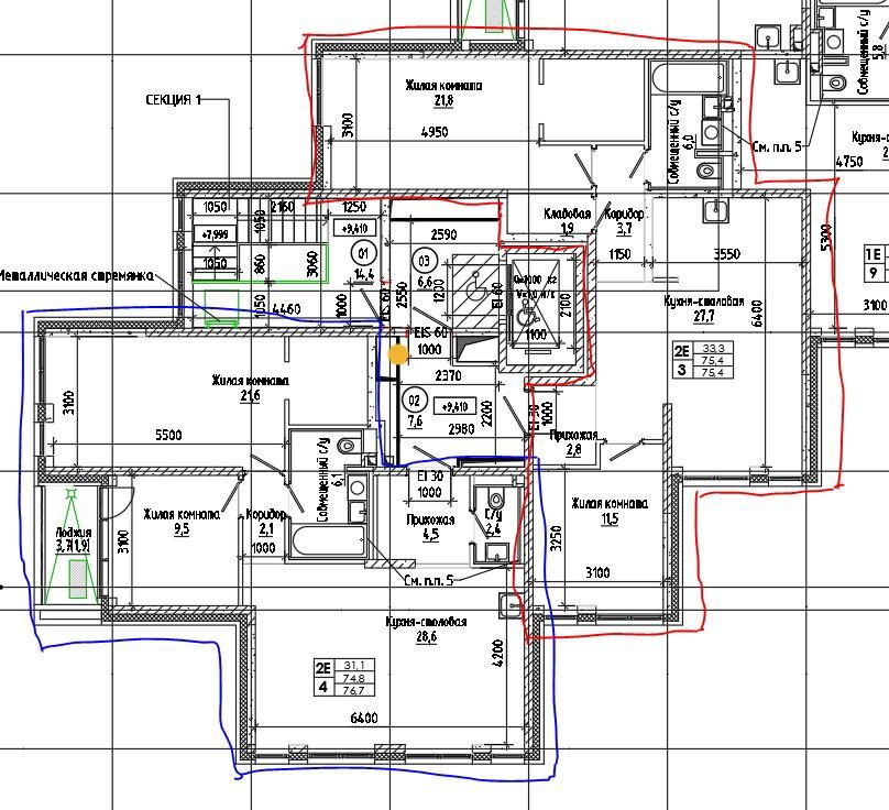
Допускают. Согласно нормативных документов, квартира без внутренних перегородок представляет собой единое помещение. Строителям достаточно сделать на фасаде решётку для притока и дыру в общий коридор для вытяжки (см. рис).

Это обычная планировка. Квартиры выделены красным и синим, вентблоки - жёлтым. Да, они занимают достаточно большую площадь, но у хозяина не болит голова о плесени, сырости и неприятных запахах.
Это обычная планировка. Квартиры выделены красным и синим, вентблоки - жёлтым. Да, они занимают достаточно большую площадь, но у хозяина не болит голова о плесени, сырости и неприятных запахах.
Строительное ноу-хау. Жёлтым выделен общий вентблок, куда владельцам квартир придётся тянуть воздуховоды. Особенно 'удобно' тянуть из кухни и второго санузла. Сэкономили на площади? Заплатите высотой потолков и электроэнергией!
Строительное ноу-хау. Жёлтым выделен общий вентблок, куда владельцам квартир придётся тянуть воздуховоды. Особенно 'удобно' тянуть из кухни и второго санузла. Сэкономили на площади? Заплатите высотой потолков и электроэнергией!

К чему может это привести?

Человек, купив такую квартиру, вовсе не обязан быть специалистом по вентиляции. Он может даже и не подозревать, что у него нет вентблоков.

Человек делает ремонт, вселяется после ремонта и начинается...

Из-за отсутствия вентиляции на кухне постоянно будут присутствовать неприятные запахи, отложения на потолке и прочие радости жизни.

Да, можно открывать окно, проветривать. Но когда на улице холодно? А в санузлах что делать? Там проветривать можно будет только путем открытия двери и распространения запахов по всей квартире. Красота да и только!

Но и это ещё не все! В местах с повышенной влажностью при отсутствии вентиляции что появляется? Правильно! Плесень с грибками!

Что же делать, если вы приобрели (хотите приобрести) такую квартиру?

Не отчаивайтесь! Придётся провести дополнительные работы. Прежде всего определитесь с планировкой. Потом обратитесь в контору, проектирующую вентиляцию. Сколько стоит - зависит от города, наглости проектировщиков, ваших финансовых возможностей.

Приточную вентиляцию делать не обязательно, иначе, помимо воздуховодов и вентилятора, придется ставить, как минимум, воздухонагреватель. А вот на вытяжку очень рекомендую раскошелиться. Да, вам придётся обустраивать принудительную вытяжную вентиляцию. Это воздуховоды, вентилятор и прочее. Будет съедено некоторое пространство под потолком. Вы будете платить за электроэнергию на вентилятор. Это все дело надо будет ещё и обслуживать. Да, и очень маловероятно, что без вентилятора будет обеспечиваться нужная тяга в этих воздуховодах.

Да, пока не купили, не забудьте про статью!

На моем канале есть ещё пара полезных советов как по квартире, так и по выбору авто.

Вам понравилась статья? Не забудьте подписаться на канал.