Найти в Дзене
Войти
Павел Липенцов
12 подписчиков
Подписаться
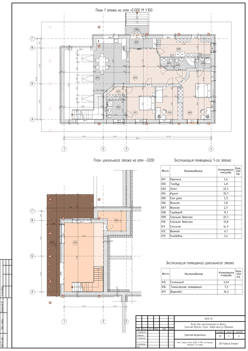
Проект и планировка одноэтажного дома 225 кв.м с цокольным этажом в стиле шале на участке со склоном или оврагом
7 июля 2021
7 июл 2021
18
...
Читать далее
1
2