Найти в Дзене

Одноэтажный каркасный дом с мансардным этажом 74 кв.м. Проекты домов Кейль Строй.

Приветствую вас дорогие подписчики и друзья! Сегодня у меня на обзоре один из наших свежих проектов. Это одноэтажный, каркасный дом с мансардным этажом общей площадью 74,6 кв. м. Планировка На первом этаже у нас спальня (9,38) соседствует с кабинетом (7,24), так что если планируете зарыться в документах на ночь, то потом будет не далеко идти до кровати, заскочив по пути в душ (2,24). Большая гостиная (21,84), где можно разместись гостей даже с ночёвкой, а горячий ужин для общего стола не успеет остыть, пока вы несёте его с кухни (8,78). Терраса и зона отдыха на мансардном этаже — то, за что нам больше всего нравится этот проект! Получился такой небольшой дом, в котором каждый сохранит своё личное пространство. Общая площадь: 74,6 кв. м.
Жилая площадь: 63 кв. м.
Количество комнат: 4
Стоимость: от 2,4 млн руб. (+фундамент) Понравился домик? Лично мне очень нравится этот проект, получился такой компактный, уютный домик для небольшой семьи. Можем построить как по каркасной технологии, так
Оглавление

Приветствую вас дорогие подписчики и друзья! Сегодня у меня на обзоре один из наших свежих проектов. Это одноэтажный, каркасный дом с мансардным этажом общей площадью 74,6 кв. м.

Планировка

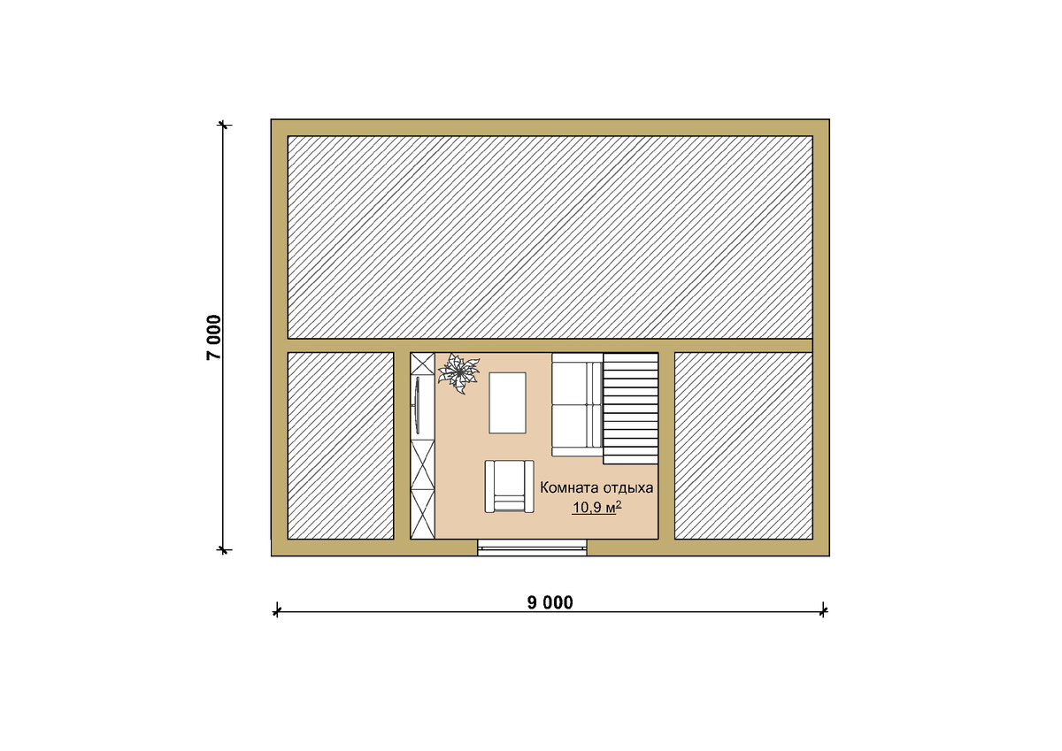
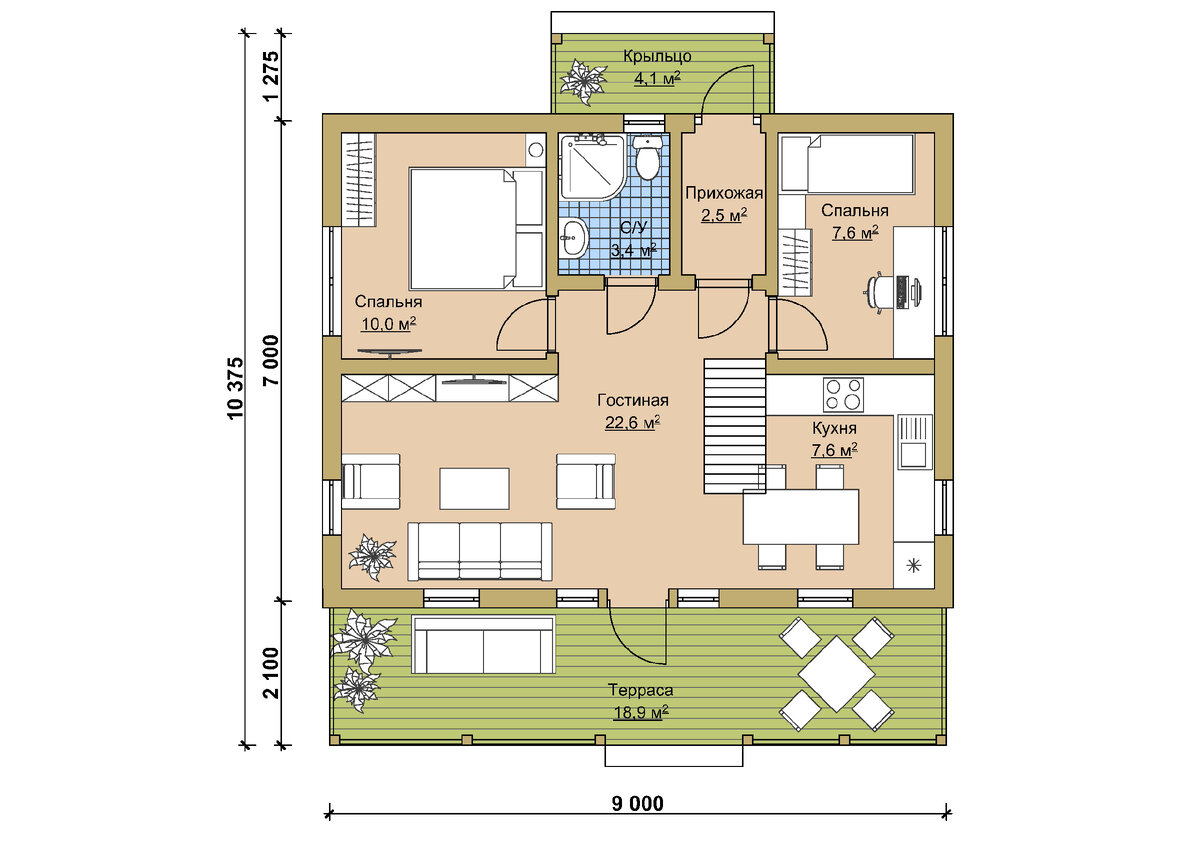
На первом этаже у нас спальня (9,38) соседствует с кабинетом (7,24), так что если планируете зарыться в документах на ночь, то потом будет не далеко идти до кровати, заскочив по пути в душ (2,24).

Большая гостиная (21,84), где можно разместись гостей даже с ночёвкой, а горячий ужин для общего стола не успеет остыть, пока вы несёте его с кухни (8,78).

Терраса и зона отдыха на мансардном этаже — то, за что нам больше всего нравится этот проект! Получился такой небольшой дом, в котором каждый сохранит своё личное пространство.

Общая площадь: 74,6 кв. м.
Жилая площадь: 63 кв. м.
Количество комнат: 4
Стоимость: от 2,4 млн руб. (+фундамент)

Понравился домик?

Лично мне очень нравится этот проект, получился такой компактный, уютный домик для небольшой семьи. Можем построить как по каркасной технологии, так и из газобетона.

Более подробно о проекте можете посмотреть на нашем сайте по ссылке.

Для заказа геологии, расчета сметы или разработки проекта — звоните по телефону +7 921 964 09 18 (WhatsApp). Мы работаем в Ленинградской и Московской областях.

Ну а на сегодня наш обзор подошел к концу. Спасибо вам, что дочитали до конца и увидимся в следующих статьях. Пока!