Добавить в корзинуПозвонить
Найти в Дзене

Проект "Лучистый 177"

Комфортный дом из автоклавного газобетона с мансардным этажом, пристроенным гаражом на одну машину и вторым светом Видео-обзор на youtube: Планировка с расстановкой мебели. Первый этаж: Крупнее: https://yadi.sk/i/esiUAplhHrFwNQ Второй этаж Крупнее: https://yadi.sk/i/js6xXyL-tDf3Jw Состав помещений дома: 1-й этаж: Прихожая - 7,5 м2 Холл - 6,9 м2 Спальня - 11,9 м2 Ванна - 6,3 м2 Кухня - 18,7 м2 Гостиная - 33,1 м2 Гараж - 32,9 м2 Итого: 2-й этаж: Коридор - 8,9 м2 Спальня родителей - 11,9 м2 Гардероб в спальне родителей - 4,2 м2 Санузел в спальне родителей - 4,3 м2 Детская справа на плане - 11,9 м2 Детская слева на плане - 10,6 м2 Санузел между детскими - 4,7 м2 Площадь второго света - 21 м2 Терраса на крыше гаража - 33,2 м2 И немного конструктива: Армирование перекрытия с консольным балконом Крупнее: https://yadi.sk/i/lKp5WYLCnH1X8Q Крупнее: https://yadi.sk/i/BVpNf1TMVeAwvw Разрез крыши: Крупнее: https://yadi.sk/i/xIbYOHLP66u7CA Узлы крыши: Крупнее: https://yadi.sk/i/TyQkuZGSxZupWw

Комфортный дом из автоклавного газобетона с мансардным этажом, пристроенным гаражом на одну машину и вторым светом

Видео-обзор на youtube:

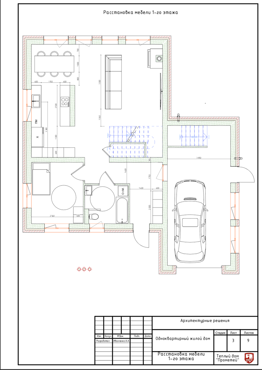
Планировка с расстановкой мебели. Первый этаж:

Первый этаж проекта "Лучистый 177"
Первый этаж проекта "Лучистый 177"

Крупнее: https://yadi.sk/i/esiUAplhHrFwNQ

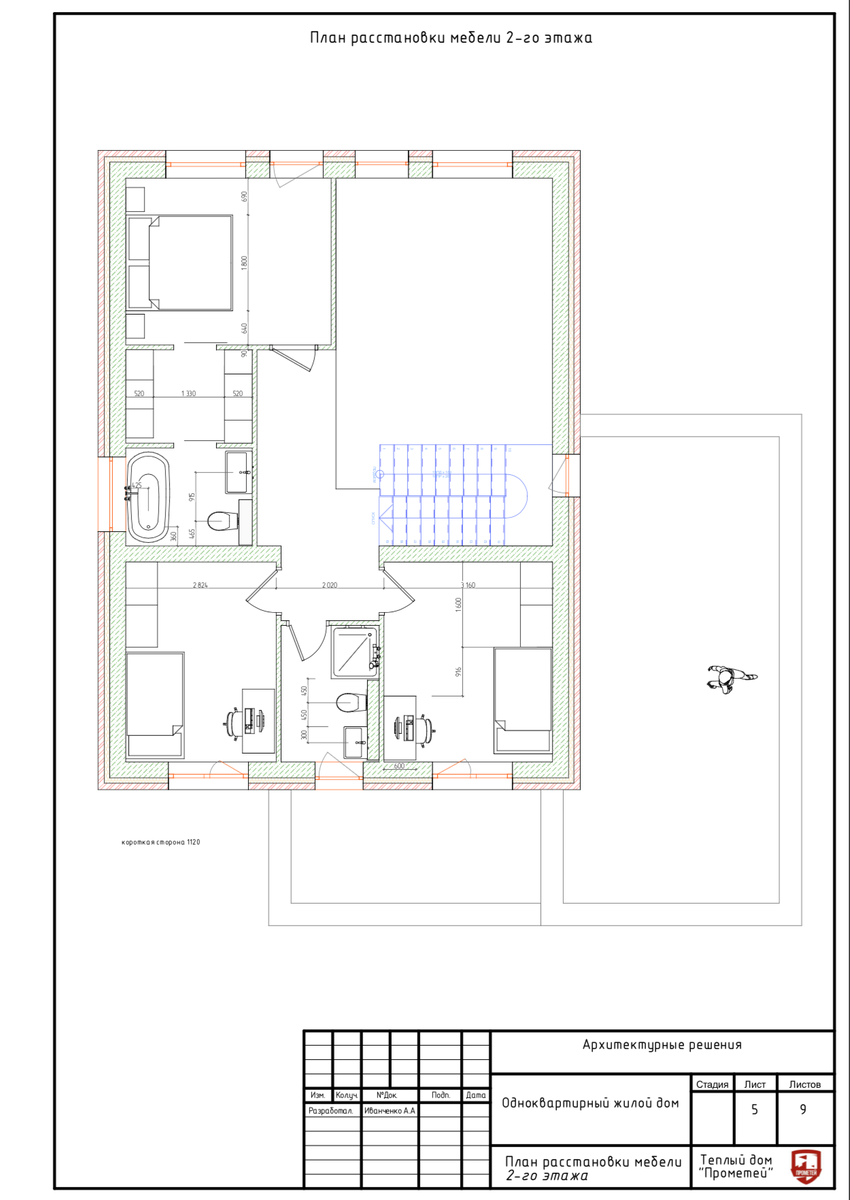
Второй этаж

Второй этаж проекта "Лучистый 177"
Второй этаж проекта "Лучистый 177"

Крупнее: https://yadi.sk/i/js6xXyL-tDf3Jw

Состав помещений дома:

1-й этаж:

Прихожая - 7,5 м2

Холл - 6,9 м2

Спальня - 11,9 м2

Ванна - 6,3 м2

Кухня - 18,7 м2

Гостиная - 33,1 м2

Гараж - 32,9 м2

Итого:

2-й этаж:

Коридор - 8,9 м2

Спальня родителей - 11,9 м2

Гардероб в спальне родителей - 4,2 м2

Санузел в спальне родителей - 4,3 м2

Детская справа на плане - 11,9 м2

Детская слева на плане - 10,6 м2

Санузел между детскими - 4,7 м2

Площадь второго света - 21 м2

Терраса на крыше гаража - 33,2 м2

И немного конструктива:

Армирование перекрытия с консольным балконом

Нижнее армирование
Нижнее армирование

Крупнее: https://yadi.sk/i/lKp5WYLCnH1X8Q

Верхнее армирование
Верхнее армирование

Крупнее: https://yadi.sk/i/BVpNf1TMVeAwvw

Разрез крыши:

Разрез крыши
Разрез крыши

Крупнее: https://yadi.sk/i/xIbYOHLP66u7CA

Узлы крыши:

Узлы крыши
Узлы крыши

Крупнее: https://yadi.sk/i/TyQkuZGSxZupWw