Найти в Дзене
4living

Лондонская малометражка: дизайн квартиры площадью 45 кв.м

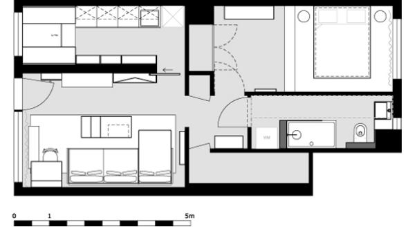
Работая над дизайном небольшой квартиры в центре Лондона, дизайнеры пошли нестандартным путем – решили обыграть ее малогабаритность. В итоге получилось современное комфортное пространство в урбанистическом стиле.  Квартира Filippo площадью 45 кв. м, спроектированная студией дизайна Studio Alexander Fehre, находится всего в 15 минутах от знаменитого Тауэрского моста в центре Лондона. Это одна из тех пусть небольших, зато доступных по цене квартир, среди преимущественно переоцененной лондонской недвижимости. Обычное решение для подобных малогабаритных квартир – заставить их казаться больше, чем они есть на самом деле с помощью проверенных дизайнерских приемов. Однако здесь авторы проекта решили не увеличивать пространство визуально, а грамотно его перепланировать, подчеркнув тем самым индивидуальность квартиры. В итоге получился вполне комфортный для жизни интерьер, созданный на каких-то скромных сорока пяти метрах.  Дизайнеры поставили перед собой главную задачу – задействовать с поль
Оглавление

Работая над дизайном небольшой квартиры в центре Лондона, дизайнеры пошли нестандартным путем – решили обыграть ее малогабаритность. В итоге получилось современное комфортное пространство в урбанистическом стиле. 

Квартира Filippo площадью 45 кв. м, спроектированная студией дизайна Studio Alexander Fehre, находится всего в 15 минутах от знаменитого Тауэрского моста в центре Лондона. Это одна из тех пусть небольших, зато доступных по цене квартир, среди преимущественно переоцененной лондонской недвижимости. Обычное решение для подобных малогабаритных квартир – заставить их казаться больше, чем они есть на самом деле с помощью проверенных дизайнерских приемов. Однако здесь авторы проекта решили не увеличивать пространство визуально, а грамотно его перепланировать, подчеркнув тем самым индивидуальность квартиры. В итоге получился вполне комфортный для жизни интерьер, созданный на каких-то скромных сорока пяти метрах. 

-2

Дизайнеры поставили перед собой главную задачу – задействовать с пользой каждый квадратный сантиметр жилого пространства.

-3

Кухня-столовая  

Поскольку кухонное окно посажено высоко, было решено разместить столовую мебель на небольшом пьедестале. Стены украсили черно-белые обои с полукругами, выделив столовую зону в отдельное, самостоятельное пространство. Напротив минималистичной кухонной мебели без единой лишней детали дизайнеры выстроили открытую систему полок из фанеры. Стеллаж, начинаясь на кухне, продолжается в зону гостиной, тем самым объединяя эти два пространства. Одновременно предусмотрена дверь, с помощью которой кухню и гостиную можно изолировать друг от друга. 

Гостиная

Расположенный у окна стол-консоль сочетается с мебелью в зоне отдыха. Ансамбль из большого, Г-образного дивана, стола и круглого зеркала создает в гостиной атмосферу лаунж-пространства. 

Дизайн гостиной зоны выстроен на диалоге контрастных цветов (белый, серый, древесный) и разновеликих объемов.
Дизайн гостиной зоны выстроен на диалоге контрастных цветов (белый, серый, древесный) и разновеликих объемов.

Спальня

На платформу была установлена кровать – тем самым дизайнерам удалось структурировать комнату и упростить доступ к окну. Стены в комнате выкрашены в темный пурпур, эффектно контрастирующий с белым подвесным стеллажом.

Спальня в квартире очень узкая. Поэтому в ней была выстроена платформа, простирающаяся от стены до стены.
Спальня в квартире очень узкая. Поэтому в ней была выстроена платформа, простирающаяся от стены до стены.

Ванная комната

В комнате нашлось место для довольно обширной душевой кабины, которая была гармонично, без швов встроена в отведенную для нее зону. Пол был покрыт винилом. Для одной стены, от входа до самой раковины, наклеены обои в экостиле, ставшие узнаваемым элементом интерьера. 

Для ванной было принято нетрадиционное решение: отказаться от ее визуального увеличения и, наоборот, подчеркнуть узость помещения, используя комбинацию из зеркала, обоев и подсветки.
Для ванной было принято нетрадиционное решение: отказаться от ее визуального увеличения и, наоборот, подчеркнуть узость помещения, используя комбинацию из зеркала, обоев и подсветки.

Таким образом, созданный дизайнерами Studio Alexander Fehre интерьер лондонской квартиры Filippo доказал, что при грамотном подходе сорока пяти квадратных метров достаточно для того, чтобы вести современный и комфортный образ жизни в условиях прогрессирующей урбанизации.