Найти в Дзене

Какой тип фундамента применить для строительства индивидуального жилого дома

В этой статье я постараюсь максимально просто объяснить на основании чего и как не ошибиться с таким важным вопросом как выбор типа фундамента при строительстве загородного дома в Свердловской области. Почему именно в Свердловской области? Потому что это наш ареал строительства, мы работаем с 2016 года и в нашем портфолио уже около 50 успешно реализованных объектов начиная от разработки Эскизного проекта, заканчивая вводом объекта в эксплуатацию.

Устройство опалубки для фундамента (Чусовской тракт, Свердловская область)
Устройство опалубки для фундамента (Чусовской тракт, Свердловская область)

Что такое фундамент и для чего он нужен? Если простыми словами, то фундамент служит для передачи нагрузки от объекта, который на нем построен, на грунт, который под ним залегает. Получается, что для выбора типа фундамента нужно как минимум знать: что будем строить (должен быть выполнен эскизный проект с планировками и фасадами) и какой грунт под пятном застройки.

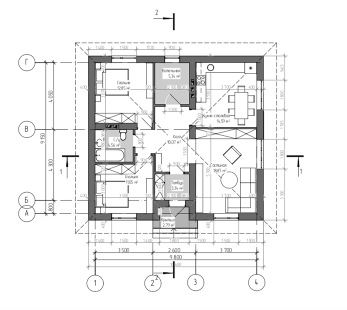
Пример планировки будущего дома общей площадью 80 квадратных метров
Пример планировки будущего дома общей площадью 80 квадратных метров

Для того, чтобы было понимание по грунтам необходимо выполнить инженерно-геологические изыскания - пробурить минимум две скважины на глубину 3-6 метров по диагонали пятна застройки и взять пробу грунтов.

Расположение скважин при проведении инженерно-геологических изысканий
Расположение скважин при проведении инженерно-геологических изысканий
Информация о грунтах в геологических скважинах
Информация о грунтах в геологических скважинах

Для Свердловской области распространены три основных типа грунтов (стараюсь объяснять как можно проще, прошу геологов не бомбить в комментариях):

  • Суглинки с различными примесями;
  • Скальный грунт;
  • Болотистые грунты.

На суглинках возможно применение фундамента монолитной плиты или фундамента на буронабивных сваях с монолитным ростверком.

На скальных грунтах подойдет фундамент монолитная лента, но принципиально, чтобы лента опиралась на мощный слой скалы своим основанием.

Для болотистых грунтов принципиально пробить толщу "плохого" грунта и упереться в слой почвы с хорошей несущей способностью, поэтому тут применимы только фундаменты с забивными сваями. Это самый дорогостоящий вариант.

Подробнее по каждому типу фундамента я расскажу Вам в следующих статьях.

https://www.youtube.com/channel/UC9FDLINaUtJN3RTtBTEtCVA - подписывайтесь на наш ютуб канал, где мы рассказываем о строительстве домов, разбираем ошибки и делимся опытом.

https://instagram.com/noviy_dom_ekb​ - ссылка на наш Инстаграм, где Вы можете написать нам лично, за консультации денег не берем!