Добавить в корзинуПозвонить
Найти в Дзене

Проект дома"Хилтон"

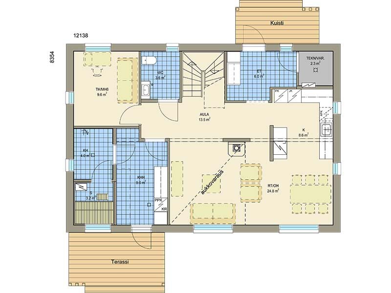
Если вы ищете просторный, уютный дом, где будет комфортно взрослым, детям и домашним питомцам, обратите внимание на проект двухэтажного дома "Хилтон" в стиле модерн! Площадь дома составляет 172 кв.м., он располагает 6 комнатами, балконом, сауной и просторной террасой, где можно позагорать и прогуляться в летнее время. Технические характеристики и особенности дома В том доме есть балкон, сауна и терраса, так что здесь будет где погреться зимой и где принять солнечные ванны летом. На первом этаже располагаются все хозяйственные помещения, гостиная плюс выходы в сауну и на террасу. Второй этаж отведён под спальни, санузел, такж здесь есть выход на балкон. На первом этаже располагаются: На втором этаже располагаются: Спальни можно приспособить под игровые комнаты для детей. Пространство в доме грамотно зонировано, так что здесь будет место всем, в том числе домашним питомцам. Даконичный дизайн в чёрно-белой цветовой гамме придётся по душе любому заказчику, ведь это универсальный классическ

Если вы ищете просторный, уютный дом, где будет комфортно взрослым, детям и домашним питомцам, обратите внимание на проект двухэтажного дома "Хилтон" в стиле модерн! Площадь дома составляет 172 кв.м., он располагает 6 комнатами, балконом, сауной и просторной террасой, где можно позагорать и прогуляться в летнее время.

Технические характеристики и особенности дома

В том доме есть балкон, сауна и терраса, так что здесь будет где погреться зимой и где принять солнечные ванны летом. На первом этаже располагаются все хозяйственные помещения, гостиная плюс выходы в сауну и на террасу. Второй этаж отведён под спальни, санузел, такж здесь есть выход на балкон.

На первом этаже располагаются:

  • гостиная;
  • кухня; столовая;
  • прачечная;
  • выход на террасу;

На втором этаже располагаются:

  • три спальни;
  • санузел;
  • выход на балкон;

Спальни можно приспособить под игровые комнаты для детей. Пространство в доме грамотно зонировано, так что здесь будет место всем, в том числе домашним питомцам. Даконичный дизайн в чёрно-белой цветовой гамме придётся по душе любому заказчику, ведь это универсальный классический вариант оформления любого дома.

Кровля этого дома позволяет осадкам скатываться вниз, не пропускает ветер и влагу, поэтому в доме всегда будет тепло и сухо. Большие окна впускают в дом максимум естественного солнечного света, поэтому здесь всегда будет светло без лишних затрат на электроэнергию.

-2

Если вас заинтересовал данный проект, вы можете заказать его у нас через форму обратной связи. Стоимость этого проекта составляет 79750 рублей. Вы сами выбираете материал, а такеже можете внести изменения в планировку на ваше усмотрение.

Мы гарнатируем превосзходный результат, соответствие заявленным срокам строительства и то, что цена в процессе выполнения работ не изменится! Просто посмотрите фото, а мы воплотим все ваши мечты в реальность!