Найти в Дзене
Бери и Строй

Проект гостиницы на 5 номеров

Выкладываю схемы сборки каркасной гостиницы на 5 номеров с большой столовой и кухней. Планы помещений, первый этаж План помещений, второй этаж В файлах для сборки вы найдете схемы для сборки стен и оптимизированный раскрой пиломатериалов с точным количеством по кубатуре Скачать тут Понравился проект и вам требуется полная версия для сборки перекрытий и кровли? Пишите в комментариях.
Оглавление

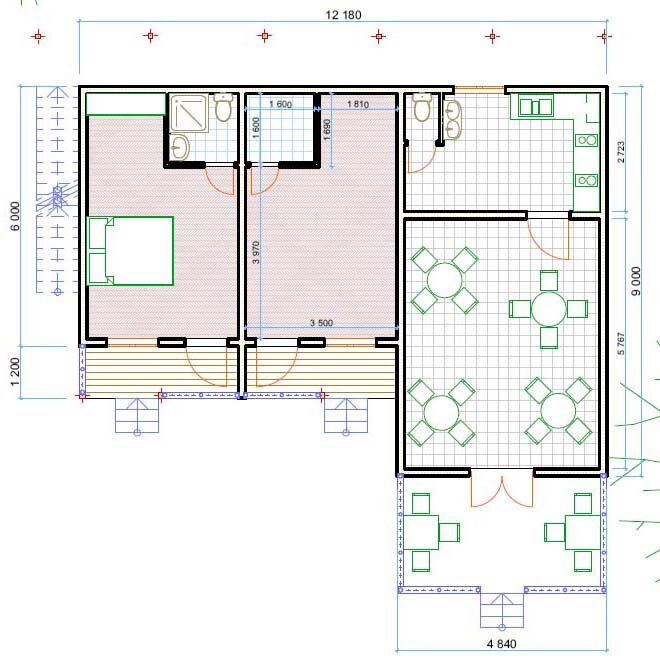
Выкладываю схемы сборки каркасной гостиницы на 5 номеров с большой столовой и кухней.

Планы помещений, первый этаж

-2

План помещений, второй этаж

-3

В файлах для сборки вы найдете схемы для сборки стен и оптимизированный раскрой пиломатериалов с точным количеством по кубатуре

Скачать тут

Понравился проект и вам требуется полная версия для сборки перекрытий и кровли? Пишите в комментариях.