Добавить в корзинуПозвонить
Найти в Дзене
Z500 Архитектурное бюро

Z172 GL2 Вариант типового проекта Z172 c добавленным гаражом для двух машин

Z172 GL2 представляет собой вариант типового проекта Z172 c добавленным гаражом для двух машин. Преимущества проекта Z172 GL2: Здание изумительно сочетает традиционные формы с экстерьером в современном  стиле. Пространство гостиной функционально и его можно обустроить оригинально и уютно. Создается впечатление, что уютная обеденная зона и красивейшая гостиная, несмотря на отсутствие стены между ними, разграничены за счет небольшого выступа стены. Из столовой зоны имеется прямой доступ на прекраснейшую просторную террасу. Кухня открыта, что обеспечивает беспрепятственный доступ к обеденной зоне, а также облегчает хозяйке подачу блюд. На втором ярусе находится 5 просторных спален. Самая большая имеет личную ванную комнату, место для большой гардеробной и выход на очаровательный балкон. Z172-это проект современного жилого дома для больших семейств. Понравился проект? Пишите комментарии. Посмотреть другие проекты вы можете на сайте.

Z172 GL2 представляет собой вариант типового проекта Z172 c добавленным гаражом для двух машин.

Преимущества проекта Z172 GL2:

Здание изумительно сочетает традиционные формы с экстерьером в современном  стиле.

Пространство гостиной функционально и его можно обустроить оригинально и уютно.

Создается впечатление, что уютная обеденная зона и красивейшая гостиная, несмотря на отсутствие стены между ними, разграничены за счет небольшого выступа стены.

Из столовой зоны имеется прямой доступ на прекраснейшую просторную террасу.

Кухня открыта, что обеспечивает беспрепятственный доступ к обеденной зоне, а также облегчает хозяйке подачу блюд.

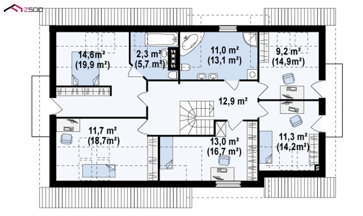
На втором ярусе находится 5 просторных спален. Самая большая имеет личную ванную комнату, место для большой гардеробной и выход на очаровательный балкон.

Z172-это проект современного жилого дома для больших семейств.

Понравился проект? Пишите комментарии.

  • Заказать проект можно  ЗДЕСЬ!
  • Все подробности о данном проекте Вы найдете  ЗДЕСЬ!

Посмотреть другие проекты вы можете на сайте.