Добавить в корзинуПозвонить
Найти в Дзене

А что, так можно было??! Холодильник, пм, духовка, колонка, варочная, стиралка, мойка и хранение - все на 2.25м вдоль стены!

Ребусы на тему "впихнуть невпихуемое" мне решать приходится ежедневно. Сегодня поделюсь одной из историй. Дано: хрущевка (условно, постройка свежая, но это не спасло планировку), по стене 2250мм (2 метра 25см), кухня обязательно нужна строго прямая, без заворотов, НО!!!! уместить нужно полноценную стиралку, духовку, посудомойку, варочную, вытяжку, мойку и про колонку с трубами не забыть, и между мойкой и варочной оставить нормальную рабочую зону, естеснно. Да! еще же под мойкой фильтр для воды, трехступенчатый. Для тех, кто впервые на моем канале: меня зовут Оксана и я мебельщик. Это такой же диагноз как алкоголизм или игромания, только деньги платят)))). с 2010 года работала в мебельных магазинах, на строительных базах и в салонах плитки. 11 лет работы #околоремонта и #околодизайна , но все же мебель - любовь всей жизни. Последние несколько лет я проектирую мебель для собственного производства нашей небольшой студии, а так же для сторонних производителей. На этом канале я бесплатно ра

Ребусы на тему "впихнуть невпихуемое" мне решать приходится ежедневно. Сегодня поделюсь одной из историй. Дано: хрущевка (условно, постройка свежая, но это не спасло планировку), по стене 2250мм (2 метра 25см), кухня обязательно нужна строго прямая, без заворотов, НО!!!! уместить нужно полноценную стиралку, духовку, посудомойку, варочную, вытяжку, мойку и про колонку с трубами не забыть, и между мойкой и варочной оставить нормальную рабочую зону, естеснно. Да! еще же под мойкой фильтр для воды, трехступенчатый.

Для тех, кто впервые на моем канале: меня зовут Оксана и я мебельщик. Это такой же диагноз как алкоголизм или игромания, только деньги платят)))). с 2010 года работала в мебельных магазинах, на строительных базах и в салонах плитки. 11 лет работы #околоремонта и #околодизайна , но все же мебель - любовь всей жизни. Последние несколько лет я проектирую мебель для собственного производства нашей небольшой студии, а так же для сторонних производителей. На этом канале я бесплатно разбираю помещения своих подписчиков и делаю для них проекты мебели.

Ну что, "понял-принял-проектирую". Сносных вариантов у меня вышло аж три:

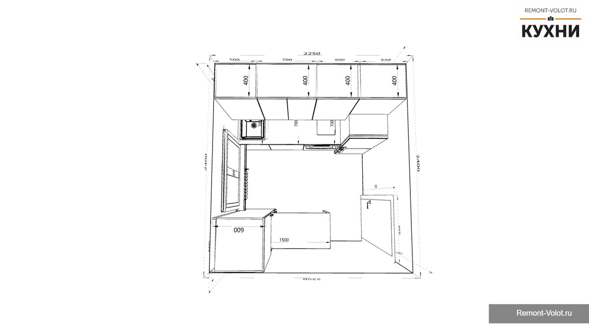
Вариант первый. Столешка имеет глубину 700 мм, вместо стандартных 600, соответственно верхние корпуса тоже увеличиваем на 100 мм глубиной (это нужно для того, чтобы было удобно дотягиваться, ну и для вместимости тоже). Столешка такая глубокая нам нужна потому, что вывод труб под воду у нас там, где холодильник и он просто не встанет нормально, а будет торчать, что по мне, так смотрится не красиво (тут дело вкуса и можно оставить стандартную глубину, если "ступенька" вас не смущает и глубина стиралки позволит). Если смотреть на рисунок кухни (фото 3) по основной стене, то мы увидим слева направо: снизу мойка, а так как участок примыкает к окну и там подоконник, фасад будет с фальшкой, которая позволит спокойно открывать дверь ( а в иделае на этапе ремонта подогнать окно по высоте, пока не поздно), не уменьшая внутреннее полезное пространство( именно поэтому холодильник справа - его бы пришлось отодвигать и терять драгоценные 100мм кухни) на наброске фальшки еще нет, но без нее никак. Над мойкой стандартная сушка в корпусе и еще две полки над ней, ведь шкаф под потолок. После мойки по низу идет встраиваемая стиральная машинка шириной 600мм и нормальным объемом загрузки. Технически, можно поставить не встраиваемую 600 без фасада или 500 просто засунуть в корпус на 600мм (вот тут аккуратно, учитывайте свес столешки, чтобы смогли нормально пользоваться лотком для порошка, или будьте готовы переходить на капсулы). Над стиралкой у нас корпус для газовой колонки, он специально сделан шире стиралки, чтобы можно было рядом с колонкой расположить полки (да, я в курсе, что колонки прятать нельзя. Но каждый первый при заказе просит сделать. Как это делаем мы - дно и верхняя крышка корпуса не глухие, а состоят только из узких жесткостей, чтобы воздух свободно циркулировал, так же, часто фасад делаем решетчатый, а между внутренними стенками и самой колонкой оставляем зазор. Воздух гуляет, ничего колонки не касается. Многие выбирают все же глухой фасад без решеток, под свою ответственность). И третий модуль - это не духовка! это посудомойка на 6 персон. В набросочной программе я не могу все эти мелочи менять, поэтому обозначила пм так. Под варочной у нас пм и выдвижной ящик для ложек и специй (учитывая высоту пм, там даже два поместится невысоких. Чтобы сейчас не растягивать статью бесконечно, напишу отдельную статью про компактную технику, ссылка будет тут, а здесь статья про нестандартные варочные). Варочная может быть как на три конфорки, так и на две - тут дело вкуса клиента. Между мойкой и варочной остается минимум 600мм рабочей зоны , но можно сделать и 800 (если мойка смарт, а варочная 2 конфорки). Над варочной вытяжка и мелкие полки, полка над холодильником (холодильник 540мм, в продаже они начинаются от 480мм!). По противоположной стене у нас стоит пенал с гибридом духовка-СВЧ (встроится в верхнюю открытую нишу) и кучей мест для хранения кастрюль и припасов. Нижняя ниша нужна для столешницы. Стол можно имеет общую ширину 1500мм и может выдвигаться по пеналу на 1400мм (100мм останется внутри корпуса для опоры) или задвигаться до конца и оставляя вдоль стены компактные 900мм, которые не мешают проходу. Если не лезть в дорогие фурнитурные дебри, а взять обычные направляющие для раздвижных столов, то цена конструкции будет приемлемой.

Итого, мы уместили варочную на вкус клиента (4 лучше не брать, чтобы не греть холодильник. Там отступ нужен, поэтому лучше 2 ли 3 конфорки). колонку, сушку, мойку, стиралку, посудомойку, духовку с СВЧ, холодильник и огромный пенал для хранения, плюс выдвижной стол.

Какие "подводные камни" у этого проекта?

1) взаимодействие с окном и подоконником. Пенал именно поэтому открывается на столешницу, чтобы не холобудить фальшки при открывании на окно. В районе мойки фальшку сделать придется, но на фасад останется приемлемые 400мм, ведро в такой проем спокойно пройдет, а сам корпус под мойку останется 500мм, подоконник придется подрезать. В иделае на этапе ремонта все же заменить окно и вывести столешку вместо подоконника.

2) пм не полноразмерная, а на 6 персон. Если верить интернету обычной семье вполне хватает, а я не знаю, что сказать. (У автора очень прожорливая семья, поэтому стоит пм 450мм, которую запускаем каждый вечер. Все очень индивидуально). Гипотетически можно пожертвовать ящиком для ложек (переня его в пенал) и поставить полноценную 450 +полку для моющих за общим 600 фасадом (поставить 600 без корпуса нельзя, ибо совсем не останется стоек для столешницы), я видела такое в сети, НО! на себя такую ответственность брать бы не стала, ибо хз как такое соседство повлияет на технику.

3) Колонка. я про нее уже писала, просто еще раз заострю внимание

4) столешница глубиной 700мм из-за труб. Но как по мне, это даже плюс, потому что можно красиво закрыть трубы от колонки сделав фартук на глубине 600мм и дверку на пуш ап для доступа к вентилям.

5) открывание распашных фасадов на холодильник и стену. На моем проекте умышленно нет ручек, их функции выполнит зазор в днище верхних шкафов, поэтому ручка не станет бить холодильник или стену. В противном случае по бокам нужно ставить горизонтальные фасады!

6)нарушен "рабочий треугольник", так после холодильника не мойка, а варочная. Это обусловлено несовместимостью подоконника и выдвижных элементов.

Ох, получилось длинно. Остальные проекты придется выводить отдельными статьями. Да, в этом варианте духовка-таки уехала на другую стену и заголовок получился не совсем правдив, но такой вариант тоже есть, просто не влез сюда, читайте статьи с остальными вариантами!

Напоминаю, если вы хотите, чтобы я на своем канале разобрала ваше помещение и спроектировала мебель для вас (бесплатно), то вы должны:

1. подписаться на канал.

2. отправить на почту sprosiumebelshika@yandex.ru план комнаты (можно от руки, вид сверху и размеры), описание всех коммуникаций и карту электрики (опять все можно от руки), список ожиданий от комнаты (что там быть должно обязательно, чего быть не должно, как планируете использовать помещение, что и сколько хранить).

3. быть готовым к уточняющим вопросам.

Спасибо всем, кто дочитал! Всем удачного ремонта и уюта в доме.